Submitted by WA Contents
ODDO architects built this narrow house with rich interior spaces and perforated skin in Hanoi
Vietnam Architecture News - Jan 27, 2020 - 16:17 28160 views

Vietnamese architecture practice ODDO architects has built this narrowest house in the dense city fabric of Hanoi, Vietnam, with a perforated skin to allow light gently to enter inside.
Named CH House, although the outer appearance of the house is not exaggerated, it includes rich interior spaces harmonized with green infills and plants.

Covering a total of 220-square-metre, the house, situated in a narrow plot, is located in Hanoi which is the capital city of Vietnam with one of the highest population density, intensive traffic jams, often facing air pollutions, lack of public spaces and greenery but at the same time the city bearing the importance of Vietnamese culture and old traditions.
ODDO architects designed this house for three family generations who wanted to create a harmonious space in the hectic city in order to enhance the traditional family ’s life.

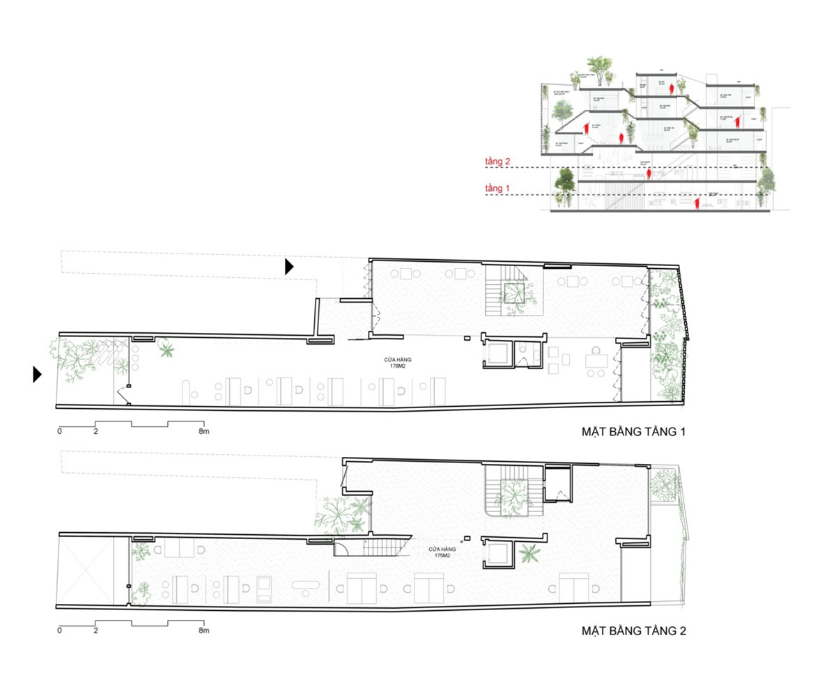
The site of the house is a typical plot for long and narrow local tube houses, the CH house has a 4,2 m width and 35 m length. The architects were inspired by the old traditional houses of Hanoi, having spaces full of natural light and ventilation, thanks to inner courtyards.

"The design aims to bring a breath of traditional spirit to modern life, and at the same time creating spaces full of natural light and ensure natural ventilation within the house," said the architects.

The program of the house is divided into 2 zones: the commercial area of two floors and the family area. The common spaces of the family area such as the living room, library, dining room, and kitchen are positioned in different levels with varying ceiling heights in order to compose open continuous space to maintain family communication with each other more easily.

"This design makes the space properly open and providing unexpected spacious feeling, despite the limited width of the house. Also, the two children’s bedrooms are situated above the main common area, next to the void spaces, allowing connection with family members downstairs," added the firm.

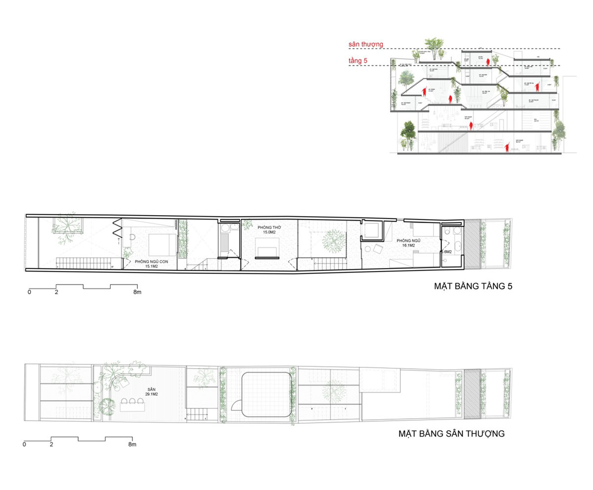
"The quiet area is located at the innermost of the house, which includes the grandparents’ bedroom and the parents’ master bedroom. Significant elements of the interior spaces are three void gaps separating the house volume to deliver natural light into lower leveled spaces of the house."
"The family ties in the traditional Vietnamese family are very strong." "Usually several generations live together under a single roof where many family events take place. In nowadays world of modern technology with smartphones and televisions, these ties are weakened."

ODDO architects' design aims to create strong connections among the family members, especially in the context of today’s hurried lifestyle of new economically growing Vietnam.

Nature is an important element providing a positive effect on people’s mental health. However, the rapid development of large cities creates a lack of green spaces for people to relax. That is why planting trees and plants inside the house is necessary and help to create a peaceful living space to release stress.

"CH house is not only a home for dwellers but also a place attempting to create a linkage between humans and nature which is very often missing in Hanoi due to many environmental problems and limited green spaces," the architects added.

The facade of the house is designed as a double layer with its outer layer made from perforated cement blocks and a steel frame glass inner layer. The double-layer facade combined with a green layer provides cover from the sun, the dust and allowing natural ventilation throughout the entire length of the house. The facade is also designed with a large window, providing even more light to fill the house when needed and give the facade a more attractive look.
The intention was to design spatial harmony with consideration of family traditions, the local climate and contemporary lifestyle.








First and second floor plans

Third and fourth floor plans

Fifth and roof top floor plans

Elevation
Project facts
Project name: CH House
Architects: ODDO architects
Location: Hanoi, Vietnam
Size: 220m2
Year: 2019
All images © Hoang Le photography
> via ODDO architects
