Submitted by WA Contents
Atelier Liu Yuyang Architects built glassless yoga pavilion featuring silver roof set on a hill
China Architecture News - Dec 20, 2019 - 16:46 21597 views

Yoga-lovers will fall in love with this space since they will feel themselves free within the nature in this yoga pavilion in China.
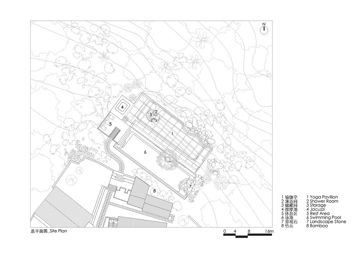
Named Glassless House, Pavilion and Pool for XY Yun House, the space, designed by Shanghai-based architecture firm Atelier Liu Yuyang Architects, is situated on a small plateau at the foothill behind Yangjia Village where the acclaimed Yun House Eco-resort is located.

The 828-square-metre space is used for yoga activities in which give a free space to move comfortably by overlooking the green lush forest. The key element of the structure is to be supported by a main built-in fire place and a thin A-shaped column on the other side. An elongated pool in front of the pavilion provides another relaxation space for yoga-lovers.

"Through minimum ground leveling and maximum preservation of views and vegetation, the design juxtaposed a pair of wading pools and a yoga pavilion of almost equal dimensions in parallel on the site, forming a high point in the hotel’s spatial sequence," said the architects.
"With sensitive perception of light, shadow, breeze and scenery on site, the architect makes a subtle intervention which skillfully integrates the master plan with the surroundings."

The curved boundary of the ground elegantly stretches along the terrain, meanwhile, the rugged Karst rocks are scattered near the pavilion, representing the vitality of the nature closeby. As the architects highlight, the architecture pays tribute to the Nature and architectural classics in a minimalist way.

A set of curved steel walls and an A-shaped steel column support the 8-meter by 24-meter steel canopy. The steel wallsintegrate storage for yoga equipments and a fireplace.
And on the diagonal direction emerging from the landscape stands the A-shaped column. The design transmits the visual tension and connection between strength and beauty in the Yoga movement, and seeks the balance between nature and oneself.

The polished but un-painted steel structures retain visible weld marks, presenting unique traces of fabrication and textures. The 12 mm-thick curved wall is structurally reinforced by a series of horizontal ribs on the backside which also serves as storage shelves for the pavilion.

The canopy is built from a box girder structure with a depth of merely 30 cm, which is sprayed with a futuristic-looking metallic silver gray paint. The delicate structural design carrying the massive horizontal roof in minimal structure elements enhances the effect of "levitation".
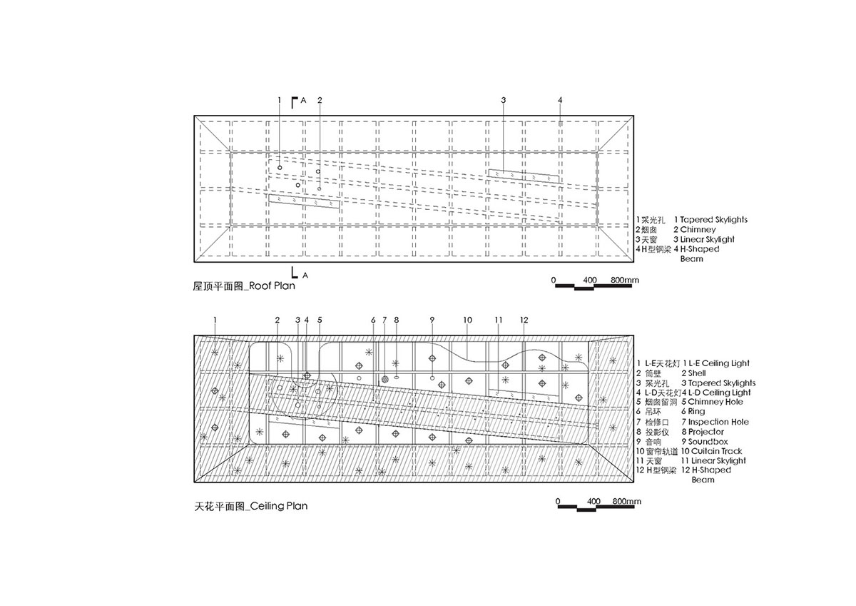
Through the tapering of the edges around roof, the eaves appear much thinner. The electrical equipment, lighting and ceiling panels are hidden within the 30-cm depth. Taking advantage of the load-bearing part of the middle steel plate, 6 sets of built-in hanger rods are installed in the center, which can hang the aerial yoga hammock or wireless lamps. Considering the yoga activities will have a lot of looking up posture, the ceiling space is also considered.

The matte-gray silica-pore-sand acoustic panels embedded between the steel beams are used as the ceiling, clearly revealing the structural framework as well as absorbing excess of undesired sound in the internal space.
On a sunny day, linear and tapered skylights capture the changing sunlight. In the evening, when the darkness has fallen, the embedded ceiling lights create a twinkling effect underneath the silver roof, resembling the starry night above the sky.

A 50-metre long anti-ultraviolet translucent Sunbrella fabric replaces the typical glass door and window façade. Hanging between the ceiling and polished terrazzo flooring, the super-lightweight curtain of 127-gram per square meter captures a poetic panoramic view from the front village to the back mountains. Translucency of the curtain forms the ambivalent border between inside and outside.

With its maximum height of 3-meter and varying lengths, the upper part of the Sunbrella fabric is fixed by a sliding curtain track, while the bottom part is attached to a steel edge piece of the terrazzo floor via a set of 25mm-diameter custom-made magnetic rings. This system of magnet attachment helps to keep the fabric smooth and wind-proof. The space inside can be used as a yoga space, a lounge area, a banquet hall and a conference room, etc.

The built-in fireplace along the steel wall brings warm atmosphere during the winter. The wash stone wall defined the shower zone, which is facing directly into the dramatic Karst mountain rocks and green vegetation just meters away.
The footprint of the swimming pool is nearly equal to the yoga pavilion. Adjacent to the path, the lower part of the site houses the infinity pool which directs views towards houses, trees, and rocks, while the shallow upper pool under the pavilion direct views towards the village, trees, and rocks.

In order to echo with the surroundings, the existing soapberry tree was also retained with considerable effort, integrating with the seating steps to form a characteristic tree pit.
Under the limited condition, the design team strives for the most suitable space for the tree, recovers the soil to the original elevation, and coordinates the landscape planting measure. With the collaboration of the client, contractor and landscape consultant, the task of preserving the tree was finally achieved.


The entrance to the pool is at the steps on the east side and ends with the curved stone border on the west side. A massage pool is located on the east side of the entrance platform. A 50-square-meter equipment room is arranged under the platform taking the advantage of the topographic difference of the site.
The surface of the pool is made of gray and white unpolished terrazzo, a hand-craft material that handles curves easily. The curvilinear underwater steps and seating accommodate the human body with rounded corners. The swimming pool with roughly 100 square meter of area provides room for swimming, lounging and sun-bathing in the company of trees and rocks.

The horizontal extension of the roof cantilevered above the shallow pool creates a space suitable for enjoying the view both in sunny and rainy days. Standing here facing the south, one can appreciate the clear and tranquil ripples in a picturesque backdrop of bamboo groves, village houses and jade-colored Karst mountains.









Site plan

Structure axonometric

Roof ceiling plan

South facade

West facade

Seismic deformation analysis

Stress envelope

Pool sketch

Fireplace datails

Tree pool detail

Section A-A

Section A-A

Section B-B

Model
All images © Fangfang Tian
All drawings © Atelier Liu Yuyang Architects
