Submitted by WA Contents
Fujiwaramuro Architects designs family house with thin skylights and transparent built-in garage
Japan Architecture News - Dec 06, 2019 - 16:12 16483 views

Japanese architecture studio Fujiwaramuro Architects has designed a family house in central Takamatsu, Japan, this residence was designed as a private residence for a couple who have one child.
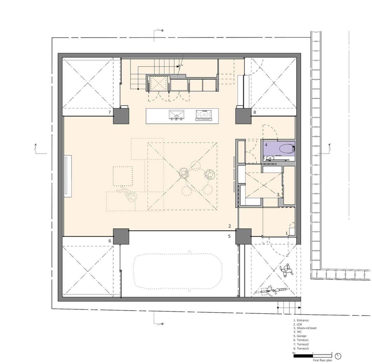
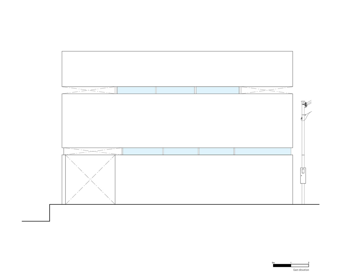
Called House in Takamatsu, 132-square-metre house is an enclosed structure punctuated with thin linear lines to take daylight and ensure privacy in response to the client's brief. The house features a transparent built-in garage that looks at the living room.

"The client requested that the building occupy as much of the lot as possible, ensure privacy, have a built-in garage that showcased their car, and have a reinforced concrete structure with simple finishes rather than textured interiors featuring wood and other materials," said Fujiwaramuro Architects.
"We responded with a proposal that placed the living-dining-kitchen area at the center of the lot with other spaces unfolding around it onto the entire property."

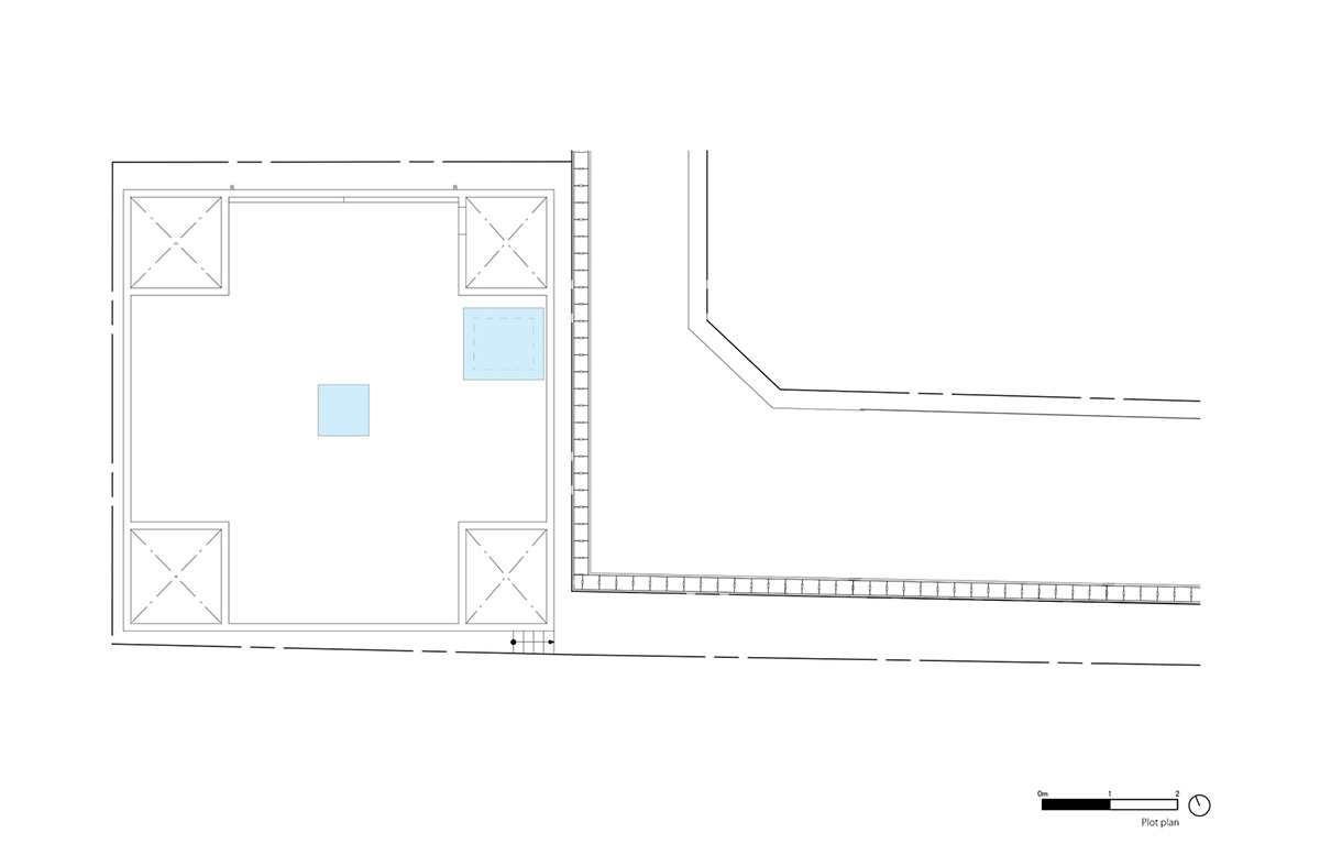
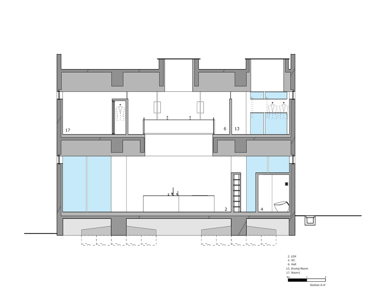
Composed from four exterior walls, the building is fully enclosed structure, with a void located inside each of the four corners as well as another in the center of the building.

These five voids have been designed to bring uniform light to the interior spaces, giving the living-dining-kitchen area a spacious, bright atmosphere despite its location on the first floor.

The four corner voids incorporate the exterior environment into the building while maintaining privacy, creating an open-feeling space with strong connections to the outside world.

The architects used just four structural pillars to keep the interior spaces as simple as possible. The first and second story floors and walls as well as the roof are supported by cantilevers that extend horizontally from these columns.

"Thanks to this arrangement, the exterior walls do not need to support the second floor or roof, which made possible the inclusion of long, thin slit windows that admit light from 360 degrees," added the architects.
"This allows lines of sight to extend outside the building without compromising privacy."

The architects worked in a limited budget for this house. "The ground under the building is fairly soft and would have required extensive soil stabilization if an ordinary mat foundation were used," they added.

With the studio's design, however, piles were required only under the four posts, reducing the soil stabilization budget to one quarter of what it would have been for a mat foundation.














Site plan

First floor plan

Second floor plan

Section A-A

Section B-B

East elevation

West elevation

South elevation

North elevation
Fujiwaramuro Architects, led by Shintaro Fujiwara and Yoshio Muro, won the WA Awards three times. Recently, Fujiwaramuro Architects won the WA Award in the 32nd Cycle with House In Kobe North.
Project facts
Use: residence
Family: husband, wife and 1 child
Location: Takamatsu city, Kagawa Pref., Japan
Site Area: 229.74 sqmt
Building Area: 131.68 sqmt
Total Floor Area: 203.90 sqmt
All images © Katsuya. Taira (studioREM)
> via Fujiwaramuro Architects
