Submitted by WA Contents
Adam Richards converts farmworker's cottage into his home inspired by Russian science-fiction film
United Kingdom Architecture News - Dec 06, 2019 - 15:18 11721 views

London and Sussex-based architect Adam Richards has transformed old farmworker's cottage into his own home inspired by Russian science-fiction film "Stalker".
The new family home, named Nithurst Farm, is now a contemporary place of assemblages of many historical references and attributions that reemerge as a minimalist sculpture in the countryside, in the South Downs National Park.
Adam Richards Architects renovated this brick-clad house as his own home, while its interiors are designed with structural concrete and wrapped in a thick brick skin with a black zinc roof.

"The profile of the house ascends in a stepped motion, rising from a single-storey entrance on the north elevation to a three-storey tower, which is expressed as a grid on the south elevation", said Adam Richards Architects.
The architects maintained large arched brick window openings with deep reveals, giving "cadence" to the long side elevations and expressing the weight of the walls.

The sense of motion created by this stepped form is emphasised by the patina of the brick skin; blackened bricks around the arched brick window openings create an optical illusion, a trace of movement through space.


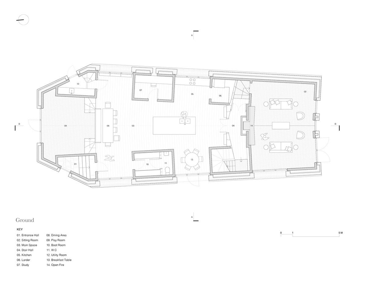
Upon entering to the house, the entrance confounds expectations: users enter from the farm courtyard into a darkened vestibule of exposed concrete walls, opening into a 4.5 metre high kitchen, dining and family room, with a character informed by Renaissance drawings and by Palladio’s plan for the Villa Barbaro.

In a play of contrast to the mannered brick elevations, the walls and ceilings of the concrete inner frame are left deliberately rough-and-ready: just as they came out of the formwork, softened with white oiled pine floorboards, reclaimed stone, sisal carpets and brass fittings.

The interior of the house is richer than expected to trigger different feelings. The expansive room incorporates six internal concrete towers, each containing a secondary room such as a cloakroom, study and larder.

The plan of the house is tapered on the north-south axis, creating a false perspective that heightens the sense of a journey to the house’s principal destination, the south-facing sitting room.

"A dark, labyrinthine passage exaggerates the sense of arrival into a light-filled room adorned with contemporary art and a collection of tapestries," explained the architects.
Stairs in the towers lead to children’s bedrooms and guest rooms on the first floor. Double doors open to a grand central stair leading up to the master bedroom where your ascent is rewarded with sweeping views of the open countryside through full-height, south-facing windows. Mirror image bedrooms/dressing rooms lead to a shared bathroom with freestanding bath commanding views across open countryside.

The house has been designed as both ancient and contemporary, the house's weighty and tactile materials was intended to relate to the surrounding farm buildings, while the abstraction of its stepped form is suggestive of minimalist sculpture.

"Influences range from the formal architecture of Vanbrugh to the Russian filmmaker Tarkovsky, whose film Stalker has inspired the sense of destination embodied in the house," added the architects.
"Nithurst Farm encompasses multiple layers of reference and association, each informing the whole, enhancing its meaning while creating a beautiful place to live."


Site plan

Ground floor plan

Mezzanine floor plan

1st floor plan

2nd floor plan

Section A-A

Section B-B

Elevations

North and East elevations

West and South elevations
Project facts
Architect: Adam Richards Architects
Structural engineer: Structure Workshop
Services engineer: P3R
Main contractor: Garsden Pepper
Quantity surveyor: MPA
All images © Brotherton Lock
> via Adam Richards Architects
