Submitted by WA Contents
Nemo Studio's Vietnamese Villa AD8 brings tropical atmosphere inside with natural elements
Vietnam Architecture News - Dec 12, 2019 - 14:58 13915 views

Hanoi-based architecture firm Nemo Studio has transformed a neoclassical building into a contemporary house bringing a tropical atmosphere inside with its surprising openings, flexible layout and natural elements in Vietnam.
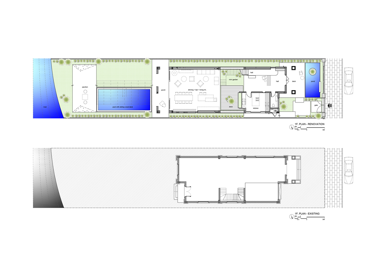
The house, named Villa AD8, is located in a long but narrow area and divided into quite similar parts in plan. As Nemo Studio highlights, the former version of the house was unsuitable for tropical climate and location that is beside the fork of river.

To solve it, the architects created a porch, expanding the backside and placing a void in the center of the villa are considerable adjustments.


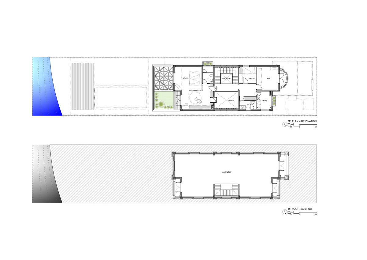
The architects designed all public spaces and common areas on the first floor, bedrooms and private areas were placed on the second and third floors with wide openings to catch the views of the garden and the river.

Also, porch and void contribute to create blank space and more importantly, adapt the tropical conditions. Feeling the wind, rain and nature is a memorial experience when staying on the porch.

What brings a tropical atmosphere in it is to use some sort of natural elements, such as plants, gravel, walking decks, which are placed in various places, including the void from the first floor to upper floors and the area next to bathrooms.

Sliding doors, windows & skylight help to regulate ventilation. Concrete louver, wooden louver let light go through - describe the movement of the sun's shade. It also reduces the heat and keeps the privacy.

The furniture is made from raw materials of concrete grinding, natural wood, laterite, and painted white. The facade is simplified to adapt the general appearance of other villas in the same sector but is still subtle to bring an elegant look.

The yard in the backside has a resting place with greensward, plants and a swimming pool. Utilizing sliding wood floor helps to cover the pool, improving safety and setting up a playground. This place can be used for dinner or parties, bringing relaxation and comfort like vacations.


























First floor plan

Second floor plan

Third floor plan

Roof floor plan

Sections
All images © Vu Ngoc Ha
> via Nemo Studio
