Submitted by WA Contents
Waterfrom Design creates peaceful interior with wooden furnitures for tea community center in China
China Architecture News - Dec 11, 2019 - 16:25 6640 views

Taipei and Shanghai-based architecture studio Waterfrom Design has created a peaceful and calm environment for a tea community center in Xiamen, China. Waterfrom Design's interior design can completely change the needs and habits of tea enthusiasts in their daily life.
Named Tea Community Center, the 750-square-metre interior space is shaped around a series of free-organized furnitures and fixtures that allow visitors free movement inside.
In the all interior space, the architects used different hues of brown color scattered and used in different parts of the interior that creates its own texture.

"Two premises make this project differ from others: Firstly, the sales office building will be for the community’s sustainable use in the future. Secondly, except the reception entrance, most of the use area of the two-story building is located in the landscape," explained Waterfrom Design.

It is the primary task for Waterfrom Design to give play to the characteristics of the sequestering and independent field, while the environment architecture of the three elements of sunlight, air and water is maintained.

The architects described the project as a source of tea. "It is expected that on the blueprint for community use in the future, we will build a landscape that is connected to the ground from the entrance of the first floor," said the office. In the past, an old tree always acted as the core of the gathering among the villagers, who exchanged daily information and built relationships.

It is a habit and a collective memory to gather under the old tree. Tea is the tradition and essence of the old Xiamen culture. It is a ritual and life to boil water and brew tea for friends. It is not about the level of tea; drinking tea is a gesture of freeing and calming their mind.

There is also a glass tea pavilion surrounded by a lake, just like the transparent container for the ritual on the tea table. The flowing stream of the river accentuates the quietness of the interior, which brings a sense of tranquility for people after they step in.
The water flows across the long tea table at the center of the tea pavilion and runs through the glass curtain. When the tea is being brewed on the table, the sound of the water flows continually into the lake stretches all over the room.
Although it is not the reappearance of Wang Xizhi’s description of drinking fine wine by the river, the running stream still brings refined pleasure as enjoyed by the ancient literati of China.

Source of light, after passing a winding path
There is an opening on the floor next to the tea table, which is the ladder leading to the cave below the lake. Most of the legendary Arcadia discoveries begin with a hidden and unobtrusive entrance for outsiders who want to explore a peaceful and leisurely life in this place.
Walking through this dim path, people can leave behind their stress and frustration, and calm their minds to find their essence in life. Then, with the guide of twilight at the end of the corridor, they can step into a different and open space hiding at the bottom of lake.

With a scenery of exceptional charm, the underground is surrounded by the circular atrium bringing light and water nourishing the tree in the bottom of the lake that stretches out to the sky. The scene resembles the simplest appearance of the heaven and the earth. The daylight makes the tree shadow wander indoor where people could leave behind their busy schedules and slow down.
They could gather under the tree, enjoy the time together, observe the day and night and the four seasons. As they sip a cup of tea, they could feel themselves surpassing the order of the bustling city, and comfortable breath in the rhythm of life.


Hiding in the lake, time makes things painted
When people look up, they could see the lake water over the roof. The reflection of water creates ever-changing shadows on the wall; the silent swaying beam seems like hiding under the lake. Quietly keeping the distance from the busy traffic on the ground, this space is free from the stress of daily life.
In order to retain the detachment from the outside world, the studio chose warm, natural and simple materials, and maintained the pure texture and tactility. In the design process, the studio strived to avoid the form of excessive expression, and constructed an intuitive space with lines.
Under simplicity, the users can perceive the natural light and shadow without interruption. The décor is like a long scroll on the wall, just as contemporary ink painting that is abstract and only outlines the text. There is no frustration in this space; the cooper plate that ages over time reflects the changes of people in the flow of time.

The hand-made pottery that connects the veins of the soil, the fragrance of the wood, and the undulations of the rattan weaved tightly, all narrate the memories and stories of people with subtle details. They are like the microscopic expression of emotions, and the embellishment on the tea tables, and the preludes of cultures activities in the future.



Heart of the city, nourishing trees is also cultivating the temperament
The architects have removed excessively specific functional frameworks, and they hope to create a space for dialogues so the individuals who are alienated by urbanization can find a place to gather around the tree and talk about their daily lives and build personal relationships with others.

"He invited the fisherman to the house and entertained the fisherman with wine and delicious food. Others in the village heard of him, and all came to inquire him about the outside news."
In the Peach Garden, people are simple and honest, and live a harmonious atmosphere. "We hope this scene will reappear here, which will become a precious life connotation in the community," the studio added.
"No matter how bustling the outside world is and how the city is changed, find the entrance to the Arcadia and dive to the bottom of the lake, and you will always find tranquility from an unusual perspective."













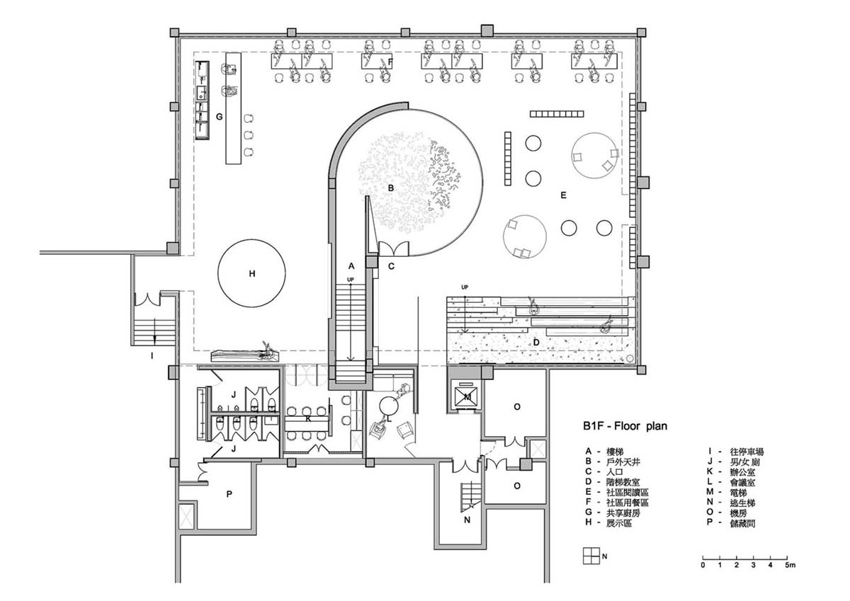
Basement floor plan

1st floor plan

Elevation

Section
All images © Yuchen Zhao
All drawings © Waterfrom Design
> via Waterfrom Design
