Submitted by
MAD’s grand theater made of layers of glass sails moves forward in Yiwu, China
teaserf-23-.jpg Architecture News - Jul 03, 2019 - 05:08 6348 views

MAD Architects' winning proposal for the "Yiwu Grand Theater" has been set to move forward in Yiwu, located in China’s Zhejiang province. The architects announced that the "Yiwu Grand Theater" starts to be realized soon. MAD’s design, responding to its own locale, appears as a boat, floating on the river.
Yiwu has established itself internationally for its strong economy, as the world’s largest wholesale commodities market. Domestically, it is traditionally known as a city of trade, thus making it an integral part of the country’s ‘Belt and Road Initiative.’

MAD won an international competition to design the Yiwu Grand Theater in 2018. MAD Architects, led by Ma Yansong, competed against four other global architecture firms, coming out ahead of Arata Isozaki & Associates, Atelier Christian de Portzamparc, GMP, and KDG.

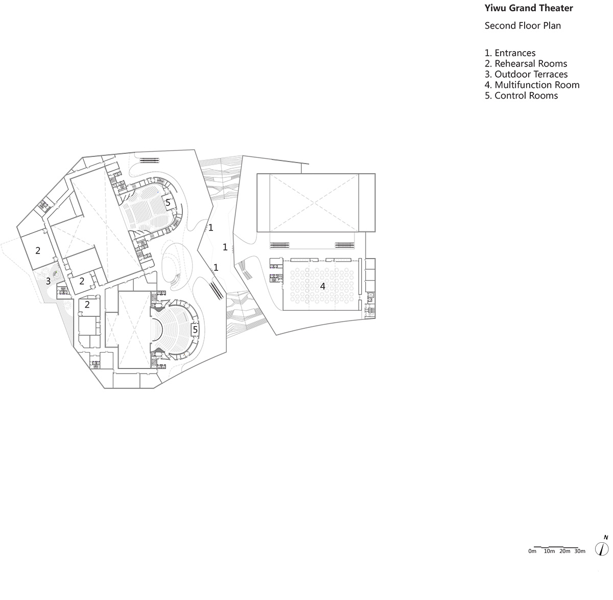
Located on the south bank of the Dongyang River, the Yiwu Grand Theater encompasses a grand theater with 1600-seat capacity, medium theater with 1200-seat capacity, and international conference center with 2000-person capacity. Positioned with the mountains in the distance as its backdrop, MAD conceives the water as its stage.

It is defined by a layering of glass sails that are reminiscent of the Chinese junks that once transported goods across the waters, while their subtle curves echo the Jiangnan-style eaves of the ancient vernacular architecture that is typical of the region.
The transparency and lightness of the glass express the texture of thin, silky fabric, creating a dynamic rhythm that makes them appear as if they are blowing in the wind. They act as a protective canopy around the building, resonating with the river, elegantly floating above the water’s surface, setting a romantic atmosphere.

To reduce overall energy consumption, MAD has conceived the theater with a passive solar design. Thus, the semi-transparent glass curtain wall has been developed to not only act as a shading system, but to also optimize the use of natural light within the indoor public spaces, forming a solar greenhouse effect in the winter. In the summer, it serves as the ventilation system, enhancing airflow circulation inside and outside of the building.

"Envisioned as a public space for the city, the Yiwu Grand Theater is easily accessed from all directions. Vehicular transportation can enter from the south shore, while tree-lined foot bridges from the north offer pedestrians the opportunity to meander along the water and enjoy views of the city, theater, and greater waterfront as they approach the building," said MAD.
"Emphasizing public interaction, the scheme features an amphitheater and large open plaza that extends into the water on its southern edge, while landscaped terraces offer elevated views of the site’s surroundings, and areas of quiet contemplation – an immersive natural experience in the urban context."

The Yiwu Grand Theater has been designed as a monument for the city, that will serve to connect inhabitants to the waterfront from a new perspective.

In its completion, it will stand as a world-class venue that will attract visitors from around the globe, putting Yiwu on the map as a cultural destination. Construction on the Yiwu Grand Theater is expected to begin in 2020.








First floor plan

Second floor plan
Project facts
Project name: Yiwu Grand Theater
Location: Yiwu, China
Year: 2018
Site area: 47,000 square meters
Building area: 95,290 square meters (aboveground: 48,942 square meters; underground: 46,348 square meters)
Clients:
Administration Committee of Silk Road New District of Yiwu
Culture, Broadcasting & Television, Tourism and Sports Bureau of Yiwu
Yiwu City Construction Investment Group Limited
Principal Partners in Charge: Ma Yansong, Dang Qun, Yosuke Hayano
Associate Partners in Charge: Fu Changrui, Liu Huiying
Design Team: Zhu Yuhao, Zheng Chengwen, Kazushi Miyamoto, Shang Li, Ma Yin, Jordan Demer, Guo Wenjia, Zhu Zixiao
All images courtesy of MAD
> via MAD
