Submitted by WA Contents
Matrix Design completes multi-purpose club featuring 3D gridded façade in China
China Architecture News - Jul 01, 2019 - 02:51 12401 views

Chinese architecture firm Matrix Design has completed a multi-purpose club in China. The club, named Times Group - MT TITLIS Club, serves for different programmatic activities, including gym, meeting spaces, offices and relaxing spaces.
Located in Foshan, China, the architects approached the interior design based on the site and architectural conditions. Matrix Design created an exquisite, tranquil and comfortable home-like space with creative designs, providing urban elites with a fantastic destination to relax and meet friends.

Covering a total of 1,000-square-metre area, the two-storey building is based on the idea of "tranquility", the designers gave full play to their imagination on "serenity, colors and forms", aiming to create a spatial ambience of void and simplicity.

The materials utilized feature various textures, which add delicate expressions to the space. As creating interior settings, the design team focused on conveying the concept of coexistence between human and nature. The angles of framed views, and the axis of the yard, all remind people to think about the dialogue between mankind and nature.
Moreover, the material palette of local materials, including timber, stones, iron, wood-color paint and glass, also indicates a natural construction method.

"The overall interior design follows "minimalist modernism" as the main thread, and presents a neat and simple spatial sequence. The walls have a warm texture, pure and natural. And the sense of "solidness" of interior structures, make the minimalist space powerful," said the architects.
"The utilization of elements shows perfect coordination and integration with sound, lighting and spatial context."

The space has its order, though seemingly disordered. The vertical columns rise up, matching with the structures and complementing each other, which is very expressive and striking. In this way, spatial sequence is formed. When viewing from a distance, the space appears as large whole, while small details are shown as taking a closer look. Dotted with natural decorations, the interiors well blends with exteriors.

Apart from considering functions and landscape, the design team also attached great importance to light effects. In this space, the light varies in every day throughout the year, and encounter people at each turn and corner surprisingly. The outdoor forecourt is set with waterscape, becoming an aesthetic and cool place for enjoying views and resting.

The interior design is harmonious and consistent with the architectural form, making the outdoor environment and interior spaces an integrated whole, which perfectly combines functions and unifies spatial tonality.











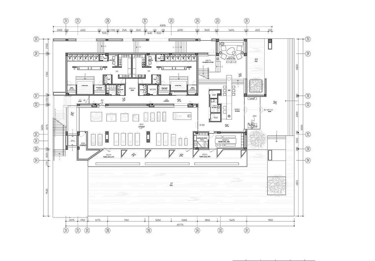
First floor plan

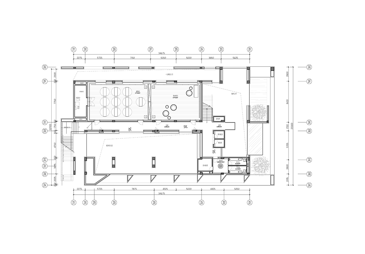
Second floor plan
Project facts
Project name: Times Group - MT TITLIS Club
Project category: Club
Location: No. 11,SanhuanRoadEast, Shishan Town,Nanhai District, Foshan, Guangdong, China
Finishing design: Matrix Design
Decoration design/execution: Juzhen Mingcui
Project area: 1,000m2
Finishing cost per sqm: 4,000rmb
Decoration cost per sqm: 3,000rmb
Main materials: travertine, marble, wood veneer, wood-grained aluminum panel, black brushed, stainless steel
All images © ShenzhenShi Xiang Wan He Cultural Communication Co.,Ltd.
> via Matrix Design
