Submitted by Varun Kumar
Play Architecture plays grand for the SIAA’s Artistes Recreation Center in India
India Architecture News - Jul 18, 2017 - 21:12 31266 views

Play Architecture’s proposal for the South Indian Artiste’s Association (SIAA) will be the first of its kind artistes’ recreation center to be built in the city of Chennai. The design culminates the efforts of Tamil Film artistes to uphold the rich history and culture of Tamil Cinema and will stand as a milestone in SIAA’s career.
The SIAA is a union for film, television and stage actors in Tamil Nadu. Since its inception in 1952 as a charitable trust fund, the union has been pensioning retired artists, voicing support for artists in controversies. In the early 1950s, film studios of the South Indian Languages-Kannada, Malayalam, Tamil and Telugu-were based in Chennai.
After functioning as the South Indian Film Chamber of Commerce along with the Junior Artistes Association for a while, legendary actor M.G. Ramachandran’s decision to join together as a family created SIAA. South Indian cinema has since been growing as a massive and thriving business, thanks to its ever flourishing talent in film-making.
Paul Goldberger said that he doesn’t critique a design before it’s built. But Apple’s Cupertino Campus sure made him. Perhaps, large scale proposals for influential clients do open the floor for speculations.
Architecture and Film-making cross paths often as they share similar attributes in each other's creative realms. Envisioning and capturing scenes through the lens involve skills that architects relate to. Films also serve as references for architects on how to visualize, while architecture provides the right locations to shoot in.

Apart from such exchanges, architecture is also a facilitator for show business. Hollywood witnessed architects for OMA-designed Kanye West’s film screening pavilion and Oana Stanescu's design for a 50-foot-high volcano structure for Kanye's stage and his other concerts.
An architect-film maker team created INTERIORS, an online journal that studies the use of space in cinema. Bollywood was interpreted by Yazdani Studio as a museum and was later re-imagined by Archasm as a film city tower. Perhaps, Play Architecture’s design for the SIAA falls along this line as a major contribution to the visual arts industry.
In Chennai, driving to work every day is not accompanied by an enjoyable cityscape, but by a traffic problem to get through. Until one day, when you find yourself driving past a giant white stone held by a huge grid structure has come up, you might just decide to leave early and spend some time gazing at the new monument in the city.
The idea is to construct the famous "butter ball" with techniques inspired by kolam - an intriguing experiment with tools from the South East - intending to emulate the strong notions of South Indian culture that people have. From the road, after being humbled by the 'butter ball', an exquisite earth wall would catch your eye and drive you into the complex for a grand show of architecture and engineering.




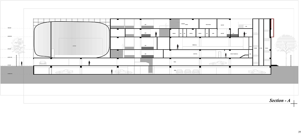
The building fronts two roads, the prominent one being Habibullah Road, where the butter ball will stand monumental. Behind, the building’s brick dressing, masking the SIAA building’s commercial and residential activities, will stand tall too. And sandwiched well in between these are the spaces for congregation like marriage halls, the banquet and the preview theatre.

After the Indo-Sarascenic era of Madras, and the Tamil Nadu legislative Assembly Building, Chennai could just witness its next genuine architectural product of this scale.
One could say that despite being inspired by elements typical of Tamil Culture, the design here is not all about traditional Tamil culture, but it will be a contemporary rendition of it. It will be an original product of Tamilians and the activities inside will surely pack a punch.


"My first interaction with Mr. Vishal, the General Secretary of SIAA, made a clear vision to take Tamil Nadu Architecture to its next level in its Artistic and Scientific aspirations by creating a modern day monument that people would enjoy visiting time and again. This project had to be fought hard through an invited competition," said the architects.
"This project was a great opportunity to explore the physical and cultural contexts of Tamil Nadu and the South Indian Artistes. Personally it was a great opportunity for me to connect back to the City after two decades and the first time professionally. We inquired Chennai’s culture, history and the impact of Kollywood on the day to day living of a common man, and created an abstraction of it through the built form. It was important to express to the client our intent and depth of cultural knowledge."


"In our first review, Mr. Nasser, the president of SIAA, advised to us use nature-friendly materials. He expressed his love for bricks and rammed earth. Mr. Karthi, the treasurer of SIAA, helped in re-framing our zoning diagrams to suit their requirements best."
"It was a thoroughly enjoyable and challenging design process as we revisited the design with many committees of SIAA, to ensure satisfaction among all involved in the project," explained the architects.







After a few years of working and living in Auroville, architect Senthil Kumar Doss, founded Play Architecture with Ms. Poonam Sachdev in 2005 and has been evolving as a collaborative practice with continuously research in various design channels of architecture. Based in Bangalore, Karnataka, their research receives support in response to their lectures and workshops held in institutions in Tamil Nadu and Karnataka.
Hailing from deep Southern parts of Tamil Nadu, the architects weren't alien to the cultural expectations of the brief, supported by Anvil Projects LLP on the financial planning and management aspects. But the long struggle of keeping South Indian Cinema’s establishments alive is certainly well culminated with this design.
The project's construction is currently under a hiatus, awaiting the council's approval to proceed further.













Physical model
Project facts
Design team: Play Architecture, Bangalore
Team: Senthil Kumar Doss (Principal Architect, Founder), Deepak Ramadasan (Senior Associate Architect, Partner), Mahesh Pandian (Senior Associate Architect, Partner), Guru Prakash (Associate Architect), Deepan (Senior Architect), Dinesh, Periyasamy, Sreevanth, Archana (Junior Architects), Prathiksha, Meinathan, Thoufeeq, Seetharam, Harish, Sooriyakala, Shradha, Niloofer (Interns)
Location: Chennai, Tamil Nadu, India
Principal Management and Technical Consultants: Anvil Projects LLP, Chennai
Structural Consultant: Manjunath and Co, Bangalore
Auditorium Consultant: I.N. Basu and Associates, Delhi
Electrical Consultant: Poorna Engineering, Bangalore
Plumbing / Fire Fighting Consultant: Bays Consultants, Bangalore
HVAC: Eframe works, Bangalore.
All images courtesy of Play Architecture
> via Play Architecture
