Submitted by WA Contents
Arcgency transformed former coal crane into a luxury private retreat in Denmark
Denmark Architecture News - Jul 31, 2017 - 14:52 13815 views

The Danish architecture firm Arcgency has transformed former coal crane into a new luxury two-person retreat in the harbour neighborhood of Nordhavn in Copenhagen. The studio creates an immersive and multi-sensory experience where art and function are redefined.
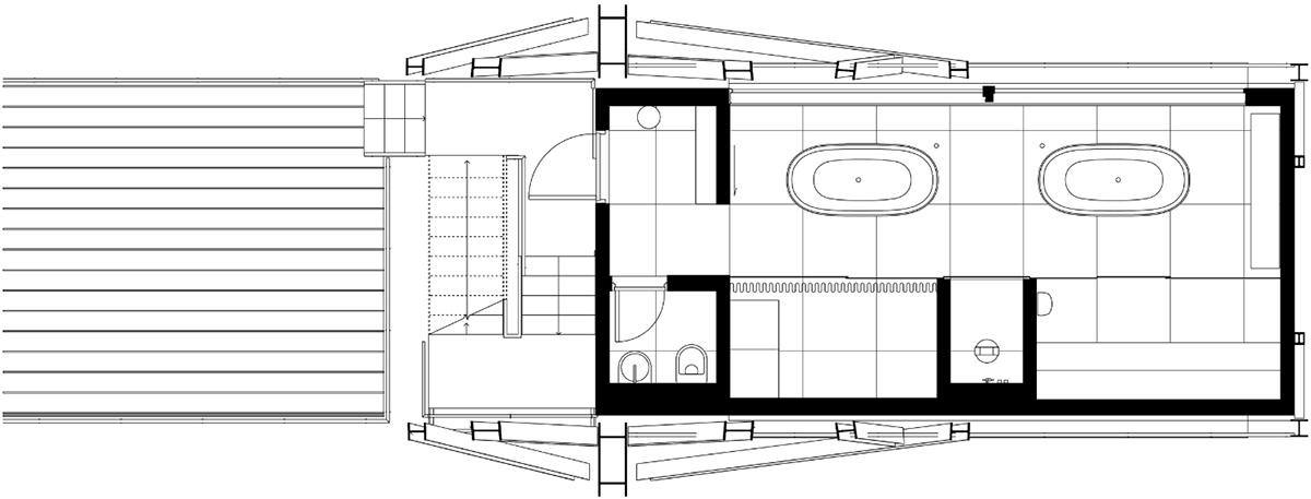
Named THEKRANE, the new retreat presents an aesthetic oasis amidst an industrial landscape on the edge of Nordhavn, one of the last harbours under renovation in Denmark’s capital. The cool structure consists of meeting room, spa and private retreat inside this exclusive Danish black design.

Designed by Mads Møller, the master architect of Arcgency, the concept is based on its dark past as a crane and its colour was the determinant element for its design scheme.
The former crane was used for loading coals in previous years. As the area is majorly under transformation, Klaus Kastbjerg, the client of the project, decided to reuse this former crane for a different purpose as an homage to its past.

Fostering a soothing sense of serenity inside this multi-tiered structure comprised of a reception area on the ground floor, a meeting room - called the Glass Box - on the first floor, a spa and terrace on the second floor, and a private retreat on top - called the Krane Room - with a lounge and terrace.

In addition to its allusions to coal, black plays a pivotal role in muting and minimising visual distractions so people feel almost enveloped in the interior. At the same time, black dramatizes the changing light and breath-taking views outside. For Møller, black isn’t just black.
"There are hundreds of different shades of black. Depending on the time of day, you can see so many subtle nuances," said lead architect Mads Møller.

The architects use only leather, wood, stone and steel to protect its black envelope. They’re just some of the noble materials the visitors will be able to see in the furniture, designs and décor details.

Not only is the furniture custom-made to fit the concept and the dimensions, the interior is constructed so the primary pieces disappear - with the beds, seating and cupboards integrated into wall panels and the functional pieces hidden away.
The studio creates an extra element of discovery, where objects become like sculptures in a stunning still life. Everything is handcrafted by artisans in homage to Denmark’s expertise in craftsmanship.










All images © Rasmus Hjortshøj
> via Arcgency
