Submitted by WA Contents
Aleph-Bau breaks Toronto’s row houses monotony with an unseen rooftop
Canada Architecture News - May 23, 2017 - 12:42 16966 views

Toronto-based Aleph-Bau breaks Toronto’s row houses monotony by setting a new paradigm for urban density in a historic fabric. A serious of monotonous façades is embracing a new type of renovation for the Twelve Tacoma, standing out in a steady line-up of typical 19th century workers’ rowhouses in Toronto’s central Summerhill neighbourhood.
The coloured brick facades and quintessential front porches of the neighbouring houses couch Twelve Tacoma in a local vernacular that both subdues and accentuates its modern qualities. This paradoxical sensation is born from the choice of materials: Twelve Tacoma’s white paint and corrugated aluminum cladding are distinctly elegant, crisp additions to an otherwise familiar neighbourhood aesthetic.

Image © Tom Arban
"Certain details—like the simple front railing and plexiglass awning over the door—mimic the ordinary signifiers of the neighbouring homes, but with a decidedly contemporary bent," explained Aleph-Bau.
"Yet, Twelve Tacoma is not over-bearing or out of place. The aluminum upper level goes almost unseen from the front of the house, poking up over the rooftop like a curious child," added the studio.

Image © Tom Arban
From the laneway in the back, the full vertical mass comes into view, as stacked viewpoints dissolve the borders of inside and outside, bringing the nearby foliage into the home and the inhabitants to the outdoors.
To construct the third-floor addition without burdening the party walls, a new steel structure is introduced to the original wooden building from the ground all the way to the upper roof.

Image © Tom Arban
The interior is austerely furnished and minute details repeat with a refreshing dogmatism. Even the modular sliding storage units in the front hall and bedrooms work to conceal the usual clutter of domestic life, creating a holistic composition that emphasizes near-Fordist organization standards.

Image © Tom Arban
What takes the house beyond the more somber or uninhabitable effects of modernist aesthetics is its welcoming relationship to natural elements. Twelve Tacoma is open and transparent, inviting nature in.
An upstairs bathroom is fitted with a wall of plants, overhanging the bathtub, with the whole space set in slightly by a balcony but nevertheless featuring an unabashedly curtainless, floor-to-ceiling glass door.

Image © Tom Arban
Large windows running all the way down the rear exterior wall of the house open up the space to sunlight and reflect an energizing brightness in the interior. The staircase in the center of the home acts as a pivotal force in the design, its whimsical geometry giving the space a playful character, while the basement living room is slightly sunken, making the concrete bench seating feel like a small, personal amphitheatre.

Image © Tom Arban
"Architectural elements disappear in favour of the atmosphere- one that is an amplified reflection of the outside; light, the sky, the clouds, the neighbors’ tree, the sound of rainfall and the shabby structures in the laneway are inside now", said Delnaz Yekrangian, Aleph-Bau’s director.

Image © Tom Arban
The rooftop terrace and unusual geometries of the house are unprecedented reactions to Toronto’s strict zoning and code regulations. The architects have worked with and not against the stipulations to seamlessly integrate small cubby holes and simple railings that appear, effortlessly, as if they had always been a part of the original design.

Image © Tom Arban
Aleph-Bau’s project amplifies the sensory, imaginative and intellectual relationship to traditional architecture in an intense dialogue with its urban context and surrounding natural elements.

Image © Tom Arban

Image © Tom Arban

Image © Tom Arban

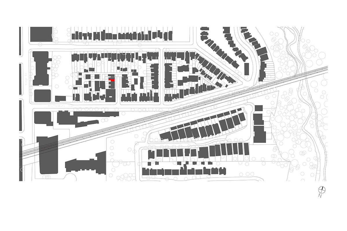
Site plan

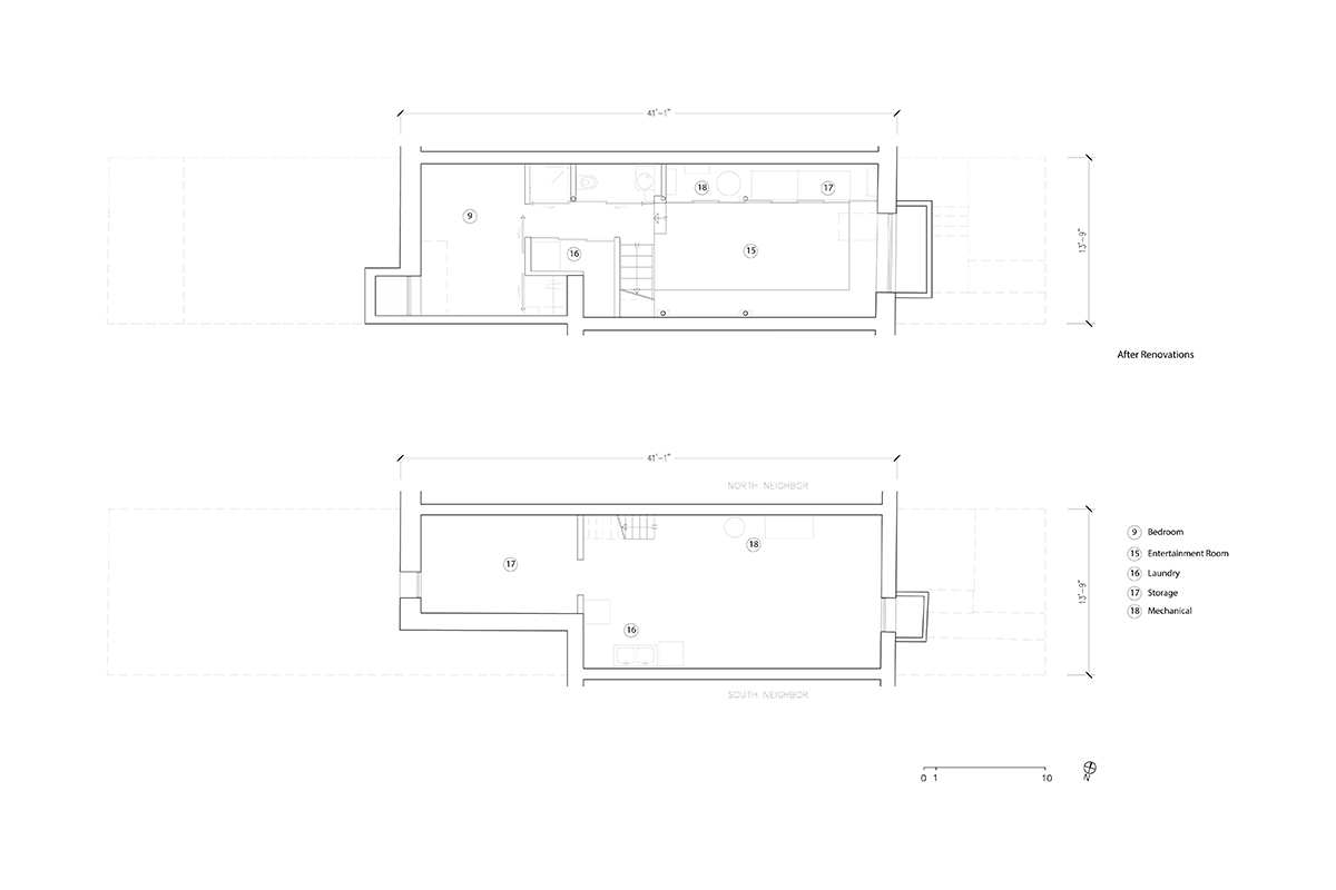
Basement floor plan

Ground floor plan

2nd floor plan

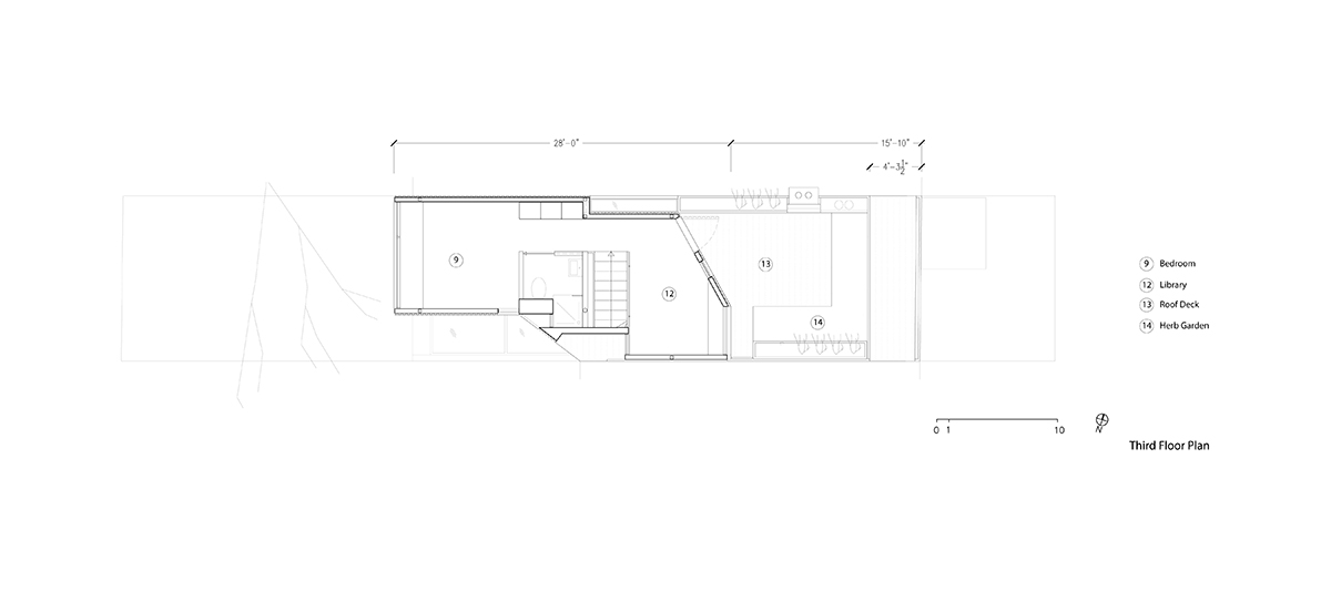
3rd floor plan

Section 1-1

Section 1-2

Section 1-3

North elevation

Axonometric drawing

Aluminium cladding pattern
Project facts
Project: Twelve Tacoma
Location: 12 Tacoma Avenue, Toronto (Canada)
Client: Private Architect: Aleph-Bau (Delnaz Yekrangian)
Design Team: Gina Gallaugher, Golara Jalalpour, Joseph McBurney, So Tadachi, Fabiana Todescan, Leila Sadri, Kazem Yekrangian
Design: 2013
Completion: 2016
GFA: 114 sqm (1.223 sqft)
Structural Engineer: Blackwell
Top image © Kunaal Mohan
> via Aleph-Bau
