Submitted by WA Contents
House On Mountainside Overlooked by Castle
United Kingdom Architecture News - Apr 09, 2015 - 16:54 11842 views

Fran Silvestre Arquitectos designed a pure and modest house crashing to the mountains of Valencia.
The building is located in a landscape of unique beauty, the result of a natural and evident growth. The mountain, topped by a castle, is covered by a blanket housing through a system of aggregation by simple juxtaposition of pieces generated fragmented target tissue that adapts to the topography.

The project proposes to integrate into the environment, respecting their strategies of adaptation to the environment and materials away from the mimesis that would lead to misleading historicism, and showing the time constructively to meet the requirements of the "new people."

In this way the house is conceived as a piece placed on the ground, joining in the gap. A piece built on the same white lime, the same primacy of the massif on the opening, which takes the edge of the site to have their holes and integrated into the fragmentation of the environment.

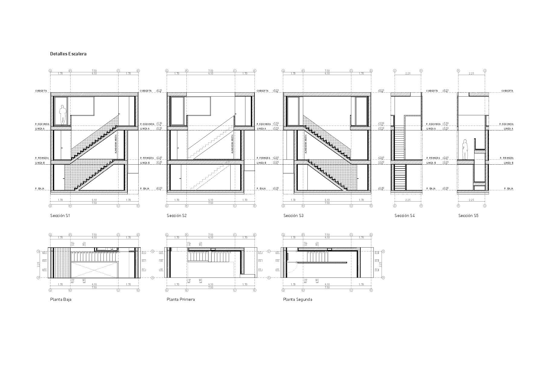
The indoor space is divided by the void that is the core of communication cut parallel disposition of the mountain without touching it. On the ground floor are the garage and cellar, on a volume it has two floors with four rooms.

Two of them, the rooms at the intermediate level are open to the private street, the other two on the upper level overlook above the houses opposite, the Valley of Ayora. One of them, the study is opened in turn to the central double height, incorporating it into their space. Across the gap, and on the mountain, are the areas facing the garden day illuminated by light reflected on the south slope of the castle oxidized.















All photographs © Fernando Alda
Project Facts
Project Team:Fran Silvestre | Principal in charge,María José Sáez | Principal in charge,Ángel Ruíz | Collaborator Architect
Building Engineer:Pedro López
Interior Design:Alfaro Hofmann
Contractor:Cooperativa Montemayor
Location:Ayora,Valencia
Site Area:477,06 m2
Built Area:230,00 m2
Building Services
Sanitaryware:Toilet and bidet | C52 Series, Catalano,Wash-basins | Supercity, Sanico
Sanitary Fittings:Bathrooms | Talis S2, Hansgrohe,Kitchen | Minta, Grohe
Lighting:Custom-sized linear fluorescent light (Studio2)
Light Fittings:LS 990 Series, Jung
Finishes
Paving:Interiors | Capri random paviers (large format),Exteriors | Capri random paviers (large format)
Surfaces:Walls and ceilings | Plasterwork,Bathrooms | Capri stone panelling,Exteriors | Thermal insulation + white external render (Sate Vipal / Parex)
Paint:Matt plastic paint RAL 9010
Metalwork and Locksmithing
Interior:Internal and cupboard doors | White lacquered MDF RAL 9010 | (Carpintería Sergio)
Exterior:Lacquered open pore timber (Carpintería Sergio)
Glazing:Climalit + Stadip safety glass
Equipments
Kitchen:White lacquered MDF RAL 9010(Carpintería Pedro Segura Landete)
> via Fran Silvestre Arquitectos
