Submitted by WA Contents
Archstudio converts Hutong's traditional commercial block into residences by "layering courtyards"
China Architecture News - Mar 28, 2018 - 06:54 22259 views

Beijing-based architecture firm Archstudio has converted one of Hutong's traditional arched-window blocks into new residential houses that can also serve as a complex for various public activities by only "layering courtyards" to create smooth transition in between spaces.
Named Layering Courtyard, the 530-square-metre complex, located in a noisy Hutong neighborhood, sets a new type of spatial relationships embedded in the historic commercial block. The studio renovates and refunctions the interior spaces by only using mirror stainless steel, printed glass membrane, translucent brick, oak board materials to harmonise the new with the old, the history with the new liveable space.

Image © CreatAR Images/Luo Juncai
"The original architecture was a quadrangle courtyard commercial building with the characteristics of houses in the Republican period. Compared with residential houses, the houses here are bigger and higher," said Archstudio.
"There is a row of arched doors and windows on the south along the street, and two-story houses on the north. Before the renovation, the housing structure was completely rebuilt; with the courtyard there were no doors, windows or walls, but exposed rough wooden structure beams. It is said that it was a brothel in the Republican period, then transformed into a bakery after the foundation of China, and later was left unused after the reconstruction."
"In the future, the building will be a complex for public activities and living. Therefore, while improving the quality of construction and infrastructure, this renovation focused on creating experience in particular scenes based on the Hutong environment, aiming to attract urban population who have increasingly diversified consumption demands," added the architects.

Image © CreatAR Images/Luo Juncai
"A prominent feature of traditional architecture is the layering courtyard," as described the architects. In a quadrangle courtyard with three layers, a house's function changes as people entering each yard, the privacy gradually increases from outside to inside, giving people an impression of "deep courtyard".

Entrance area. Image © CreatAR Images/Luo Juncai
The design is inspired by "multiple layering courtyard" in traditional spaces, thus the previous inner courtyard was changed into a "three-layered courtyard" in order to adapt to the transition from the public spaces to private spaces step by step, besides, the designers took advantage of the yard's layering structure to create a quiet, natural and poetic scene in a noisy Hutong neighborhood. "Layering Yard" has rearranged the relationship between new and old, inside and outside, artificial and natural.

Reception area. Image © CreatAR Images/Luo Juncai
Firstly, the designers demolished some parts of the house roof in the south so that the first layer between the interior space and street yard was created, secondly, they added a slope-roof building between houses on the north and south, and then separated the old and new with two parallel yards.

Front courtyard. Image © CreatAR Images/Luo Juncai
The three-layered courtyard allows all indoor spaces to be accompanied by bamboos and sunlight. The spaces are separate but penetrate with each other, the glass walls with spray patterns look like overlapping peaks, which further strengthen the translucent sense, thus achieving the layering juxtaposition of different scenes and living situations from outside to inside.

Front courtyard. Image © CreatAR Images/Luo Juncai
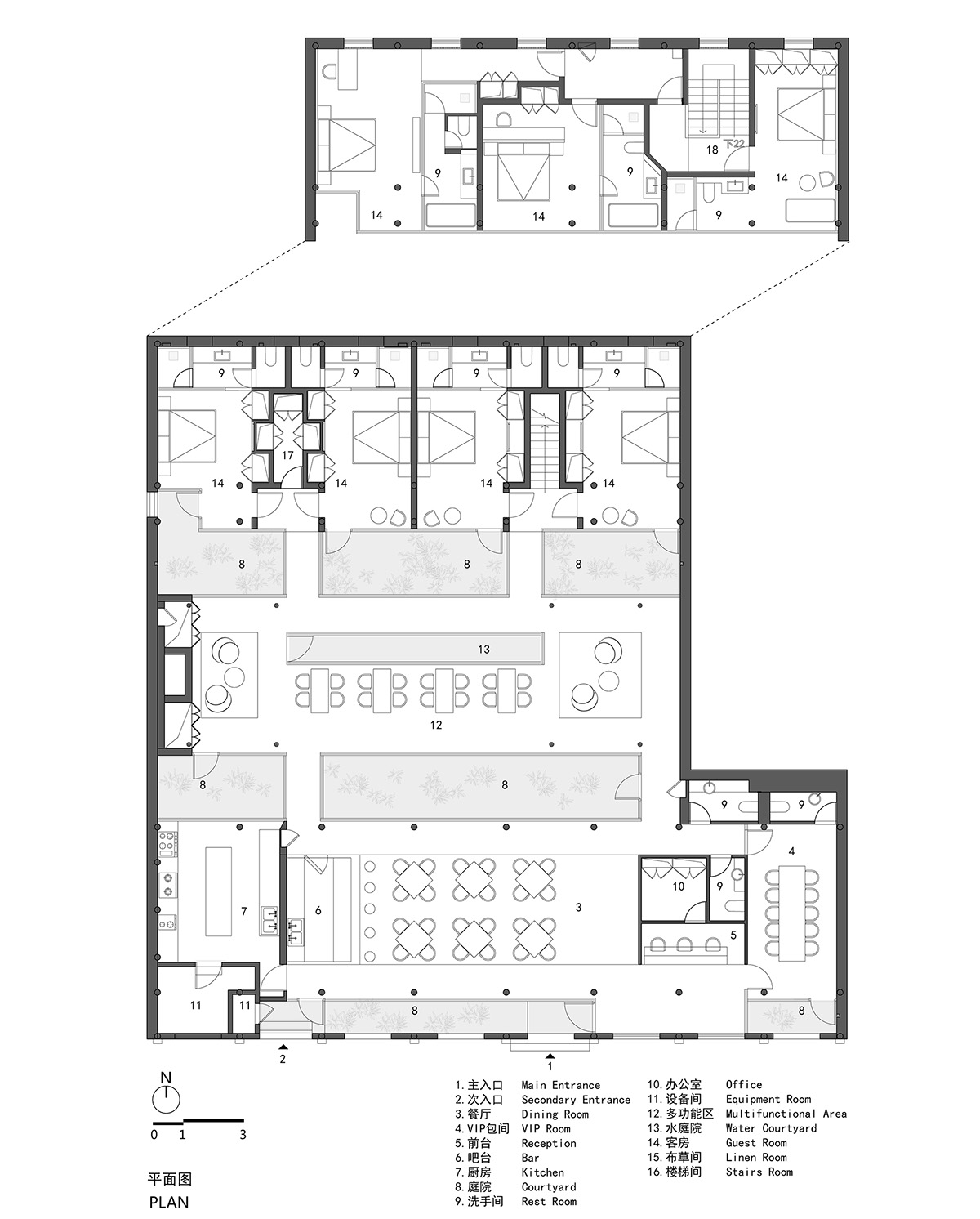
The house's usage patterns follows the naturally transition from openness to privacy of the three-layered courtyard. The south house is a place for public gathering activities, with an arrangement of reception space, dining room, bar, kitchen, office, warehouse and so on. The original wooden beam and column structure was preserved as much as possible, and two new wooden box service units were placed inside to divide spaces of different scales.

Dining room. Image © CreatAR Images/Luo Juncai
Through the first layering yard, the window openings of the original building and the painted doors form the effect of "shadow wall", together they outline a real and colorful Hutong life scenes under the setting of bamboo forest.
The house in the middle was changed into a flexible multi-functional space, which can be used together with the front restaurant, or as an independent exhibition hall, or be integrated with the guest room area to become a rest area.

Multi-function room. Image © CreatAR Images/Luo Juncai
The designers tried to consider the harmonious relationship between the new building and the two old slope-roof buildings on both sides in terms of the scale, lighting and distance.
The inner spaces were built around a linear waterscape garden, and mainly used transparent, translucent, reflective materials and furniture to weaken the spaces' physical feeling and create a light, transparent and floating atmosphere that is different from the old building, making the spaces allusive and concealing in the bamboo courtyard. Houses on the north side are the most private places.

Resting area. Image © CreatAR Images/Luo Juncai
The designers made use of the original structure to divide the first floor into four rooms. The rest area and bathroom area were separated from each other by the change of materials. Each guest room has an individual bamboo courtyard, and the inside and outside are stacked with one another.

The second layered courtyard. Image © CreatAR Images/Luo Juncai
The second floor was divided into three rooms of different sizes. Through the floor glass curtain wall, people can enjoy the best views of layered gray tile roofs, green trees and blue sky.
All rooms are equipped with facial recognition and intelligent control system. Guests can book a room online and scan a code to check in, providing an easier and more convenient living experience.

Guest room on the 2nd floor. Image © CreatAR Images/Luo Juncai

Night view. Image © Jin Weiqi

Night view. Image © Jin Weiqi

Night view. Image © Jin Weiqi

Bathroom in guest room. Image © Jin Weiqi

Waterscape courtyard. Image © Jin Weiqi

Project location

Floor plan

Section

Diagram of the exterior wall

Generated diagram

Model view
Project facts
Project Name: Layering Courtyard
Project Location: Qianmen, Beijing, China
Architecture Area: about 530 m2
Completion time: 2018.02
Main Materials: mirror stainless steel, printed glass membrane, translucent brick, oak board
Designers: Han Wenqiang, Huang Tao / Archstudio
Structure Consultant: Zhang Fuhua
Hydropower Design: Zheng Baowei
Lighting Consultant: Dong Tianhua
Furniture Consultant: Song Guochao
Top image © CreatAR Images/Luo Juncai
> via Archstudio
