Submitted by WA Contents
Fran Silvestre Arquitectos completes a volume-shifting house between the pine forest of Spain
Spain Architecture News - Sep 14, 2016 - 15:12 24044 views

Spanish architecture firm Fran Silvestre Arquitectos has completed its new white volume-shifting house between the pine forest of Spain. Located in Paterna, in an arid Mediterranean climate of Valencia, the new residential house was converted from the original house by keeping its structure as original.
Fran Silvestre added a new material quality and identity to the house by playing with interior spaces, sizes, heights and volumes in order to get a perfect and pure form even if he keeps the house much more simplistic, modest and contemporary with elegance look.

''Twenty-one plateaus and seven volumes tell the story of this house,'' says Fran Silvestre, founder and principal architect of Fran Silvestre Arquitectos.
The aim of the project is based on a new and even identity to a house belonging to the same family for several generations. The original house formed by the aggregation of different interventions at different times, with different construction systems. Each of the rooms in the house describes a moment in life of this family story. Thus, it was essential to maintain the structure, spaces, uses, garden and memories, presenting them in a new way.

The further layer built in the history of this place employs new volumes used for new parts of the program. In this way leisure areas are projected, containing always the scale of the building and are presented as a sort of aggregation of small parts, which draws courtyards and narrows areas, as the traditional Mediterranean architecture does.

The interior respects the intermediate levels system producing a large spatial heterogeneity in rooms with a wide variety of sizes and heights. The supporting structure of the original house is housed inside the furniture that has the same gray shade as the trunks of some of the species that inhabit the garden.
The house is woven both among the trees and among the good memories that live in this pine forest.



















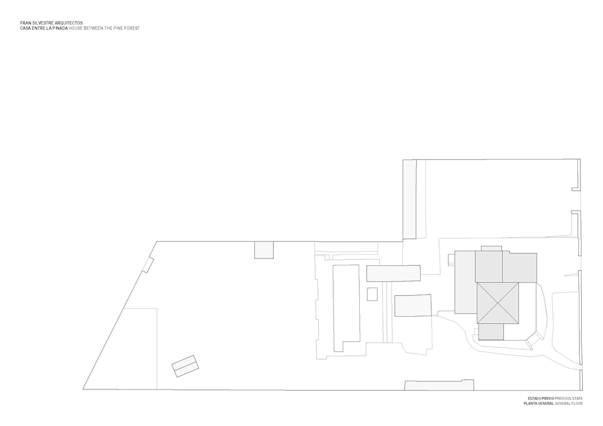
General floor

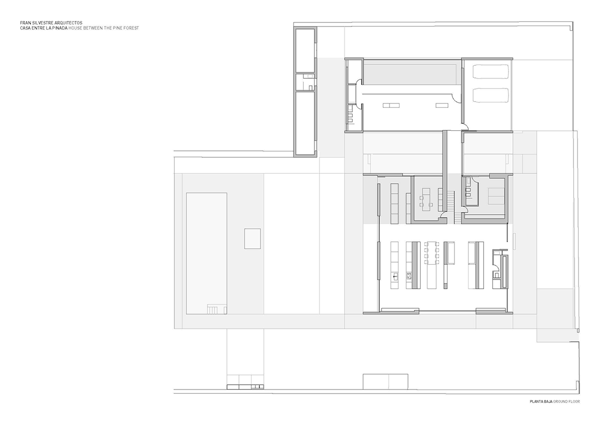
Ground floor

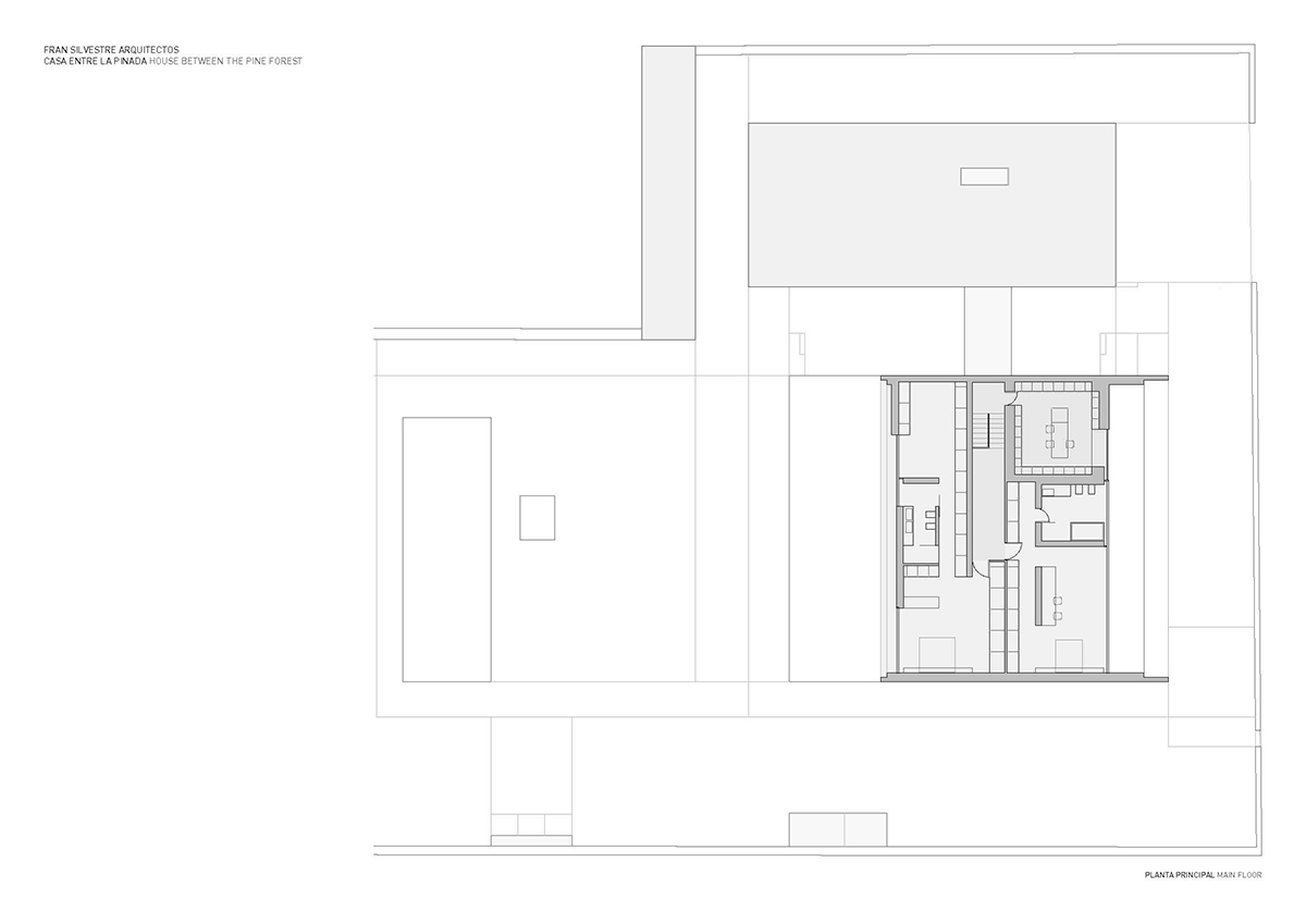
Main floor

Roof plan

Ground floor-previous state

Main floor-previous state

Sections

Model
Project Facts
Project name: House Between The Pine Forest
Architect: Fran Silvestre Arquitectos
Location: Paterne, Valencia, Spain
Interior design: Alfaro Hofmann
Project team: Fran Silvestre (Principal in Charge), María Masià, Estefanía Soriano, Fran Ayala, Ángel Fito, Pablo Camarasa, Sandra Insa, Santi Dueña, Ricardo Candela, David Sastre, Sevak Asatrián, Paloma Márquez, Eduardo Sancho, Esther Sanchís, Vicente Picó, Erika Angulo, Alba Monfort, Ruben March, Álvaro Olivares.
Structural engineer: Josep Ramón Solé, Windmill
Building engineer: Carlos García
Site area: 3106, 52 m2
Built area: 722.32 m2
All images © Fernando Guerra
All models & drawings © Fran Silvestre Arquitectos
> via Fran Silvestre Arquitectos
