Submitted by WA Contents
A red cedar grill placed on mottled worn walls of Ceramic House to preserve authenticity
China Architecture News - Nov 01, 2016 - 15:36 16951 views

The Ceramic House is a retrospective attempt which tracing back to architectural fundamental authenticity, designed by Archi-Union Architects in the Shanghai city of China. Architects wished to integrate the new house with the site by the truthful simplest design methodology, which makes the house in connection with the site as an authentic way of being, rather than making judgments only through aesthetic visual aspects.
In the existing site, old buildings and one big tree were conceived as irreplaceable site features for the architects. Rather than remove and replace them with a brand-new object, or build a fake reality nostalgic context. The studio took the old as the inseparable elements along with the new building.

''Their existence represents the reemergence of site memory. The new building slightly attach on the old façade through the reasonable structure layout and circumspect construction detail design,'' say the architects.
Mottled worn walls and simply plain materials such as brick and wood, they naturally coexist and integrate with each other ideally. The old wall represents the signing of timing, which becomes the unduplicated characteristic feature of the site.

The big tree becomes the shading for the south balcony which prevent directly sight explosion from the road, and provide the diversity light and shadow on the facade in different seasons.
As a place for ceramic artists’ exhibition, communication and working, slightly rough texture material such as concrete and brick make a delightful contrast with refined ceramic art works. The humble authentic architecture itself becomes the background of the art works.

















All images © Su Shengliang
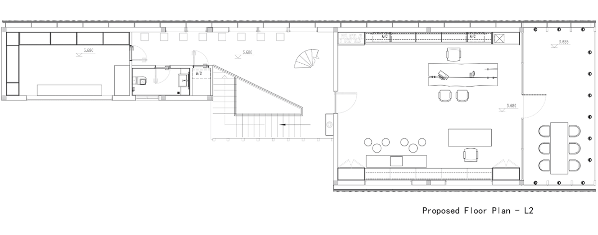
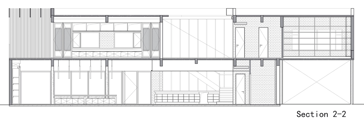
All drawings © Archi-Union Architects
> via Archi-Union Architects
