Submitted by Berrin Chatzi Chousein
Sho Ito wins The Architectural Association Foster + Partners Prize for 2016
United Kingdom Architecture News - Jul 21, 2016 - 21:55 68727 views

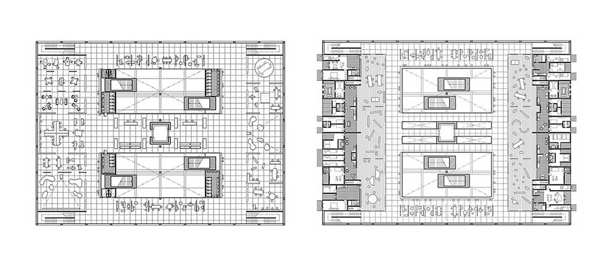
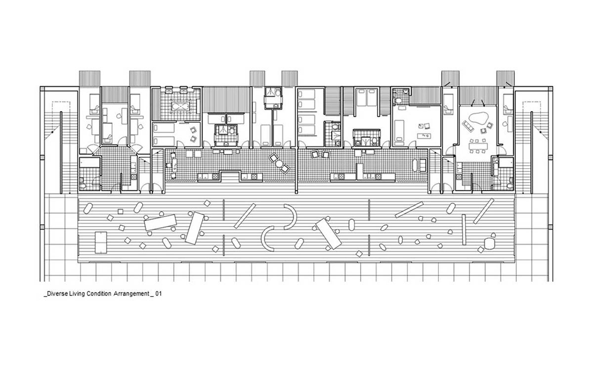
Sho Ito has won The Architectural Association Foster + Partners Prize for 2016 with his proposal 'I Live the Way I Want’, which ‘attempts to re-think the meaning of domestic spaces and to challenge the traditional housing model that has failed to provide new forms of living.'
The annual prize goes to an outstanding project dealing with issues of infrastructure, and sustainable architecture. The jury, led by Armstrong Yakubu, Partner at Foster + Partners, felt that the work presented by each of the participants was of an exceptional quality, with the seven shortlisted projects dealing with a wide range of thought-provoking issues.

Ito described his project as an attempt to 'provoke questions of occupation, family structures and modern lifestyles that has a large effect on the built environment & contemporary housing needs. Whilst at the same time to rationally analyse and articulate construction methods and processes to ensure a streamline process, from extraction of materials, transportation, distribution, implementation to even the maintenance of the built structure. This is to reduce, compromise and optimize unnecessary spaces, materials, construction process and many more to reduce the construction cost, which is intrinsically linked to the rental fees.'

‘I live the way I want, is not just a critique about the housing crisis, but a question on how to occupy domestic spaces when patterns of life are changing so rapidly whilst architecture struggles to adapt to these changes. On a larger context, how the ideology and system, can become a means to re-organise the city, and respond to contemporary housing needs. Where it attempts to find the common ground, through blurring thresholds of differences and individual priorities. And ultimately provoking questions about the ‘home’.’

''Once again the students showed an excellent variety of projects, leaving each one of us with much to think about. The work presented was of exceptional quality, but Sho’s work had a great deal of maturity of thought, taking an innovative approach to tackle one of the most pressing issues facing UK cities today. I would like to congratulate him on winning the prize, and hope to see him develop his ideas further in the future,'' said Armstrong Yakubu, Partner, Foster + Partners.










All images © Sho Ito
> via Foster+Partners
