Submitted by WA Contents
Ya-House creates vertical walls through sectional cuts of the material of concrete in Hyogo
Japan Architecture News - Dec 14, 2015 - 15:13 10256 views

all images courtesy of Kubota Architect Atelier
Japanese-based architecture firm Kubota Architect Atelier liberates the material on the skirts of Japanese mountains, which is a good use of concrete and space and presented as an art piece with functional contribution in terms of the quality of space in both cases -interior and exterior. Titled as ''Ya-House'', the residence is located in Hyogo Prefecture of Japan. It sits near the peak of a mountain where picturesque residences blend into nature from long ago.

view from the slope- concrete is seen very thin plane -an aesthetic element in the landscape
The sloped site,which was cut through the mountain, spins a supreme world of trees and greenery spreading nearby,endlessly extending blue sky, refreshing wind that quivers the surrounding and filled with bright light. It was attempted to tie the blessings of the rich nature to daily lives and enlarge joy of living by permeating them into deep down minds. Kubota Architect Atelier declares as: ''space for freedom and liberating minds:all architecture exist for that.''

concrete and glass are harmonized inside
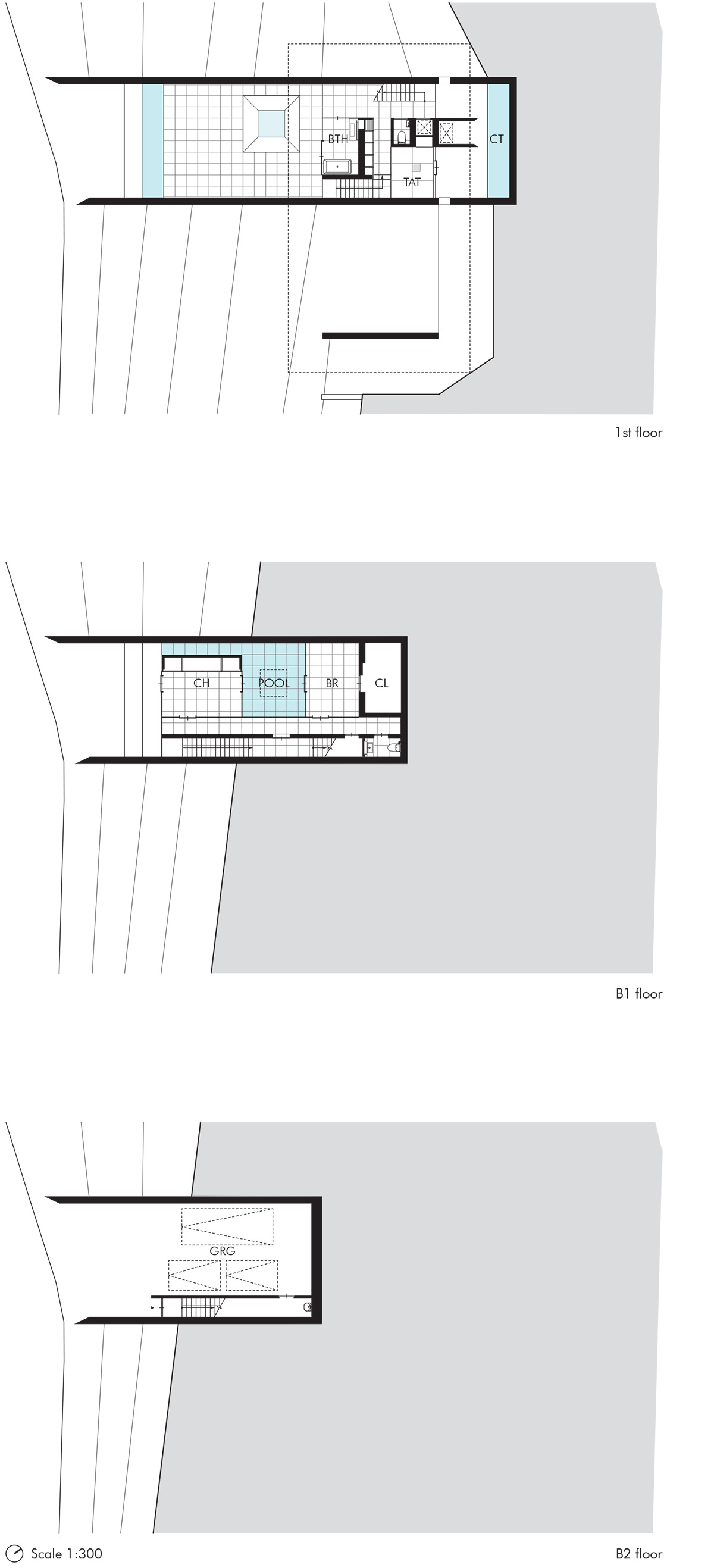
Two vertical walls and four horizontal slabs are configured towards the slope and spaces for living are created between them. Each space is different in relation to nature and the difference senses us the latent infinity of nature. Furthermore, the boundary between nature and architecture,that is,the edge of the slabs and the walls that define space are scraped off. As one side is bare concrete and the other side is all painted in white,materiality and massiveness is lost and only the meaning as surface remains.

view from the terrace of the house
Such highly abstract six walls and slabs let the spaces created between them to shift from concrete to abstract and reveal `empty’ world where nothing exists. Perfectly unfilled `empty’ world is where only mutable nature and ambiguous mind in reality exist and everything stimulates abstract interrelationship and blends into one. Thus, minds assimilate infinity of nature, are liberated intensely and find great pleasure in life proceeding with nature.


bedroom of the house takes daylight and opened to the full mountainy scene

a sectional-cut through the slab

night view from the house

a play of concrete through the slope




Project Facts
Architect: Kubota Architect Atelier
Location: Hyogo Prefecture, Japan
Area: 239.0 sqm
Project Year: 2015
> via Kubota Architect Atelier
