Submitted by WA Contents
Casa Nirau House is a small eco-friendly house that gives response to the climate of Mexico
Mexico Architecture News - Dec 10, 2015 - 16:49 8322 views

all images © PCW
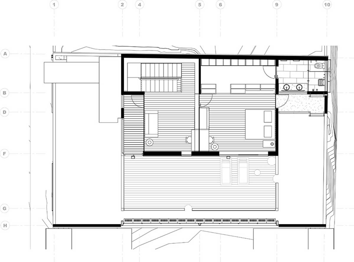
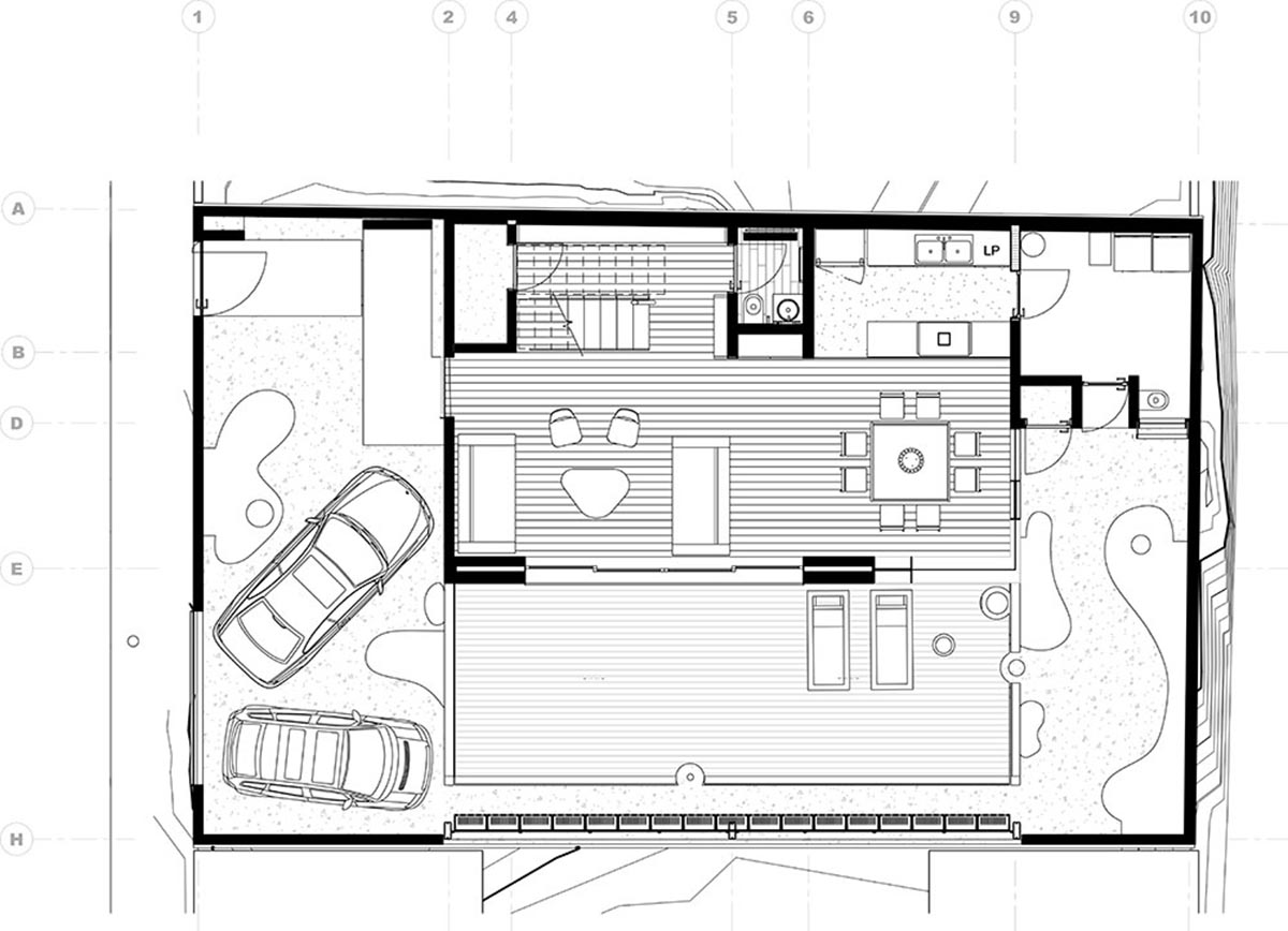
Mexican-based architecture firm Paul Cremoux studio designed a small-scaled house that produces its own energy, inspired by Mexico's city climatic conditions. Casa Nirau is an energy-efficient building in its own context and can be a good example of sustainable design through the building performance. The studio explains its design approach: the project foresees the opportunity to use reinterpretation as a consistent creative tool. By mimicking orientation strategy and a very simple functional diagram, the new construction relinks to the notion of history and accustomed-living behavior patterns.

Open space allow direct sun light to enter from the south side, east and west side are offset inner plot, so only north side is at property line. The idea is to transit from a 2,754 sq.ft. Old construction to a 1,937 sq.ft. one, mainly same program, roughly different space quality experience.

Weather analysis help the studio to decide various key features: Mexico city climate plays a very important roll, since 70% of the days per year can be used for outdoor living.

The main living-dining area can be completely open into the deck terrace making the relatively small indoor space larger. The deck floor transform itself into the façade, this is the patio elevation that mostly will be enjoy at all times.

All rain water is picked up by the roof and main terrace, then passes thru two main carbon activated filters, and becomes drinking water, so there is almost no water dependency from the grid.

By using the studio's performance base design procedure, Paul Cremoux studio envisions a maintenance cost of $15usd per month -electricity consumption and natural gas comprised. Paul Cremoux studio worked with Green Building Studio and Sefaira metrics to achieved energy savings and 2030 challenge (yet to be performance proved).




Project Facts
Design Architect: Paul Cremoux W.
Project Team:
Structural Engineering: Arch. Ricardo Camacho
MEP Engineering, Sustainability Consultant and vertical garden: Ing. José Antonio Lino Mina, DIA.
General Contractor: ARCO Arquitectura Contemporánea and PAUL CREMOUX studio.
Photos by: PCW
Status: Built
> via Paul Cremoux studio
