Submitted by WA Contents
Moon Hoon puts a weird ’’avant-garde’’ piece on wind houses hovering on Jeju Island
Korea, South Architecture News - Oct 16, 2015 - 15:03 12266 views

all images © NamGoong Sun, courtesy of Moon Hoon
Korean-based design studio Moon Hoon, which does not follow any stylistic architecture, loves surprising forms and ''weird'', ''unidentified'' pieces in architecture. Passionately, we're always waiting what a strange thing the moon hoon will design this time- the latest project of the studio is triple-private houses called ''wind house'' taking place in a popular vacation island, situated in the south of korean penninsular- in Jeju island. The climate of the island is windy, and generally the weather is very whimsical.

The island has a very specific character that is full of volcanic rocks in various sizes, comprising landscapes wonders to common walls demarcating ownerships. According to the experience of the design studio, many artists and commoners have been inspired by the beauty and versatility of the island. Moreover, recently flocks of Koreans and foreign tourists are visiting the island by the thousands. The winter days are often cloudy with strong winds- and the landscape turns to gold and black by dying foliages and volcanic rocks- This is the key point of design approach!

The site is located about just 1 hour drive from jeju city. It is surrounded by a curving road and houses and pensions. The town is a newly formed town that has a theme, primarly art and culture, so it is situated near a contemporary gallery district. The site faces one large piece of a curving road and two other sides are met by two distinct houses.

The client of this triple-houses is an ''eye doctor'' boasting a great dexterity in operations and ''he has particular tastes and a patron of contemporary art, music and cars. A doctor with many curiosity and penchant for something eccentric and special. He found me through the internet and told me that the strangeness and different ness that is inherent in my architecture attracted him. He wanted three small houses which would be weekend house or pension for tourists. He emphasized that the new structure should have unique character, and of course very functional at the same time'' says Moonbalsso from Moon Hoon.

The main approach of design is inspired by the wind and color of jeju island of winter that has made a strong impression on architects' mind and given the name ''wind house.'' The architect opens his inspiration with major clues: ''the plot has three sides one large curve and two sides meeting in a right angle. The area of the plot is ample for three small houses. I started out by using the site line edges as strongly walled definition. This allows for some privacy in otherwise a very open neighborhood.''

Two small house standing very low like traditional jeju houses lie right angle to each other having relatively high walls demarcating each inner gardens. The third house escapes the horizon and blossoms like a golden flower. ''Previously I had been commissioned for an wind museum, which turned out sour. I had liked the idea and shape of it, many times i would make drawings inspired by the wind museum. I felt it was an opportune time to reincarnate and modify the initial idea. I proposed the whole thing to the client. It took some time to digest it, but in the end he was quite happy'' added Moonbalsso.

In the site, the rather compact rectangular and low houses are walled individually for their own private gardens which allow for spatial expansion and experience. Everything is kept in minimal form wise and design wise. The hovering flower, inspired by the wind blowing a women's hair is frozen and abstracted about to become a shape that is reminiscent of an alien, hair dryer, duck and etc..The inside boast a womb like space painted in red and dizzing floor colors.

The sharp difference and contrast between the horizontal houses and hovering houses grounded secularly by high volcanic rock walls bring about a kind of contrasting harmony like that of flowers blossoming among the green leaves.




















initial sketch of the wind house

initial sketch-2


site plan

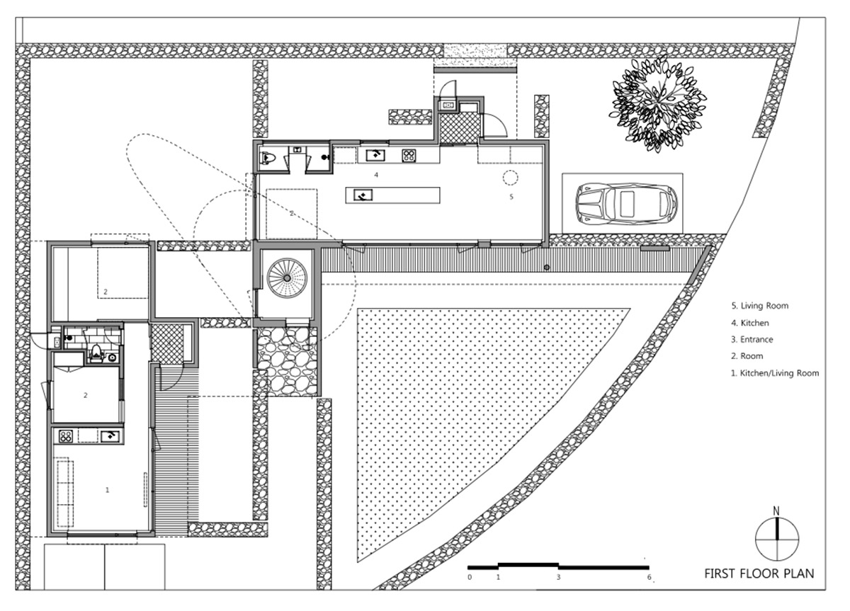
first floor plan

second floor plan

north / west elevations

south / east elevations

sections 1-2
Project Facts
Architect: MOONBALSSO / Moon Hoon
Project team: Kim Sookhee, Jo Jeongho, Park Jeonguk
Location: 3265-4, Hangyeongmyeon Jeojiri, Jeju-si, Jeju-do, Korea
Programme: House
Site area: 644.6m²
Building area: 162.83m²
Gross floor area: 154.39m²
Building scope: 2F
Parking: 3
Height: 8.3m
Building to land ratio: 25.26%
Floor area ratio: 23.95%
Structure: Reinforced Concrete , Steel
Exterior finish: exposed concrete, steel plate
Interior finish: paint
Structure engineering: Hanwoori , Dream Structure
Mechanical/Electric engineer: Chunghyo High Tech
Design period: March, 2014 ~ June, 2014
Construction period: July, 2014 ~ August, 2015
Budget: 350 million KRW
> via moonhoon.com
