Refuel Works And Formafatal Complete Art Villa Addressing To Colorfulness Of Costa Rican Jungle

A concrete villa, featuring protruding outdoor swimming pool, reflects the atmosphere, colorfulness and allurement of Costa Rican jungle to take the nature inside and to live with the nature.
Designed by Czech studios Refuel Works and Formafatal, their inspiration not only comes from the nature itself, but also the works of Brazilian architect Paulo Mendez da Rocha, whose works are commonly referred as "Brazilian Brutalism" as they are built in concrete.

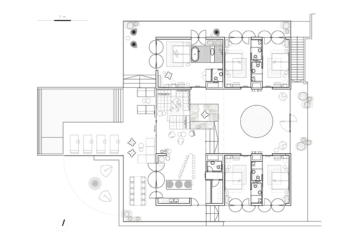
Named Art Villa, the 570-square-metre residence, located in Bahia Ballena, Playa Hermosa, Costa Rica, was designed as rental house as part of Art Villas Resortcomplex in Costa Rican jungle.
The complex consists of three unique villas and one multifunctional tropical pavilion with views of the Pacific Ocean.

Out of all the villas in the Art Villas complex, this majestic concrete villa was the first to be designed, as well as finished.
While the overall design of the villa is completed by Refuel Works' studio, the interior designs were completed by Formafatal to continue the same design approach in the interiors.

The two-storey villa sits on a land covering 25,000 square meters, the villa's usable floors encompass 570 square meters.
Apart from the generous common area, such as foyer, main living room, kitchen with a dining room, and the roofed terrace by the pool, the villa is equipped with a total of five bedrooms with private bathrooms.

In the basement floor, the architects designed a playroom for the children, a gym, a dance hall, a walk-in closet, a laundry room and utility rooms.

"When designing the interiors, we found inspiration not only in the surrounding wild jungle, but also in the work of the Brazilian architect Paulo Mendez da Rocha," said Formafatal.
"The concrete walls are deliberately left raw, complementing the interior components, selected materials, water, and greenery – all together creating an unusual environment, both rough and luxurious."
"The bedrooms and bathrooms feature cement ornamental tiled floors, custom-made over the border in Nicaragua. The ever-changing patterns and colours are a reflection of the elusive and unique nature of every moment in time. Every step leads to a change," added the firm.

The hand-painted watercolour jungle motif on the kitchen backsplash is another interior highlight. Serving as a mirror reflecting life behind the wall, the wall becomes a window allowing users to see the nature outside.

Art Villa, as well as Atelier Villa, is for the most part furnished with furniture designed and custom-made by local craftsmen or manufactured in the Czech Republic and then brought to the site.

The custom pieces go well together with several armchairs of a shared origin – they were all designed by South American designers and architects, including Objekto, Manufaktur+, OK design, Mula Preta, Notre Monde and SDLZ.

The architects used teak wood, metal, and linen in the interiors – these materials dominate in the villa interiors, and together with custom made furniture pieces in secondary pastel and bright colours, truly bring the raw concrete monolithic interior to life with a touch of softness.

"In the lush jungle of Costa Rica is a space that transcends ordinary. Where day and night merge in a heavenly expanse of verdant flora, pristine beaches, and exquisite style. Here you’ll discover three distinct villas each with their own bold and unique architecture and style," said the client in the description.
"Art Villas is inspired by the laws of the jungle. Our villas strike a rare balance between encounter with nature and protected luxury accommodation. Here creativity springs to life as you mingle with the jungle’s breath, relax in comfortable, charming spaces, and surrender to your purest self."

























Floor plan
Refuel Works studio is led by Jan Skoupý and Zbyněk Ryška, the studio has offices in Prague and Brno. Studio Formafatal, founded by architect Dagmar Stepanova, and the team is composed of Dagmar, Jan, Martina, Katarina, Iveta, Dana, Anna and Debora. Formafatal has office in Prague.
Project facts
Project name: Art Villa
Architects & Interiors:
Formafatal: Dagmar Štěpánová | interior design
Refuel works: Jan Skoupý, Zbyněk Ryška, architectural concept of Art Villa
Landscape architect: Atelier Flera
Screed surfaces: Different Design
Project location: Bahia Ballena, Playa Hermosa, Costa Rica
Project year: 2017 - 2018
Completion year: 2016 - 2019 (completed in December 2019)
Built-up area: 618 m2
Usable floor area: 570 m2
Site size: 25 000 m2
All images © Jakub Skokan and Martin Tůma / BoysPlayNice
> via Refuel Works & Formafatal
