Ana Coelho Arquitectura Converts Old Industrial Complex Into Office Building With Elongated Volume

Portuguese architecture firm Ana Coelho Arquitectura has converted old industrial complex into an office building by adding elongated concrete volume elevated from the ground level and supported by a piece of landscape.
Situated in Serzedelo, Guimarães, Portugal, the building was realized as an expansion of existing industrial building with interior design. Named Facol Offices, the project started with the rehabilitation of an abandoned and obsolete pavilion, providing it with the proper work conditions for a textile dyeing facility.

The second phase of the project consisted in the addition of a new volume to the already existent factory, creating a new building where all the administrative functions would take place.

The new office building was implanted on the south face of the existent volume, detached from it and separated by a vertical garden, which isolates any disturbance noise prevenient from the factory facilities.
The new volume is partially elevated from the ground level. One of its’ extremities is supported by a natural garden slope, whereas the other one is suspended, thus allowing to create an outdoors parking lot under the building.

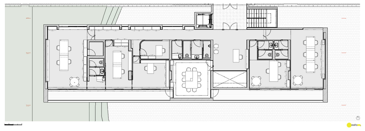
The interior distribution of space is organized after a central entry hall, which also connects to the factory volume (horizontally) and the ground level (vertically). The reception area connects with a corridor with openings to the vertical garden, which gives access to all the administrative offices.



All the offices are oriented South, profiting from controlled sunlight exposure and views to the surrounding landscape. The interior design was conceived as a natural extension of the architecture, maximizing the outcome with a minimum of resources.





Ground floor plan

First floor plan

Section

Façade
Project facts
Project: Expansion of Industrial Unit
Location: Serzedelo, Guimarães
Architecture: Ana Coelho Arquitectura
Construction: Telhabel Construções - S.A.
Engineering: PN10 - Engineering Services
All images © João Morgado
> via Ana Coelho Arquitectura
