Peripheriques Architects completed Espace culturel de la Hague in France

all images © Sergio Grazia
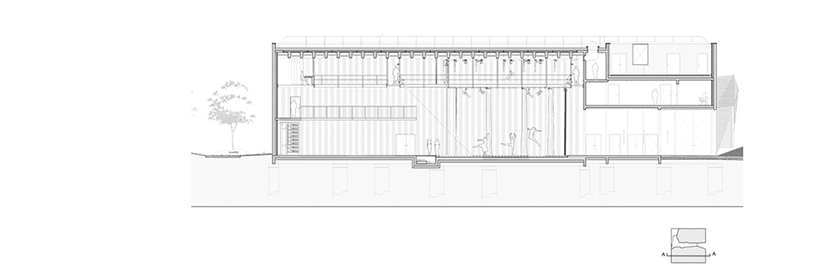
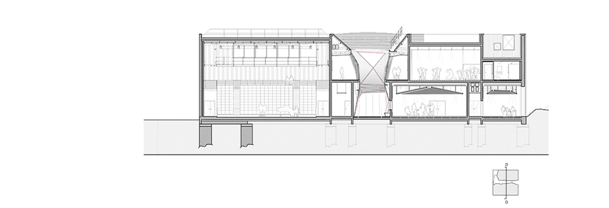
Peripheriques Architects completed red-colored spiral concert hall called 'Espace culturel de la Hague' in France. The building is a compact block 43m large and 11m high. The architects are 'digging' a covered pathway enlarged on the West angle of the ground floor plan as to mark the entrance. This alley is a passage, a reception as well as a point of distribution for the program – it is a real public space as it articulates all program elements.

The concert hall takes places on one side, whereas the music school is situated on the ground floor of the other one. The path volumes are made of metallic colour anodized pannels.

They are also perforated and thus are being an acoustique baffle as to protect from the noise. As for the facades, the studio is playing with reflexion and transparency effects allowing a glimpse of the inside activities.

The architects designed them as a 90cm spaced out 'curtain wall' altering glass and mirrors. This duality associates program and urban environment, music and nature. The accent in the interior spaces is placed on functionality and solidity. Wood and raw steel are privileged for their environmental traceability.


































