New Photographs Released For Richard Meier's Smith House Celebrating Its 50th Anniversary

New photographs have been released for Richard Meier's Smith House built in 1967 in Darien, Connecticut, marking the 50th anniversary of the completion of this iconic house in this special rocky site.
Captured by architectural photographer Mike Schwartz, the new set of images show the elegant details and pure volumetric relationships of the house proving that how the house adapted to its own location for years with its much more refinement, sculptural and partly hidden architectural body.

The iconic Smith House is conceived one of earliest architectural projects of American architect Richard Meier, whose house also propelled his career as an architect and helped to define the architectural language and the design philosophy of Richard Meier & Partners Architects.
The three-storey Smith House, built amidst the rocks and trees of a one-and-a-half-acre site, overlooks Long Island Sound from the Connecticut coast. A dense cluster of evergreens stands at the entrance to the property. Behind, the land clears and rises to the center of the site, then drops sharply to the rocky shoreline and a small, sandy cove.

The spatial organization of this house hinges on a programmatic separation between public and private areas. The private side of the house is at the entrance facing land, woods, and road. A series of closed, cellular spaces, these private areas are organized through three levels behind an opaque facade, which is intermittently pierced with windows.

“I was working out of one room of a two-room apartment shortly after leaving the office of Marcel Breuer. One day I had a call from Carole Smith asking if I would be interested in designing a weekend house for her in Darien, Connecticut. She was looking for a young architect who would give full attention to her house," said Richard Meier.
"Soon thereafter, I went to look at the site she had purchased with her husband. They showed me a set of drawings for an unbuilt ranch-style house that had been designed for the previous landowner. It was immediately clear to me that a one-story house with a spread-out plan was the most expensive type to build on this site because blasting the rock for the foundations would be a massive undertaking."
"It was obvious that a smaller footprint that extended vertically instead of horizontally would be both more cost-effective and more interesting spatially, given the rocky, coastal landscape. This was the beginning of the design process," Meier added.

The public spaces, where the family meets and entertains, are to the rear of the house, overlooking the water. This public sector consists of three levels nestled within a three-sided glass enclosure; from the outside, the ground and upper levels appear as solid slabs held fast in the white mullions of the glass shell.

The dramatic view of sea and sky that greets one upon entering is framed and intensified in the transparent skin of the rear facade. Placed directly opposite the entry, a painted brick fireplace pushes to the outside through the tight frame of mullions.
Suspended between the chimney and the steel structural columns, the glazed wall creates a subtle tension that draws the occupant across the living space to the outside. The balustrades of the lower and upper levels are set back from the glass, amplifying that tension.

“I can't believe it's been 50 years since I first experienced the Smith House. I was only 5 years old then, but the childlike wonder I felt then come back to me every time I walk up the ramp, inside the door, and feel Richard Meier's design. The view is always amazing but it's the architecture that turns it into art. Maybe I'm biased, but I think it's a near perfect work of art and my goal is to preserve it forever and hopefully share it with all someday," said Chuck Smith.

As a camera records the moment of an event, the experience of changing light and weather activates the crisp surfaces of the house, while the clear glazing gathers subtle reflections of the interior across its surface. The natural and the man-made exist as separate, elemental experiences, yet it is impossible to separate one from the other.

“Houses occupy a unique place in architecture. They are the most fundamental type of shelter we design. And both professionals and the public are continually fascinated by new concepts for the home. Houses, unlike other building forms, truly take on a life of their own. They exert a powerful influence over architecture that is culturally a response and, historically, has been its main instrument for change," added Richard Meier.
“In the Smith House, as in every house that we design there is a search for clarity and for a basic geometric form. This geometry helps to create certain areas of compression, energizing tensions between openness and closure, between solid and void, between opacity and transparency. The intention in every building is rendered graphic by this geometric ordering of pace developed in a way that is always related to scale, to human scale and to the struggle to make the wholeness of the architecture clear, lucid, lyrical, and real."
“I am extremely fortunate to have worked with Carole and Fred Smith on their residence, and we are very grateful for all the continuous care and supervision given by Chuck Smith," he explained.

The Smith House revolutionized residential design in the United States and around the world, and it has been distinguished with the Twenty-five Year Award conferred by the American Institute of Architects.
The award is only given to a building that has stood the test of time for 25-35 years and continues to set standards of excellence for its architectural design and significance.

Site plan

Lower level plan

Middle level plan

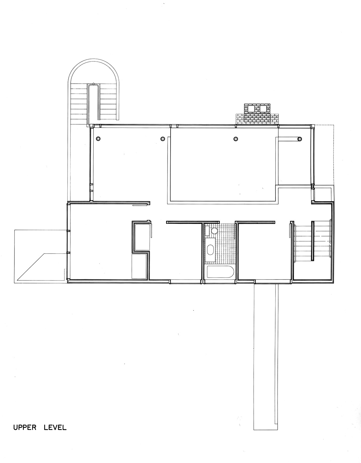
Upper Level Plan

Northwest Elevation

Southeast Elevation

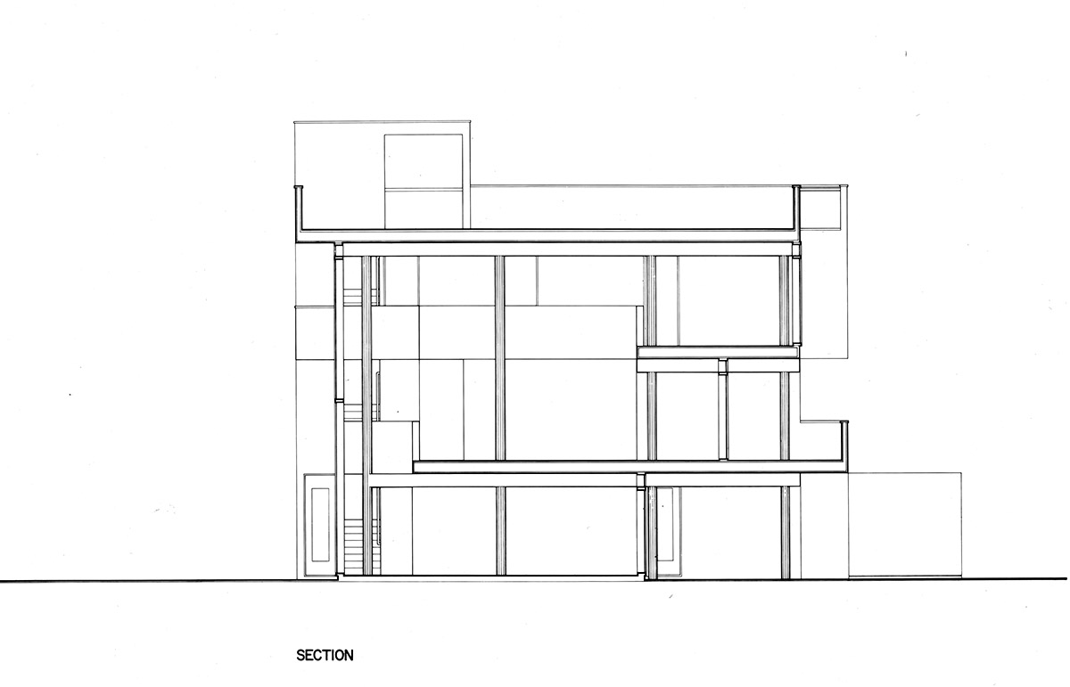
Section-1

Section-2
Project facts
Major Building Materials: Gypsum, wood, oak strip flooring, redwood (exterior)
Floors: 3
Site Area: 3251.6 s.m. (35,000 SFT)
Floor Area: 464.5 s.m. (5,000 SFT)
Publication Drawings: Courtesy Richard Meier & Partners Architects
All images © Mike Schwartz
