Nature is always in the next in the living.
The richness of nature stimulates persons sense, and brings a lot of pleasure.
We will be able to obtain energies and a relief manning original by being in the average of nature.

There is four seasons in Japan.

Spring when flower is in full bloom, and fresh green energies overflow.

Summer when strong sunshine and shower fall.

Autumn of food of harvest and harvest.

Winter when snow wraps town, and expectations to new season rise.

Various expressions are shown to us in all seasons.

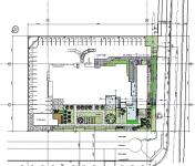
This site is adjacent to the Osaka bay.
There is a mountain range for the east, and it is located in a natural, rich environment that can be looked about the sea for the west.

The building is composed as a complex facility for the senior citizen.
The cafe and the clinic opened also by people in the region are set up at a grand level.

Construction produces the space with a concrete wall construction.
The role to make the scene of the living a division also accompanies ten walls that run parallel postponed from east to west.
And, the scene of a living consecutive as the mass of the joined space is invaded between the walls that run parallel, and the nest is built ties.
The space volume invaded among those projects the expression onto the outside wall.
The facade on the mountain side gives the mountain range that soars on the east side and steepness in the hommage doing and the surface of a mountain has been given to the expression.
The space of the living with individuality is set up in irregularity and a complicated volume.
The facade on the sea side tells the expression of the repeated wave to the outside wall.
An open mouth that cut it into ten walls is a design that takes the spectacle and the natural light adjoined while securing privacy with the tenant of standing next internally as much as possible.

The consideration that can be faced various nature seen in the place place is performed to the space.
Nature that the living is soon in by the side is extracted, and beginning of the extent felt pure directly.

Then, the people who live will find his favorite whereabouts between the building and nature.
It is enriched while drawing close naturally on immediately side and it is spent.

2010

2010

Concrete wall type structure
5 Floors
Condominium with nursing/cafe/clinic

/

Takumi Ota

Favorited 1 times