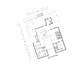
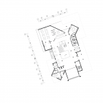
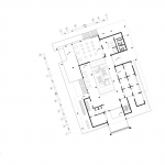
Project Brief : "This project represents a diverse collection that encompasses both cultural and service-oriented works. It is important to note that while it cannot be entirely categorized under cultural initiatives, the unique circumstances surrounding this endeavor have led to the conclusion that the most effective approach is to develop a multi-purpose project. The chosen location for this initiative is strategically situated between two residential areas and the well-known Laleh Park. Therefore, it is crucial to design the project in a manner that not only preserves the integrity of the park but also enhances its surroundings. Additionally, the design should prioritize providing excellent visibility and creating inviting spaces that encourage relaxation and enjoyment for all visitors. By carefully considering these aspects, the project aims to harmoniously blend with its environment while serving the community's diverse needs.
"

Concept: "Beliefs play a significant role in shaping our perception of the world around us, ultimately influencing the very space we inhabit and experience daily. The concept of “So close, so far” serves as a reminder to cultivate a deeper appreciation for the resources and experiences we currently possess. In this context, it becomes essential to design a space that thoughtfully considers various factors such as its location, the anticipated crowd, and the potential impact on the nearby park. This careful consideration is crucial in order to create an environment that allows individuals to move freely, stay comfortably, and observe their surroundings while enjoying the beauty of nature. The design should facilitate a harmonious interaction between people and the natural elements present. The key elements that must be taken into account include the place itself, the people who will use the space, and the time they spend there. By focusing on these fundamental aspects, we can create a space that enhances our connection to both the environment and each other."

2022

-

-

/

Shahab Shariat Bahadori