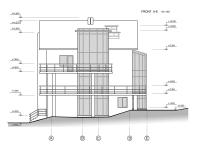
The project is a single family house developed on four levels (basement + ground + firts floor + second floor) and garret. The shape of the building has been a constant dialogue with the given space, context and the plan. The site has been used to create privacy and to provide natural light to all spaces. Architectural image has a lot of stained glass and light , associated with massive concrete plane. Exterior glass is float glass, interior glass is low-E glass, with self-cleaning and bactericidal features.

2010

2011

/