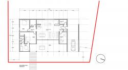
Seahouse is located on the 50 hectare property surrounded by the Swedish forests and Gulf of Bothnia.The house was design it way to allow the perception of amazing sea view from each space – living room, kitchen, bedroom, bathroom, working room and even car parking space.It is located in the specyfic sunlight conditions, that’s why there is top level west window of the antresol, that gives the sunlight filtered throught the forest to the living space on the groundfloor level. Open space terrace and car parking are protected against the strong wind by glazed sliding screens.Pure arrangement of the rooms divide the house to the functional zones – open/living zone, sleeping and working / technical zone. All of them are widely open to the sea.The investor decided to build this house just after the Dagmar Storm hits Scandinavia. The construction structure based on wood, will take advantage of the destroyed trees by the storm.

2012

Project: BXBstudio Boguslaw Barnas
Visualisations & Graphics: BXBstudio Boguslaw Barnas
Location: Sweden, Tyndero
Date: 2012
Total area: 167 sqm
Client: Privat

/

Boguslaw Barnas