Der Entwurf fügt sich in einen Kontext ein, der von absoluten Meisterwerken der Architektur geprägt ist, die nichtsdestotrotz das Erscheinungsbild der Stadt fragmentarisch wirken lassen.
Der Ansatz ist gewollt schlicht und tritt nicht mit den anderen großen Bauten – in erster Linie der Nationalgalerie Mies van der Rohes oder der Philharmonie von Hans Scharoun - in Wettstreit, sondern versucht vielmehr, sich in den Kontext einzufügen, indem visuelle und räumliche Beziehungen zum Ganzen geschaffen werden.
Der Entwurf gründet auf der Vision. Eine visuelle Achse, die zwischen der Nationalgalerie und der Philharmonie verläuft, nimmt die Gestalt einer „großen Furche“ an, die sich in die einheitliche, schnörkellose Masse des Gebäudes gräbt.
Dieser geometrische Stauraum, der die große Ausstellung des Museums im Freien beherbergt, befindet sich auf derselben Höhe wie das Podium der Nationalgalerie und richtet sich visuell und gleichzeitig auf die beiden Bauten aus, die sich mit Abstand gegenüberstehen.
So entsteht eine physische und visuelle urbane Kontinuität mit den genannten Gebäuden und damit auch mit den Werken, die dort zu sehen sein werden.
Dieser magische Raum ist nicht nur Museumsgebäude, sondern bei Bedarf über den großen Treppenaufgang auch direkt von der Stadt aus zugänglich.
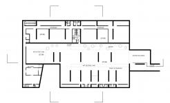
Im Querschnitt weist der Bau im Innern eine kontinuierliche Räumlichkeit auf, die sich um den großen, ungewöhnlichen Ausstellungsraum im Freien, die „große Furche“, schmiegt.
Räume über die Gesamthöhe kennzeichnen die Ausstellungsfunktionen, während nebensächlichere Funktionen in architektonischen Elementen wie den ausgehöhlten Mauern untergebracht sind.
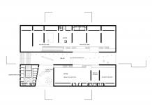
Zur Potsdamer Straße hin, also zum Stadtverkehr, zeigt sich das Museum abgeschottet.
Der tief eingegrabene Haupteingang stellt eine Subtraktion dar, die an der Fassade ausgeführt wurde.
Im Innern weist das geräumige Foyer auf die komplexe und facettierte Räumlichkeit des Museums mit zahlreichen Durchbrechungen hin, die den Blick in sämtliche Richtungen nach draußen zur Kirche, zum Garten
mit der Platane und dem zweiten Museumseingang freigeben; vom Foyer aus blickt man auch auf die zwei langen Treppen, die den Innenraum charakterisieren und von denen aus man bequem Zugang zu den drei Ausstellungsebenen hat.

2016

/