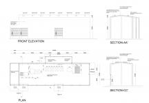
Punjab is an agrarian state having paddy and wheat as its main crops. Due to plenty of these food grains, the central and state governments are pursuing the farmers to diversify their crop pattern and adopt maize as one of the major alternative crop. The maize crop in Punjab is presently facing serious marketing problem due to high percentage of moisture contents. The moisture percentage in the grains at the time of harvesting season is up to 28% but actual requirement of moisture for proper storage and processing is 14% approximately. This results in low price of crop. The sun drying during this period is not practically possible because it coincides with the monsoons; moreover the sun drying is not uniform. To cope with this problem, the Punjab State Agricultural Marketing Board is in the process of establishing number of Maize Dryers in the state. Maize Dryer Centre is to be constructed in hi-tensile, pre-engineered steel structure with powder coated profiled sheets. 40m x12m x 13m high structure has been designed to house large dryer plant manufactured by Suncue Company of Taiwan. Each plant comprises 4 units with a drying capacity of 6 tons per batch. It dries 2.5% to 3% moisture contents per hour. For drying of grains, heat is produced by burning rice husk in a furnace which is attached to units. Using rice husk instead of diesel is more economical, energy saving and environment friendly. To design a large structure for such a plant was a gigantic task for the architect, more so when there was no such prototype available in India. Considering the volume of the building envelope and time constraint, the architect side tracked the options of conventional structures in brick or concrete. Instead he chose to go in for pre-engineered steel building (PEB). The PEB structure has numerous plus points as compared to conventional structures. It is easy to construct, fast to construct, economical and more precise. The time taken for whole structure after foundations was less than two months. The factors taken into account while designing the structure were serviceability, wind pressure and of course structural stability. To design such a large, voluminous building having single span of 12 metre with a height of 13 metre was really a challenging task for the architect and the structural engineer. The success of the project lies in the well coordinated efforts of all the team members. Though the dominant factors for designing such a farm/ industrial building were serviceability and structural stability, yet the architectural aesthetics vis-a-vis proportions and colour scheme were also on the top of the mind of the architect. Since this is one of the first such maize dryers in India the architect wanted it to be an iconic structure of which not only Punjab but the whole of the country should feel proud of.

2015

2014

/