The interior space of Novotel hotel that its main lobby especially has not really impressed with the brand and its location in Saigon. Based on Novotel's 'Time with you' criteria and images of 'trees' are everywhere in Saigon. The image of trees exists everywhere in Saigon such as: Gia Dinh Park, Le Van Tam Park, Tao Dan Park, Thao Cam Vien.

Forming the idea of a modern space but still bringing the breath of nature: not just from the street Saigon, but even after entering the building, 'trees' are still present. Affirmation of an umbrella Saigon Modern but still in harmony with nature. Using a combination of Biomimetic Design and Modern Style. Biomimetic Design (Bio-inspired design) is a design approach based on inspiration, measure, and reproduction of the appearance or nature of a biological object.

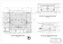
Modern Style is a school of architecture developed during the period from the late 19th century to the early 20th century. Characterized by simple lines, color palettes and the use of materials from finishing to decoration are very diverse. and easy to find. The style is easy to mix & match with other styles to create a luxurious and comfortable space. The idea of ​​false ceiling with embossed triangular aluminum module panels in the shape of leaves with slots for LED lights to create the image of 'light through the foliage shining down'.

The idea of a tree-shaped steel column with branches reaching up to the ceiling (the foliage). And the concept of 'Visual highlight' is a pendant light with leaf modules and an ornamental pond that evokes the image of leaves falling to the water surface in nature.

2021

1. Area: about 130 m2 (11.8m x 11m)
2. Location: 1st floor of the building - overlooking Hai Ba Trung street in the northeast direction
3. Clearance height: 6.3m

Supervised by: BÙI BÁ NGUYÊN KHANH - Senior Lecturer in Interior Architecture & Design
Designed by: NGUYỄN LAM PHƯƠNG

/

Lam Phương Nguyễn

Favorited 2 times