Based on the building’s main form, balconies are deployed on southern façade with access from every unit’s bedroom and living room, resulting in life tradition revival that is use of balconies semi-open space.
The façade is designed based on composition of balconies’ open and semi-open spaces beside solid panels’ pattern.
The goal is to make the user participate in architecture, forming the outer shell of the building, tuning light and shadow, and view, which can be practically achieved through placing a movable panel on the façade and changing an open space to a semi-open or closed space with the pattern-change feature.
Ultimately, the design tries to create visual dynamics and variety through making depth over surface by placing semi-transparent movable panels in contrast with the solid and the transparent panels of the design geometrical framework leading to a volumetric façade which was limited to just one surface.

2017

0000

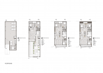
Built area: 1340 m2
It is designed based on BIM.

Lead Architect: Mohammad Ramezani
Design Team: Alireza Fathi, Elham Karimi, Shayan Shafioun, Tannaz Sattar
Render: Armin Radan
Graphic Presentation: Tannaz Sattar
Construction Supervisor: Arash Mozaffari

/