HOUSE IN GIRONELLA
2010
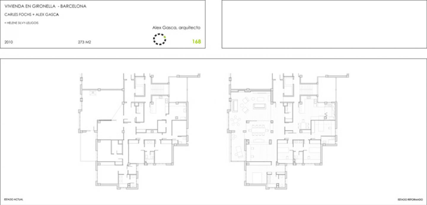
Location: Barcelona Author: Alex Gasca Area: 273m2 Client: Private Date: 2010
CARLES FOCHS