Sebyeol Brewery is located in the suburban area of Paju-si, northwest of Seoul. The very quiet and remote area with the nature-surrounded site can be approached from a narrow single roadway. The client’s request was to design this building to be recognized as a new landmark within the limited budget; therefore, we suggested this place to be the venue for the gathering space to promote people’s activity and designed to reconcile with the surrounding nature. In the earlier stage, all the required spaces were set out to show the procedure, the process of the brewery in the design that included the bulky scale with the rigid rectangular form and the exposed interior.

Reconciliation with nature.

The exterior wall of this simple form of the building is the main transitional element to reflect nature and to house the function of this man-made architecture. For this transition, different textures and the degree of roughness are used and positioned sequentially from outside to inside. Especially, the rough and natural treatment of the exterior wall is composed of organic material with inorganic concrete to perceive reminiscence of nature. The medium textured and chiseled surface of the concrete wall is designed for the inside transitional area, such as the space between the first and second-floor area and the entranceway. The fine smooth blue-dyed concrete is exposed for all interior space to interact with the natural and artificial lighting.

The distinctiveness of the façade design and method of construction was studied, investigated, and tested. This textured exterior wall is composed of three layers: 150-mm insulation is laminated and sandwiched in between 200-mm reinforced dyed-concrete and 280-mm exterior façade casted-concrete. The outer layer of concrete is cast by reusing local pinewood, and the bark was left embedded in the concrete surface for the texture. All of the concrete used was dyed with cobalt-blue pigment to make sure the color dissipates over time. This textured exterior wall was designed to perceive the different ambiance of the daylight to create unique shadows to be projected so that people can observe and experience the time changes of the day. After the sun sets and there’s complete darkness, the light-revealing designed at the bottom edge of the wall (at ground level) illuminates and reflects the wall texture.

Integration of two different scaled space.

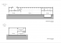
Layout and integration of different scale and function of space within this building are positioned to visually communicate among each program; Glass enveloped double-story height brewery is surrounded three-dimensionally by beer tasting area/pub, exhibition space and office. The brewery plants/manufacturing space with their supporting area and ground floor beer tasting pub are located on the first floor. And the new exhibition space is on the second floor to promote the new beer brand. Also, on the second-floor programs include observing deck, beer tasting area, kitchen, offices, and an open-air courtyard. Exhibiting the overall bear making process can be seen from the first and second-floor beer tasting pub area through the glassed box atrium while tasting a beer. 2nd-floor beer tasting area/pub is located in-between and adjacent to the brewery, the balcony, and the open-air courtyard; therefore, people can eat, drink, and observe at the same time. Open-air courtyard and the deep setback balcony are to please the outdoor nature, as well as to admit natural sunlight into the inner space.

Openings

Facade openings are very minimized by placing the manufacturing space on the north but maximized to admit natural sunlight from the south side where most of the people’s activities occurring. The entryway is led by the deep opening and is relatively small in comparison to the building’s scale. From that deep hole, the blue light that is reflected from blue-dyed concrete illuminates to give a visitor recognition. On the east side of the site, between the building and the parking area, one self-standing cobalt blue exterior wall is designed and built to obstruct the unpleasant scene from inside of the lobby area but to admit the light through the large window. Thus, in this area, people can appreciate three different wall textures.

2019

2019

1) Project Name: Sebyeol(NEFS) Brewery
2) Architecture Firm: YKH Associates, Inc.
3) Office Website: www.ykharch.com
4) Contact Email: [email protected]
5) Completion Year: September 2019
6) Site Area: 5,000 SM
7) Total Built Area: 3,723 SM
8) Project Location: Paju, Gyeonggi Do, Korea

Design Team: Jaeho Shin, Heewon Kim, Dongjae Kim, Songhyun Cho, Youngmuk Bak, Jaemin Kim, Motbi Choi, Chaewan Kim

Construction: Dosi Construction (http://ca21.in)9)
Photographer: Dongwook Jung (www.timeofblue.com)

/

Dongwook Jung