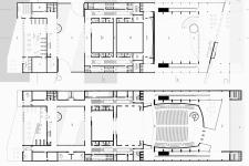
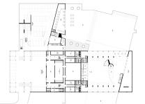
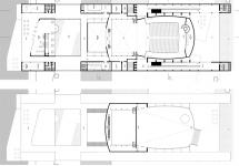
The project for the city theatre is integrated in a major urban plan for the (re)design of the riverside of Algés (Lisbon, Portugal). The theatre works as a cultural centre, and introduces a new dynamic to the site. It includes a gallery for expositions, cafeteria, restaurant, outdoor cinema on the terrace, library, and an open and fluid relationship with public space which offers an extention of the scenic space to the outdoors.

2009

2009

/

Ana Lopes

Favorited 2 times