OPTICIANS SHOP. PRADO DEL REY, CÁDIZ.
We had a premise (An existing space) where to put the new opticians shop. The idea was how to create a space inside an existing one, how to modify the things that you are not interested in and how to use the ones you want. Here I started thinking in the way that Hans Hemmert do; if you blow up or inflate a balloon inside an existing space, it will go next to the limits that the existing walls are, and then appear a new space using several references from the space we had before; then we get a different space generated from singular elements of the existing premise.

The new space is the sum up of including new elements and remembering the space we had before. So this new space appears as a contextual result.

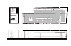
The program is organized in three parts; the first one is the main space, the shopping space. This one is the biggest, and regular in its forms looking to the street. The second one is the workshop; there is a glass wall between this and the main one; this is a space with an L form plan and a lower height. The third kind of space is the backstage.

From the outside you can see the main stage formed by the shop and the workshop; this is the SHOWCASE of this shop.

When somebody is walking along the street outside can feel how the wide of this street increase a lot; this sensation make the people attend to the experience of passing through different spaces, it becomes a phenomenological experience of the spaces we have created for this opticians shop.

2006

2007

/