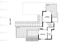
House for a family 2 +2. The client wanted to separate, space for a family of space for guests. In my idea is to be separate entrance overlooking the pool and the sea. The client required on the first floor a large, spacious veranda overlooking the sea. On the first floor had to find a place for the office

2009

/

Favorited 2 times