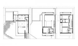
single house constructed in a typical narrow portuguese lot - 7.5x20m.
The concept for the building is based on the movement of a single line that on its way enclosures spaces giving them character. Small black boxes - bathrooms - like the russian matrioskas, help the line in the definition of the smaller spaces.
The line is detached from its neighbor trough glass facades and roof - vertical access - bringing light to the buildings interior.

2005

2008

/

metroquadrado®