Submitted by WA Contents
Bayuquan Poly Theatre
United Kingdom Architecture News - Jun 20, 2014 - 18:16 7268 views

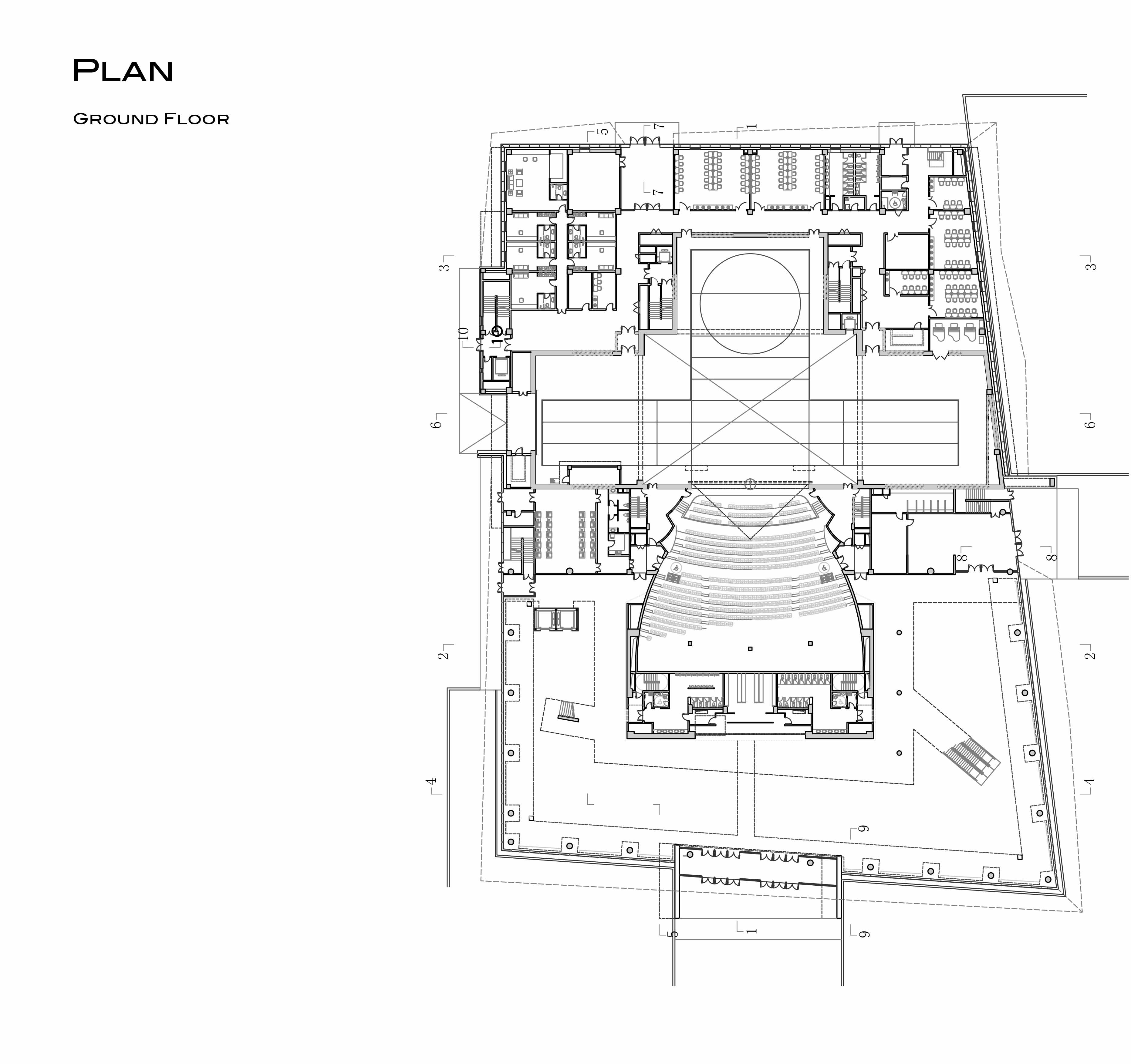
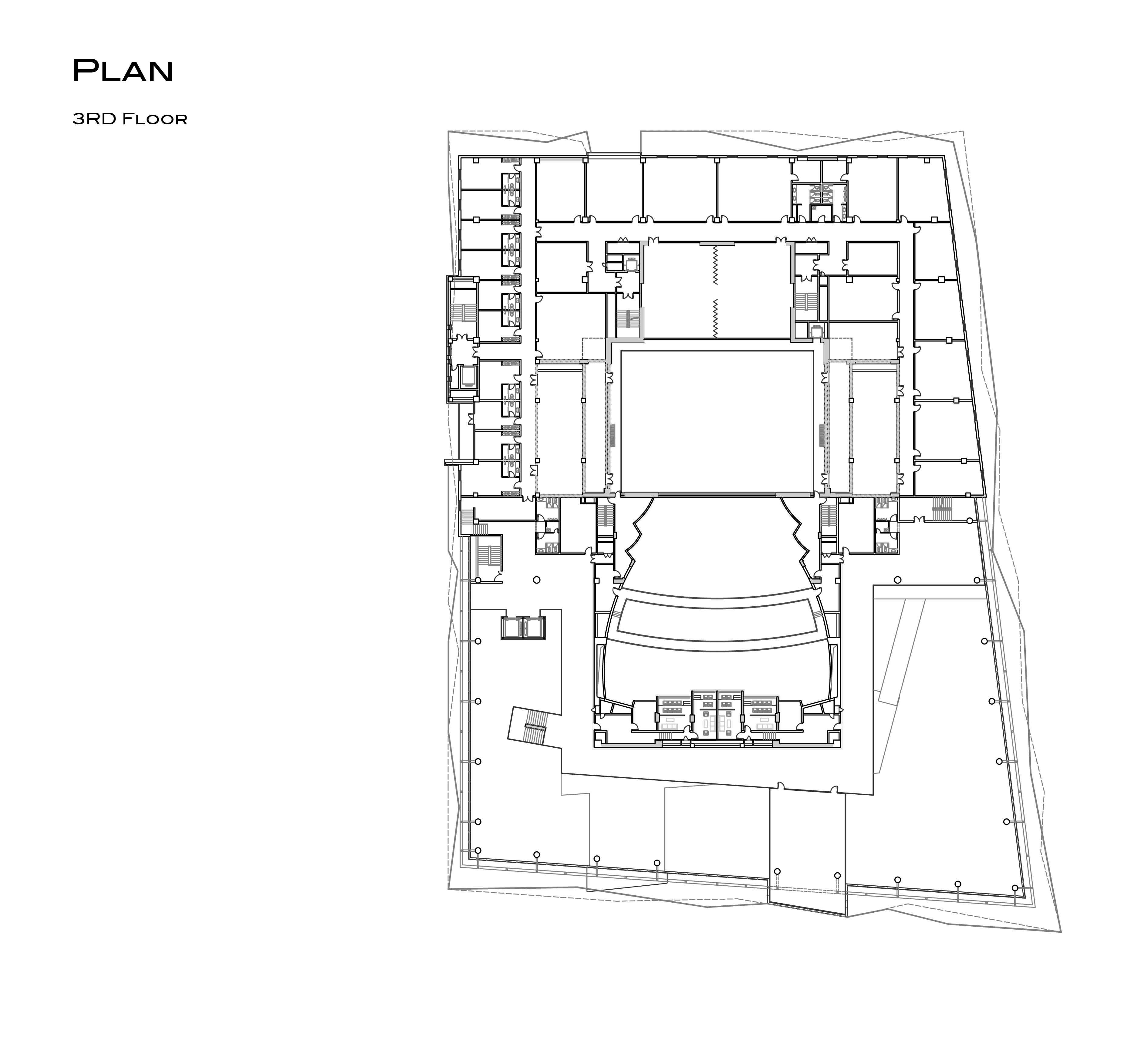
Bayuquan Poly Theatre has 3 levels above the ground level. The main construction contains a large Dance Theatre which is specific for dancing and musical performaces with a capacity of 1600 people and a multi-functional theatre which can hold 800 people for drama play.

The dome of the main Dance Theatre was designed for both structural purpose and a special function. The steel-frame dome can be rotated, opened and closed to meet different performance requirements.

The interior U-shape plan adopts the form of roman traditional theatre and the space is separated into 3 levels vertically. Sight analysis was carried out to allocate the seats in the theatre. To ensure best acoustic performance, the main source will be natural and each seat for audience takes up 7.7 m³(the total volume is 12300 m³). The reverberation time could be adjusted due to different performance requirements.














All Images © Dushe
Project Facts
Location:Bayuquan, Yingkou,
Function:Theatre
Site area:70,000?
Building area:30,000?
Stories :Theatre:5
Structure (materials):Reinforced Concrete and steel frame
Finish:(exterior & interior)
Theatre:Exterior: aluminum perforated plates, glass and Trespa Meteon
Interior:Trespa Meteon, stone and plaster
Photographer:Qihua Liu, Kege Ling
Completed date:1st, May, 2012
Design participation:
Interior Design:Theatre: Kege Ling, Jianguo Wang and Ye Zhang
Library:Ye Zhang
Landscape Design:Hui Liu
Structural engineer:Linghui Zhu
Constructional engineer:Qi Xu
Supervision:Kege Ling
Designed by SH-DSD
Architect:Kege Ling, Qi Xu
Assisted by Yin Qin, Ding Wu and Long Chen from Shanghai Zhongsen Architecture Design
Interior Design:DSD, China Architecture Design & Research Group, Tsinghua Gongmei
Interior Designer:Jianguo Wang, Ye Zhang
Acoustic Design:China IPPR International Engineering Corporation
Stage Facility:China PLA General Armament Department
> via shdsd.cn
