Submitted by WA Contents
COAS Offices And Headquarters In Loiu, Vizcaya
United Kingdom Architecture News - Jun 01, 2014 - 11:23 4258 views

The location of the proposed new building is set in response to the combination of clear criteria of availability of space with powerful reasons of ease of use, based on the experience of the life of the school.

The fundamental design decisions are deducted in effect, in general, a number of criteria securely fastened in the minds of the property, from their experience. And this experience is nothing other than that which you have provided years of the College and its various buildings and facilities. Such criteria have decided to check the location of this new construction, according to their functional efficacy in terms of use of the land, organizational coherence, order, and optimizing the circulation, spatial sequence, and above all the desire of minimizing interference from the new building to the daily operation of the existing complex built of the school has played a special role.

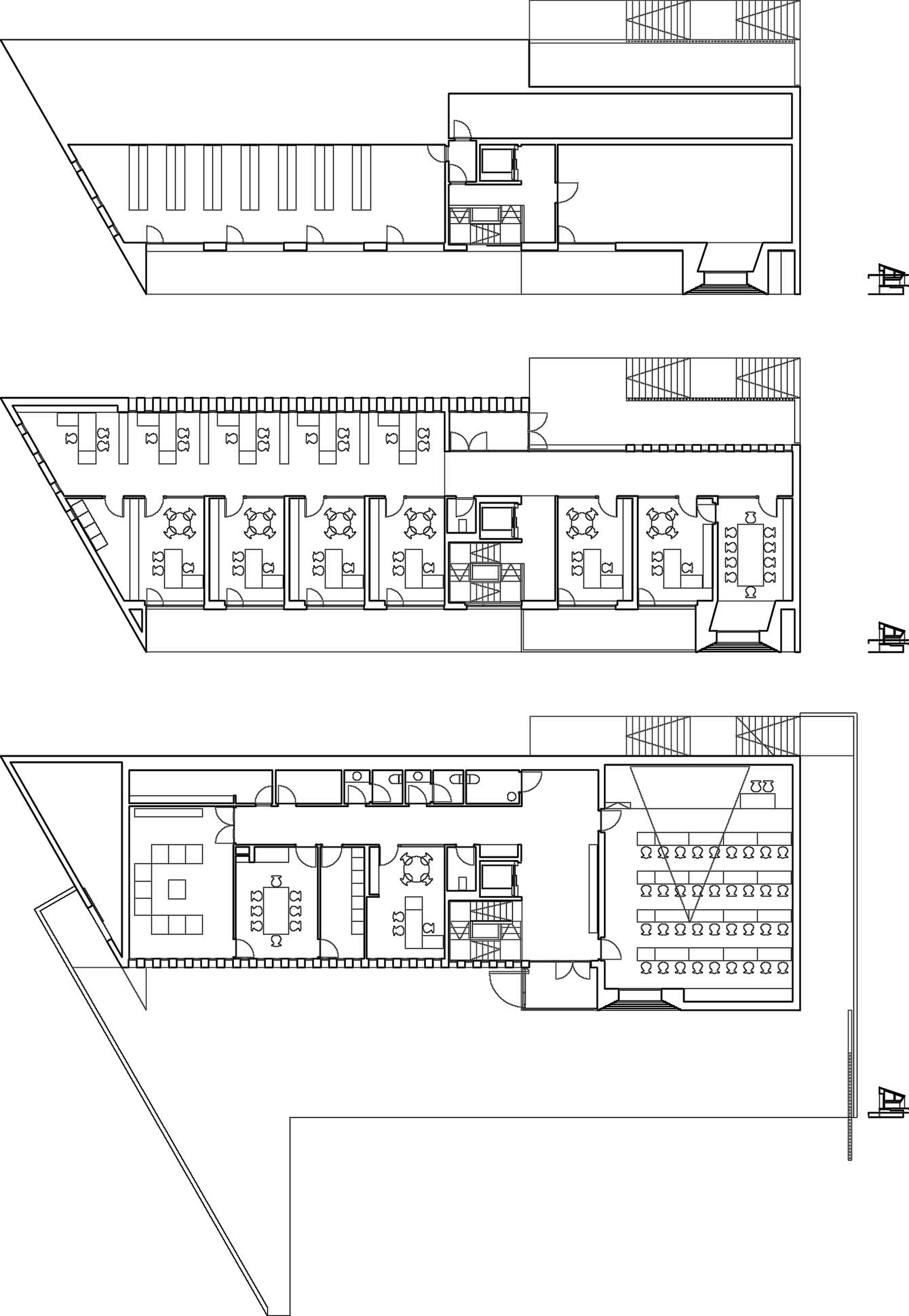
The building is in any case a volume of small size in a plant, and it is intended to permanently locate the administrative services of the College, relatively autonomous with respect to the ordinary day-to-day development of the educational activities. The program includes a number of offices with general files associated with systematic processing and centralization of information, and a reception area for parents that includes both your individual attention as organizing some informative collective activities aimed at small groups.

The resulting volume is placed to one side of the existing parking lot, against the slope that delimits it. The building presents two accesses on both floors, according to the indications of the property, eager to differentiate between access visits and regular access to the area of ??administrative work.

The building takes the shape with reference to the pre-existing buildings of the College: a brick and concrete building with sloping tiled roof. A single slope cover is designed due to the reduced width of the bay, so that a low-cover capable of being partially tapped as store is obtained.

The architectural treatment of the new construction can not be seen or treated as a mere abstract action in rural areas, for construction isolated in the middle of a green landscape, but rather as an intervention in a school zone specifically affecting the total constructed - relatively complex and extensive - of an existing school.

It is considered, in order that the arguments in the previous section regarding the necessary architectural treatment of new construction lead to a prudent, balanced solution marked by a sensitivity to environmental conditions, in fact, the landscape impact of the construction could not be more moderate.







situation plan

floor plans

sections

elevations
All Images © Otxotorena Arquitectos
Project Facts
Location:Loiu, Bilbao, SPAIN
Architect and construction management:Juan M. Otxotorena
Collaborator architect:Lander Berasategui
Quantity surveyor:Isabelino Río
Structure engineering:Alvaro Alberdi
Client:ICASA
Site area:29.160 m²
Building area:875,00 m2
Completed date:April 2013
Photographer:Rubén Pérez Bescós
