Submitted by WA Contents
Zigzagged-profiled school featuring trapezoidal legs evokes traditional Tartan fabric in Terlano
Italy Architecture News - Feb 13, 2024 - 11:47 2313 views

Italian architecture practice MoDusArchitects has completed a new school that features trapezoidal legs and evokes traditional patterns of Tartan fabric in Terlano, Province of Bolzano, South Tyrol, Italy.
Named Tartan School, the 2,567-square-metre building is an extension of an existing school located on the outskirts of Terlano's town centre, nestled in the Adige Valley between the South Tyrolean cities of Bolzano and Merano.

MoDusArchitects was responsible for the renovation and intervention to an existing school.
The original school was an unwieldy 1990s U-shaped structure that had been modified in the early 2000s and that, like many small-town schools, combined a number of different programs into one.
Despite the increasing population in the area, the district of Terlano chose to preserve the existing structure while deciding to expand the school and adding to the existing structure.

"Like many small townships lining the alpine valleys of South Tyrol, Terlano’s expanding center pushes up against the surrounding vineyards and apple orchards which is where, at this edge, that the school finds itself," said MoDusArchitects.
"This adjacency to both town and field is registered by the schools formal and chromatic strategies, all of which is set against a larger landscape of the traditional alpine fare of reference points and vistas: the historical church tower to the south, the steep mountainside to the north not to mention the medieval profiles of the Neuhaus Castle looking west," the studio added.

Adopting a resource economy approach, the office proposed a scheme in which three different educational programs of the Nursery School, the Kindergarten and the Youth Center could share fewer but more generous common areas between them.
The studio also defined new needs that could make them available to larger communities.

"The school derives its name from the plaster facade of the building, which emulates the patterning of tartan fabric — a textile that conveys a feeling of warmth and familiarity," said Sandy Attia, co-founder of MoDusArchitects together with Matteo Scagnol.
The development consists of two buildings - existing and new - negotiate the site’s 4 meter north-south change in grade.
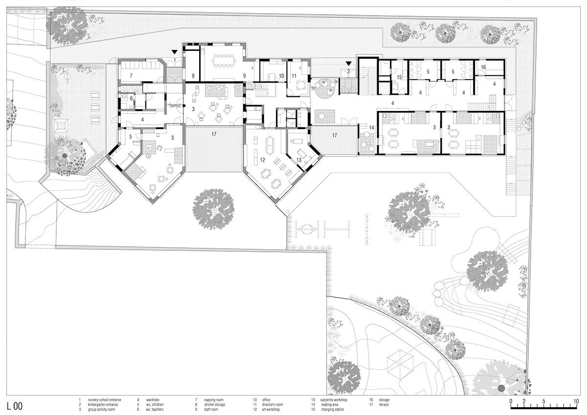
The buildings have two separate entrances to the Nursery School and the Kindergarten, which are located on the upper ground floor level along the North edge of the property.

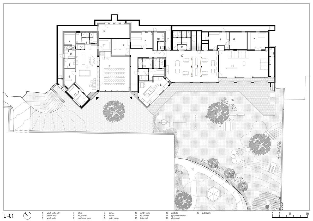
On the other hand, entrance to the Youth Center is located on the South-facing side of the building on the lower ground floor level.
The Nursery School, accommodating between ages 0-3, occupies the upper ground floor level of the existing building while the Youth Center’s position remains unchanged at the lower ground floor level of the existing building.

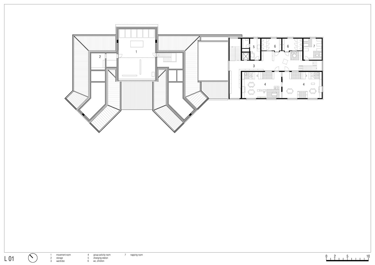
The new wing houses the various functions such as group activity rooms, napping room, reading area of the 4-classroom Kindergarten for 100 children, between ages 3-6. In addition, the dining hall and movement room / gym are located at the lower ground floor level in relationship to the outdoor playground.
The studio created a communal floor in the lower level dedicated to the three programs so that the small 50-person auditorium, the dining hall, and the gym form a series of distinct rooms that can become part of the public domain for events, school recitals, community meetings.

"Although connected in plan and section, our addition necessarily works as an adjacent, semantically separate piece to the clumsy profiles of the existing school; the truncated, zigzagging volume on trapezoidal legs is like a new neighbor that wedges itself between the old school building and the large, winery next door," said the office.
For the outer appearance, the studio used historical references and components from the area.

The school building have rough surfaces of the plaster facades that are embossed with a two-tone green tartan pattern. The pattern also works in tandem with the large windows that gently bob across the south facade on cue with the angled rooflines.
"With the inset windows at the lower ground floor level, the trapezoidal wall cutouts become columnar supports framing a loggia that mediates the pivotal indoor-outdoor movement between lunchtime and playtime," the office added.

"The schoolyard is contiguous to the town’s public playground in the continuing efforts to bolster synergies, making the most out of finite resources," the office explained.
The interiors weave together the disparate spaces of the existing structure and the new addition through a curated selection of robust materials and surface treatments.

Distinguished by the brick-red resin flooring, the design of the MDF, custom-built furniture creates a palette of warm tones for the wardrobes and the built-in reading and activity nooks found for example in the Kindergarten’s common areas.
Ceiling mounted acoustic panels punctuated by wooden profiles provide a soundscape able to absorb the noise levels of the children as they move around the school freely in their conquest of space.

As the studio explained, Tartan School is a certified “ClimateHouse A” building; the windows, wall and roof insulation of the existing school were replaced to improve the thermal efficiency of the building envelope.
"In this way, the two structures had similar energy performance characteristics, thereby affording more flexibility in the connections between the two structures," the office said.

Tartan School is part of MoDusArchitects' decades-long work in educational spaces, with an archive of more than twenty projects in the field, be it completed buildings, projects in the works, competition proposals or publications on the subject.
With an interdisciplinary approach, their work delves into the reciprocal relationship between learning and learning environments, examining how the fields of pedagogy and architecture can fuel unexpected solutions to the time-honored program of the school building.














Site plan

Axonometric drawing

Basement floor plan

Ground floor plan

First floor plan

Section AA

Section BB

Elevation
MoDusArchitects completed Fieldhouse, a replacement of an old building with a new sports facility in Bozen, Italy. The firm also revived the Novacella Abbey Museum complex with artistic interventions in Vahrn, Bolzano, Italy.
Project facts
Project name: Tartan School
Architects: MoDusArchitects
Location: Terlano, Province of Bolzano, South Tyrol, Italy
Project team: Sandy Attia, Matteo Scagnol, Laura Spezzoni, Lavinia Antichi
Client: Municipality of Terlano
Construction Phase: 2021—2023
Addition + Existing (GFA): 2,567m2
Playground: 960m2
Structural Engineering: Planteam – Günther Zöggeler
Mechanical Engineering: Energytech – Norbert Klammsteiner
Electrical Engineering: Roland Thaler
Safety Engineering: 3M Engineering Srl
Contractor: Unionbau SpA
All images © Marco Cappelletti.
All drawings © MoDusArchitects.
> via MoDusArchitects
