Submitted by WA Contents
Spacemen created retail store that references sand dunes in Kuala Lumpur
Malaysia Architecture News - Sep 13, 2024 - 12:39 2334 views

Shanghai and Kuala Lumpur-based architecture practice Spacemen has created a retail store & spa that references sand dunes and the tranquil allure of an oasis in Kuala Lumpur, Malaysia.
Named Trove, Desert Sanctuary, the 160-square-metre space is drawing heavily from the flowing shapes of sand dunes and the calming charm of an oasis.
The design embodies the tranquil beauty of the desert landscape, according to Spacemen.

The most recent version of Trove, called the "Haven Spa," is a desert haven that provides visitors with a comprehensive program of self-healing and renewal.
Soft, enveloping surroundings that evoke the peaceful vastness of the desert are created by the ceiling's rippling texture, which imitates the organic contours of wind-sculpted dunes.

The warm, earthy colors that permeate the room contrast with these organic, flowing surfaces, creating a cozy, grounded atmosphere evocative of endless sandscapes.
The striking use of blue colors, which represents the life-giving presence of an oasis within this desert-inspired retreat, is central to the spa's concept.

In contrast to the surrounding sandy tones, the layered, water-like forms on the surfaces evoke the tranquil ripples of a desert pool. In addition to enhancing the space's visual depth, this juxtaposition symbolizes the peaceful coexistence of water and desert—a tranquil oasis amidst the endless dunes.

An interpretation of the traditional Bedouin tents, the corridors draped in rich, deep blue fabrics create a winding, almost enigmatic path of veiled entrances leading to the spa treatment rooms, evoking a sense of intimacy and seclusion deeply ingrained in desert culture.
The spa is successful in establishing a serene haven where the restorative properties of water are skillfully blended with the stark minimalism and simplicity of the desert.

This area welcomes guests to enjoy a harmonious fusion of natural elements, providing a serene haven inspired by the enduring beauty of the desert landscape and intended to revitalize the body and mind.







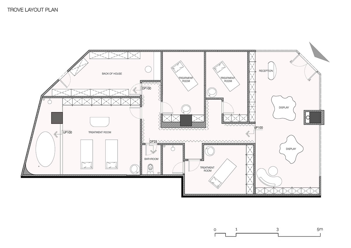
Layout plan
Spacemen created a restaurant that references to "primordial community cooking" in Kuala Lumpur, Malaysia. The firm also created a store with cavernous interior with rounded lines for a store in Kuala Lumpur.
Project facts
Project name: Trove, Desert Sanctuary
Client: Trovelux Sdn Bhd.
Architect’s Firm: Spacemen
Lead Architects: Edward Tan
Team: Chui Wei Tan, Efron Chen, Moses Lu, Eleven Tan
Project location: Lot S118 & S119, Level 2, Bangsar Shopping Centre, Lot S118 & S119, Level 2 , Bangsar, Kuala Lumpur, Wilayah Persekutuan Kuala Lumpur
Completion Year: 2024
Type of project: Retail Store & Spa
Gross Built Area (square meters): 160m2
All images © David Yeow Photography.
All drawing © Spacemen.
> via Spacemen
