Submitted by WA Contents
The morgue is designed with a horizontal line that aligns with the large flat roof in Argentina
Argentina Architecture News - May 15, 2025 - 14:46 5540 views

The Office of the Architects of the Judicial Branch of Santa Fe has completed a morgue designed with a horizontal line that aligns with the large flat roof in Vera, Province of Santa Fe, Argentina.
Under a commodatum agreement with the Provincial Government, the Judicial Morgue of the Judiciary of Santa Fe is situated on a portion of the Regional Hospital premises in the city of Vera.

Named Judicial Morgue for the City of Vera, given the particular location and how the general public views this kind of architectural program, the intervention's main goal was to create a modern area that invites approach rather than rejection—or even one that people using the building's adjacent services might not notice.

For this reason, the building is discreetly hidden behind reachable embankments covered with natural vegetation, leaving the viewer with only a horizontal line that is in line with the large flat roof that encloses the reception area, office spaces, the actual morgue, and the perimeter of the intermediate galleries. Rooms facing the back of the concrete embankment or adjacent plots are prioritized from the inside.

Even though the main structure is surrounded by the embankments, the building was positioned to be visible in its entirety from nearly every aspect due to the lot's proportions. Its conserved native forest, which is included into the concept, produces diverse experiences when walked about at ground level, through the pedestrian entry, or via the car access road.

The deliberate image of the "fifth façade"—an abstraction made up of the entire roof structure, the vertical boundary along the street, the infrastructure areas, the vehicle access road, the perimeter lines of the embankments and pedestrian access—is given special attention.

Wind, shadow, rain, sun, and vegetation all become protagonists, meticulously incorporated into the architectural concept, as environmental and climatic aspects were carefully studied in the creation of this unique program.
The structure is arranged around galleries, which act as areas of transition between the outside and the inside and, more importantly, as sun control systems, which help to lessen the harsh environment of the area. Among other things, a Venturi tube at the pedestrian entrance circulates air to chill the inside and splits to cool the outside walls.

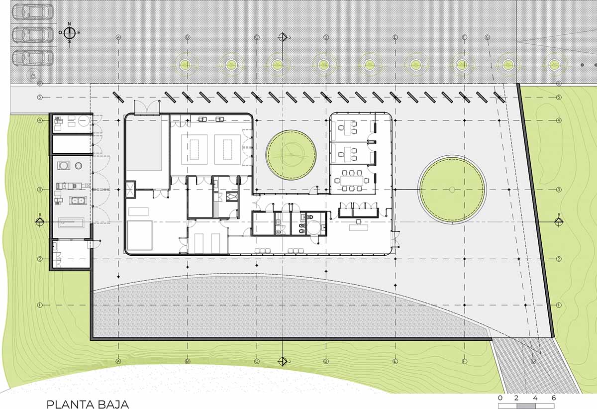
Administrative offices, conference rooms, identification rooms, cold storage rooms, X-ray and picture interpretation rooms, inclusive locker rooms, autopsy rooms, loading/unloading garages, pathological waste storage, and a main hall and reception area are all part of the functional plan.

An infrastructure equipment cluster that houses air conditioning condensers, refrigeration units, a chiller, a hydropneumatic tank, a generator, and an external guard room are examples of supporting spaces.
These are surrounded by an exposed shell of reinforced concrete walls and roof and are situated outside the huge metal roof.

The courtyard, the pedestrian entrance, and the encircling galleries are notable semi-covered areas. They all have enormous circular open skylights that let in rainwater or filtered sunlight, making the room feel cozy and inviting for both professionals and guests. A semicircular bench serves as a reflective seating space beneath the skylights.

Similar to how the building is visually protected from the exterior by concrete embankments covered in vegetation and purposefully placed pedestrian openings away from the hospital, the interior is similarly protected by intermediate areas that are intended to lessen the proximity and animosity of the reinforced concrete envelope to the south.
This is accomplished by paving a courtyard with loose river stones of various colors, which lessens the impression on the eye and permits future plants to grow in between the stones.

The building's partially covered sections face the designated vehicle access road to the north, and vertical screens act as a physical barrier in front of the urban street's protected row of native trees that border the entrance.
Using metal structures, sheet metal, circular-section tubes, and a reinforced concrete planter, the physical boundary between the lot and the street was given special design consideration. This creates an expressive, organic line that opens up urban sightlines and draws attention to the main gate and institutional signage.

The autopsy room and its auxiliary spaces are the heart of a morgue, thus biosafety regulations and the best use of circulation and support rooms were taken into consideration when designing the spaces. To circulate air and safeguard the working staff, the facility has specifically built climate control systems (power capacity and unique filters).
It has a digital X-ray machine, surgical-grade lighting, specialized storage equipment, and two cutting-edge stainless steel autopsy tables made by national suppliers. Filtered natural light is let in through micro-perforated metal panels, softening the space's clinical feel. The main views are of the north inner courtyard.

The building's infrastructure includes a generator for continuous power supply, self-sufficient solar power, a single absorption pit and separate outputs for pre-treating liquid waste that eventually discharges into the sewer system, and connections to municipal water and electricity.
Additionally, it has video surveillance, complete climate control throughout, and intrusion and fire alarm systems. Interlocking permeable pavers and intermediate chambers were used to address drainage and paving issues caused by the lengthy access road that connected the building to the city roadway.

Aluminum window frames, gypsum rock walls, oxidized metal sheets for the galleries' and semi-covered areas' ceilings, flush-joint interior ceilings, exposed reinforced concrete for the external envelope, hermetically sealed double-glazing in specific geometries for the operational spaces, and reinforced concrete partitions covered in perforated and plain metal sheets are among the materials used in the building.
At the site and car entrances, the vehicle access road has unique wood elements, precast stormwater drains, and articulated paving. The structure is decorated with polished 30x30 cm granite mosaic tiles, and the kitchens and bathrooms have custom black Brazilian granite countertops. Whenever feasible, national and local suppliers were used.

All things considered, this project has presented a big challenge for the professionals in our office, but its completion allows us to keep trying new things in the future.
By bringing compassion and respect to a function that is usually disregarded because of its negative implications, it enables us to "reconsider our relationship with the afterlife." In the end, it is a project that offers the balance of beauty and usefulness that is the ultimate aim of architecture by articulating and integrating spaces to make them livable and noticeable.

























Section AA

Section BB

East elevation

West elevation

North elevation

South elevation
Project facts
Project name: Judicial Morgue for the City of Vera
Client: Judicial Branch of the Province of Santa Fe
Architectural Office: Office of the Architects of the Judicial Branch of Santa Fe / (Architect Adelia Sebastián - Architect Carreras Luis - Tech. Gonzalez Javier - Architect Batlle Casas Barbara - Basualdo Gonzalo - Tech. Grippaldi Bruno - Architect Soriano Sebastián)
Architect(s) in charge: Architect Adelia Sebastián
Technical Support: Architect Guillermo Goddio - Architect Ramiro Sosa
Construction Company: Cocyar S.A.
Construction completion year: 2024
Lot area: 5,000 m2
Covered area: 402 m2
Semi-covered area: 980 m2
Project year: 2022
Location: Vera, Province of Santa Fe, Argentina
Program: Institutional (Judicial Morgue)
All images © Ramiro Sosa.
All drawings © Office of the Architects of the Judicial Branch of Santa Fe.
> via Office of the Architects of the Judicial Branch of Santa Fe
