Submitted by WA Contents
Elementary school library features vibrant colors and playful elements, resembling a fairy tale
China Architecture News - Feb 04, 2025 - 15:41 2866 views

The Western Academy of Beijing has partnered with Beijing-based design firm Studio Vapore to update its elementary school library in Beijing, China.
The initiative, named Elementary School Library at The Western Academy of Beijing, reimagines the library as a multipurpose learning environment that supports contemporary educational needs while encouraging creativity and inquiry.

A library designed for exploration
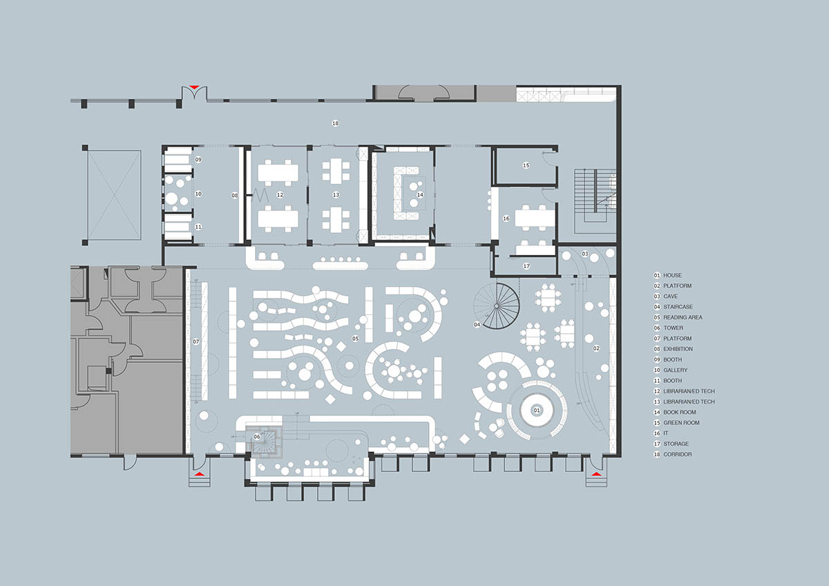
The goal of the remodeling is to make the library a dynamic and interesting space. The design incorporates themed zones delineated by handcrafted platforms of varied heights, drawing inspiration from classic children's stories from around the globe.
These platforms function as quiet study areas, reading corners, and areas for organizing the library's extensive collection of books.

A bamboo forest platform and a village-themed space with a cottage and cave for storytelling and group activities are highlights. The Tibetan-inspired narrative tower, which leads to a student hangout net, is a focal point of the library.

Circular, modular bookshelves enable a variety of configurations that support both solitary study and small group activity. The color scheme of the library, which was inspired by traditional Chinese temples, gives the room coziness and warmth.

Interactive features and thoughtful design
Whispering tubes, periscopes, and hidden crystals are examples of interactive features that offer fun, tactile sensations that stimulate interest and participation.
Acoustic design was implemented throughout the space in collaboration with acoustic engineers, ensuring the library can support multiple activities simultaneously while maintaining a calm learning environment.

A collaborative vision for education
This project demonstrates Studio Vapore's dedication to designing compelling, useful learning environments that meet changing school requirements.
The redesigned library is now a vibrant center where children may discover, grow, and learn in a setting that encourages imagination and creativity.










Axonometric View and Library Story

First floor plan

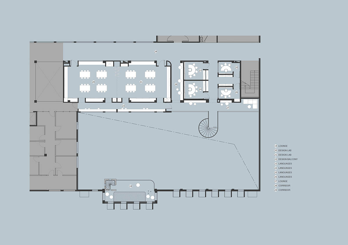
Second floor plan
Studio Vapore is a multidisciplinary design studio based in Beijing, China, specializing in architecture, interiors, and product design.
Founded by Italian Architect Erica Borsa in 2021, the studio integrates storytelling with technical expertise to create thoughtful and imaginative spaces.
Project facts
Project Name: Elementary School Library at The Western Academy of Beijing
Client: Western Academy of Beijing
Location: Beijing, China
Scope: Interior Renovation
Size: 1000m2
Designer: Studio Vapore
Design Director: Erica Borsa
Design Team: Erica Borsa, Tina Tian, Yumi Zhang, Hongyu Yu
MEP: Yin Xueqin
Acoustic Engineering: Delhom Acoustics
Structural Engineering: Xiaodong Li
Lighting Consultant: Beijing Mostar
General Contractor: Beijing Chencheng Architectural Decoration
Custom Furniture Contractor: LMFU Furniture
All images © Wu JianQuan.
All drawings © Studio Vapore.
> via Studio Vapore
