Submitted by
Concrete House By Germano De Castro Pinheiro Arquitectos Creates Pure Balance Between Old And New
teasere-78-.jpg Architecture News - Jul 12, 2021 - 15:58 2048 views

Portuguese architecture practice Germano de Castro Pinheiro Arquitectos has renovated a 16th-century stone house with a new concrete house that creates a pure balance between old and new.
Named House In Minho, the studio, paying attention to the history of the site, aimed to respect and recover the ancient memory of the site, by reconciling it with a new intervention.

The new house was added to the complex with a contemporary look, which is connected to the old house via a small bridge-like volume.
The architects didn't want to damage the historical significance of the complex, as they wanted to identify and recover the original traces of this construction.

While they respect the primitive construction, the insertion of the necessary functional program should have been made in newly constructed volumes, releasing the historical heritage of the site.

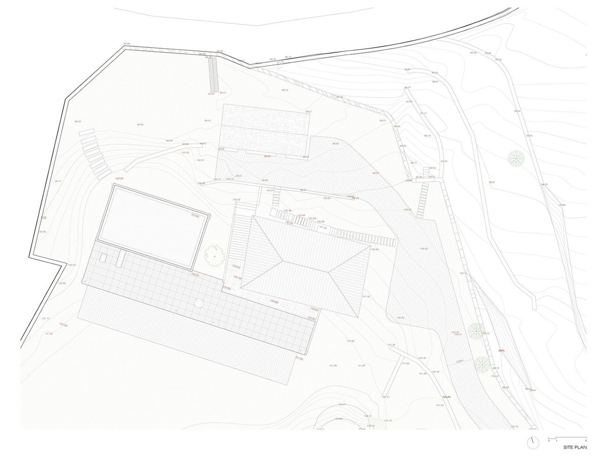
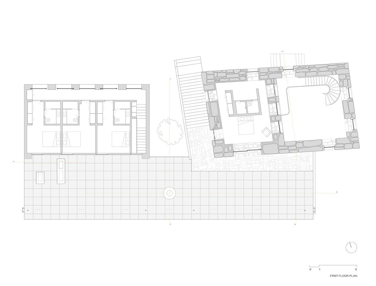
The team maintained the original structure of the stone house left (in the main image), but they renovated the interior and connected it to the new volume. A curved corten-steel staircase crowns the interiors in the old stone house. The overall composition of the complex consists of three distinct volumes.

"The original construction, maintaining its image and materiality through the recovery of the stone walls and their decorative elements," said Germano de Castro Pinheiro Arquitectos.
"The singularity of this construction and its implantation on the site was used to emphasize the main entrance."
"A prominent contemporary volume, where a new set of bedrooms was developed on the upper floor, sought to establish a strong relationship with the primitive construction by respecting its dimensions, not exceeding it volumetrically, as well as through its relative placement, aligned, near, but not overlapping the latter, and lastly, by recovering the language of the traditional threshing houses in the area, with a similar façade composition, where once there was a cereal drying threshing floor," the firm added.

The third volume seeks to establish the volumetric connection to the south, in a contained way, allowing the comprehension of this architectural set, integrating the new and the old.
Functionally, the studio aimed to create a fluid space, that would be easy to perceive, but unique and adapted to its habitational purpose.

With this intent in mind, the differentiation between spaces was marked through the different floor and ceiling heights, as well as through the introduction of patios and moments of zenithal light.

"The intent to obtain a fluid space dictated the structural solution that is embedded in the architecture, which consists of three large beams that run the entire length of the south volume," the team added. "This solution allows the non-existence of pillars in all spaces, materializing the desired experience."




















Site plan

Ground floor plan

First floor plan

Roof plan

Elevation

East façade and section BB

North façade

South façade and section AA
Project facts
Project name: House In Minho
Architecture: Germano de Castro Pinheiro Arquitectos
Location: Lavradas, Portugal
Size: 738m2
Date: 2021
All images © Fernando Guerra | FG+SG
All drawings © Germano de Castro Pinheiro Arquitectos
