Submitted by
Nina Maritz Architects Completes Shipwreck-Themed Timber Cabins For Travelers In Namibia
teaserd-7-.jpg Architecture News - Aug 24, 2018 - 01:41 2429 views

Namibian architecture firm Nina Maritz Architects has completed new shipwreck-themed timber cabins on the beach in the Skeleton Coast National Park of Namibia for travelers and tourists as a new destination.
The studio assembled the wooden cabins on site from pre-manufactured panels to reduce construction footprint in sensitive desert environment.

The Shipwreck Lodges are located only 45 km away from Möwe Bay. The 10 shipwreck-shaped chalets are nestled between the dunes with a view of the Atlantic Ocean where the cold Benguela current provides guests with a refreshing breeze.

Image © Denzel Bezuidenhoudt
The luxury cabins, now can be booked on Shipwreck Lodge Namibia, are prepared according to needs and demands for double or 2 family accommodations.
Each cabin includes wi-fi available in the main area, viewing deck / veranda, battery charging facilities, fireplace / wood burning stove in each room, safe, tea/coffee station, hairdryers on request at reception and complimentary laundry service.

Image © Denzel Bezuidenhoudt
The architects were inspired by the famous shipwrecks that can be found along the Skeleton Coast and each cabin emphasizes a light footprint in the area by operating act-friendly and using solar-power.

Image © Denzel Bezuidenhoudt
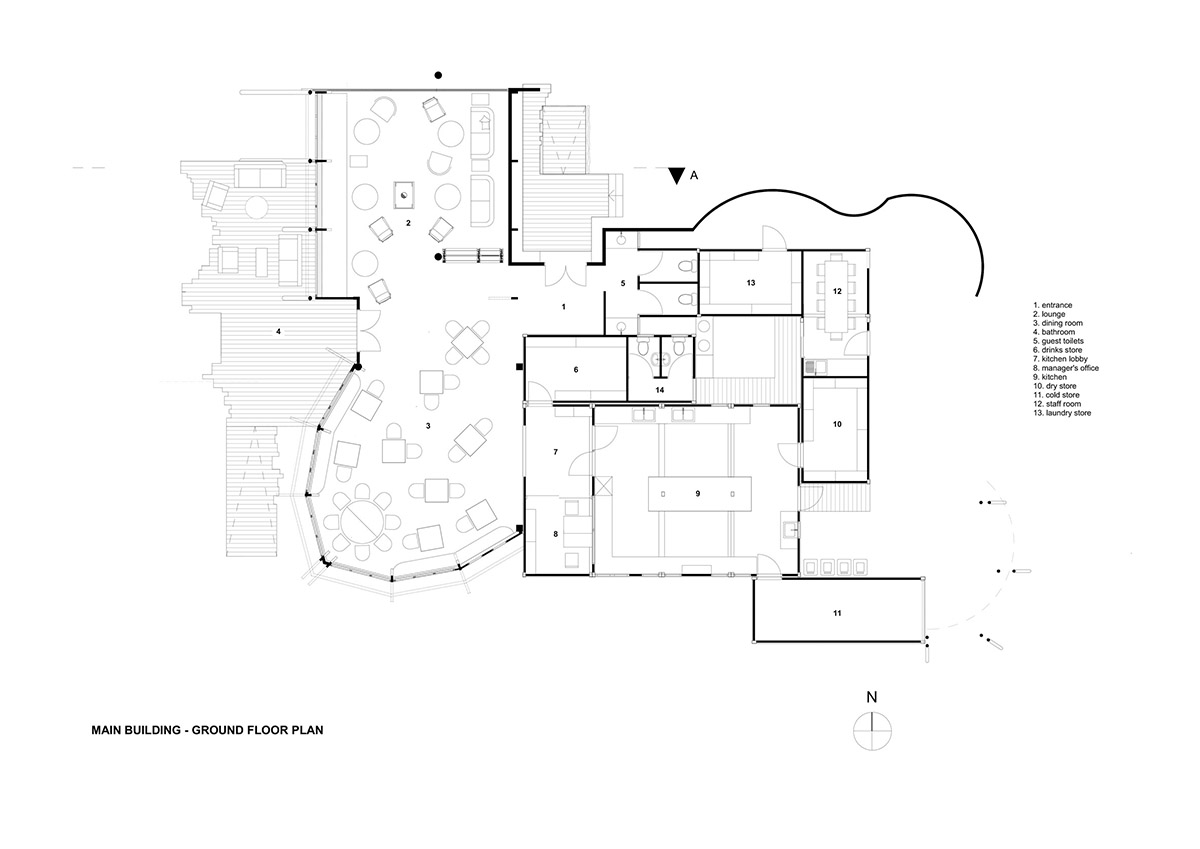
The restaurant and dining area are taking place at the heart of the lodge. Guests can enjoy morning coffee or an evening sundowner on the outdoor deck, or retreat inside and enjoy the views of the starkly beautiful landscape.


Image © Denzel Bezuidenhoudt


Image © Denzel Bezuidenhoudt


Image © Denzel Bezuidenhoudt







The renting prices of cabins start from 14,020 ZAR (962, 386 USD) one-night and change up to 24,440 ZAR (1,677.20 USD). See all renting prices from Shipwreck Lodge Namibia's website.
All images © Michael Turek unless otherwise stated
> via Nina Maritz Architects
