Submitted by WA Contents
MAIN OFFICE's family house blends into the tropical landscape of a surfers' town in Mexico
Mexico Architecture News - Oct 26, 2018 - 03:35 18088 views

Mexico and Sweden-based architectural practice MAIN OFFICE has recently expanded and restored CASA LT, an existing residential complex nestled in luxuriant tropical Mexican greenery.
Located in Sayulita, a well-known surfers’ town on the West coast of Mexico, the building stands on the beachfront and blends smoothly into the steep and articulated topography, with a breathtaking view over the Pacific Ocean.

Carefully integrating architecture and the tranquil tropical landscape, CASA LT has been designed around the living palm and almond trees, plantains and ferns that join the site’s topography in playing a key role in ensuring a clear view to the waterfront from all its spaces, both internal and external.

Composed of three small houses situated on the top of the hill, the original complex built in the 50’s was in poor condition due to humidity problems and lack of maintenance.
MAIN OFFICE initially focused on the renovation and preservation of the original essence, and then on the design of a new main building and a guest house facing the beach on the lower part of the property.

"The main idea of the project is to reinterpret the design parameters of the original complex and to keep the idea of a small-contained village within the site," said Dante Borgo, MAIN OFFICE’s co-founder.

MAIN OFFICE connects the various levels through a series of concrete platforms that adapts to the topography, walkways and vibrant gardens. The border between interior and exterior dissolves.
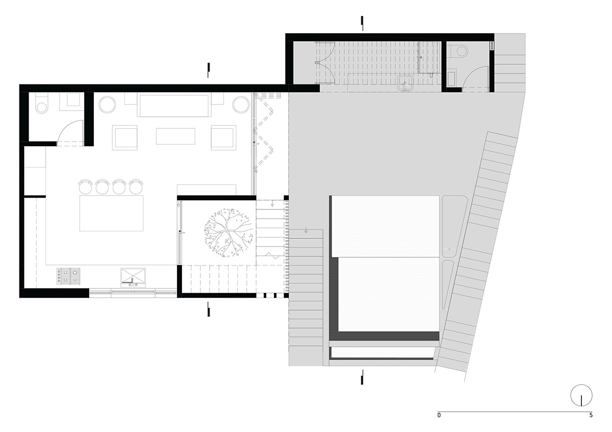
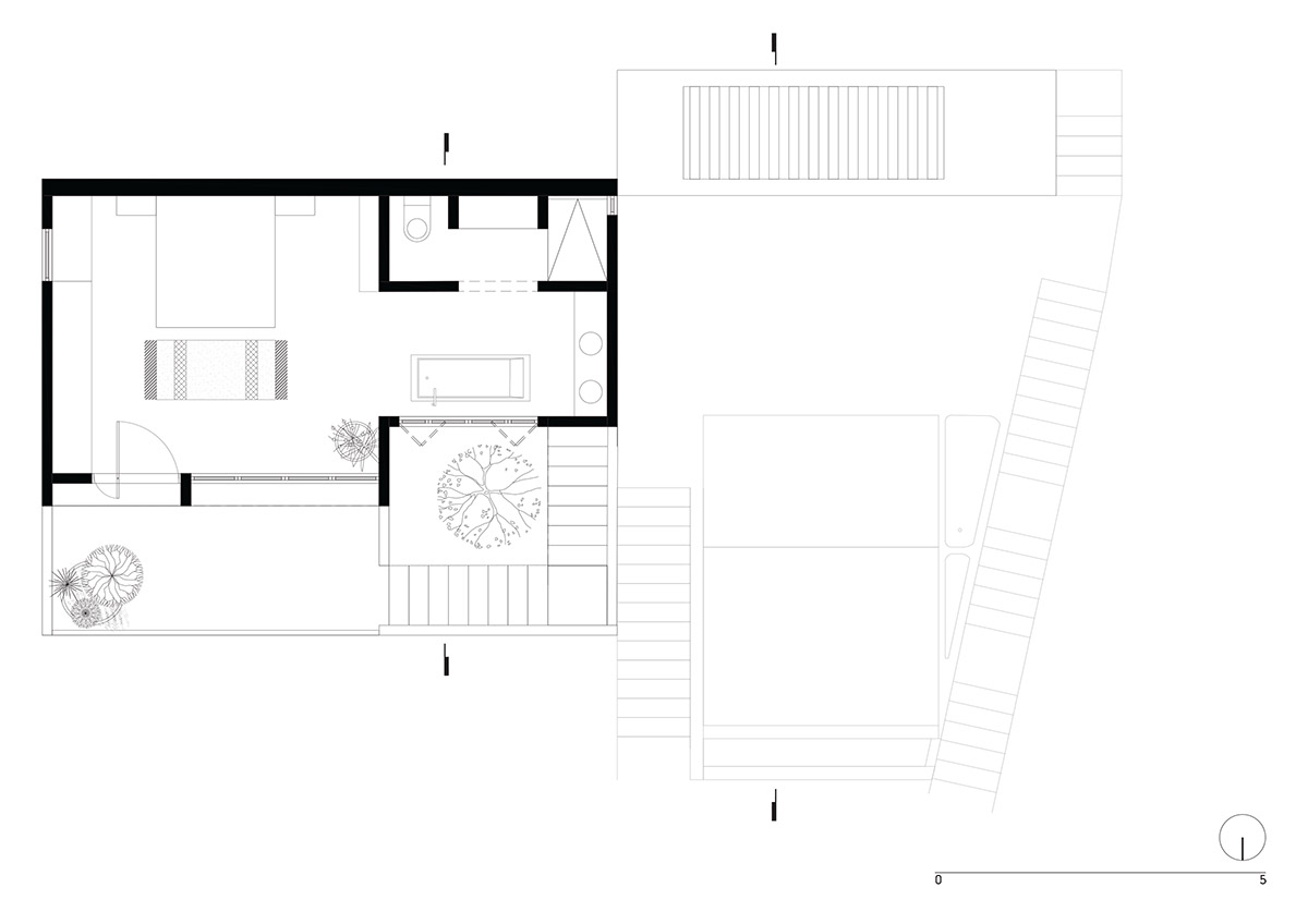
The single-family house features a kitchen with a panoramic view, an open living and dining area linked to the infinity pool, a bedroom with handcrafted concrete bathtub built in-situ, and a terrace with a stunning ocean view.

Both the construction system and the materials employed have been derived from local resources. Cement blocks finished with white stucco shape the walls, while polished concrete enhances the architectural quality of floors and fixed furniture.

For the warm interior furniture, closets, doors and window frames, indigenous Parota wood has been used for its resistance to humidity, to salinity in the air and to exposure to strong sunlight.

Part of a wider research initiative, CASA LT is located a mere few steps away from other buildings designed by MAIN OFFICE, such as CASA GALERIA, a newly built residential complex that has rapidly become a reference point in the town, and the upcoming CASA REAVIS, a private house to be completed by the end of 2018.







Site plan

Site plan axonometric

Main house ground floor plan

First floor plan

Guest house ground floor plan

Longitudinal section

Elevation
Project facts
Project name: CASA LT
Location: Sayulita, Nayarit, Mexico
Architect: MAIN OFFICE (Sima Agisheva, Dante Borgo, Isabella Eriksson)
Project team: Pablo Alemán, Montserrat Bucio, Brenda Cibrian, Rodrigo de la Torre, Luis Gordian, Manuel Guerrero
Client: private
Design phase: September 2016 – January 2017
Construction phase: February 2017 – July 2018
GFA: 175 sqm, 219 sqm (renovation)
Contractor: Terraza Construcciones, Sayulita (Mexico)
Furniture design: MAIN OFFICE
All images © Rafael Gamo
> via MAIN OFFICE
