Submitted by
Sharp Triangular Balconies Define This Residential Block Designed By STARH In Bulgaria
teaser2-1--2--3--4--5--6--7--8--9--10--11--12--13--14--15--16--17--18--19--20--21--22--23--24--25-.jpg Architecture News - Nov 23, 2022 - 07:32 2901 views

Eight-meters-long sharp balconies define this residential block designed by Varna-based architecture firm STARH in Varna, Bulgaria.
Named EOS, the 6,170-square-metre building is a residential building, consisting of mixed-use amenities on the ground floor, while the second and third floors accommodate ateliers and offices.
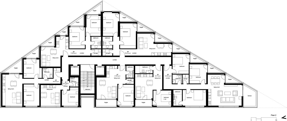
The block, mainly accommodating residential apartments located from the fourth floor to the top, or ninth floor, is drawn with sharp angles and forms a triangular geometry.

Located in Varna, the second largest city in the country, the design is inspired by the story of EOS, a Greek mythology means the goddess of dawn. Every morning she rose to the horizon from the depths of the sea to deliver light and disperse the night.
"This project has been named after the goddess," according to STARH, a Bulgarian architectural studio with a mission to overcome stereotypes in the local architectural environment.

The building is situated next to Sea Garden public park, the only thing separating it from the Black Sea, thus ensuring that EOS is the first to receive sunlight.
The studio creates a design that fits into a restrictive triangle-shaped plot, which is the main challenge for the project. According to the studio, the shape of the plot is the datum for its shape in plan and its distinctive spatial-volume structure.
Whiteness and horizontal distribution are typical for buildings, and the final result is a building that has a distinguishable silhouette and is open to various associations and interpretations.

Conceived as a mixed-use project with a mainly residential program, the apartments are distributed from the fourth floor to the top, or ninth floor.
The ground level is used for commercial program, while the entrance foyer, and the car lift for two underground levels that serve as car parking.

Ateliers and offices are arranged in the second and third floors. One staircase and two lifts provide the vertical communication.
"Functionally, the apartments are planned in such a way that provides the inner spaces with orthogonal layouts, where only the loggias facing East have triangular outlines," said STARH.
Balconies, reaching up to eight-meters in length, are made of pre-stressed concrete, which are located in the corner of the building, creating a challenge for the project.

"While designing EOS, along with the driving forces of aesthetics and functionality, ensuring a long life for the building was also a priority," said the office.
The studio preferred to use durable façade materials to also provide easy maintenance, as well as for their low energy costs and elevated comforts - aluminium windows, highly selective glazing, fiber cement ventilated façade.












Floor plan

Floor plan

Elevation
STARH was established by Svetoslav Stanislavov, who is the lead architect of the firm.
The studio has established itself as a contemporary architectural practice, working successfully on the symbiosis between quality of design, function and materials, attention to detail and longevity.
Project facts
Project name: EOS
Architects: STARH
Program: Mixed use
Gross Area: 6, 170m2
Design year: 2019
Completion year: 2022
Lead Architect: Svetoslav Stanislavov
Team Members: Dimitar Katsarov, Ivan Kovachev, Iva Kostova, Hristo Dushev, Petar Nikolov, Borislav Stanchev, Georgi Pasev, Vladimir Kavaev, Debora Dimitrova, Sanya Kovacheva
All images © Dian Stanchev.
All drawings © STARH.
> via STARH
