Submitted by WA Contents
Perkins+Will's Cidade Jardim House features a large garden space under thin columns
Brazil Architecture News - Aug 07, 2018 - 06:55 24336 views

Perkins+Will's Cidade Jardim House features a large garden space designed under slender columns for this private residence in São Paulo, Brazil. Named Cidade Jardim House, the L-shaped residence is comprised of two volumes overlapping one another.
The most apparent feature of the house is the upper volume wrapped by wooden shutters, and allows a large public space underneath it. All private rooms are hidden on this floor overlooking the amazing private garden.

Located in São Paulo, the residence is designed to create a perfect balance between nature and construction. Situated on an approximately 1200-square-metre area with considerable slope, the project features more usable solutions commonly found in country homes to create a soothing atmosphere in the turbulent, chaotic scene from the big city.
"The connection between the house’s well defined volumes and it’s broad garden is the major agent in this design’s conception," said Perkins+Will.

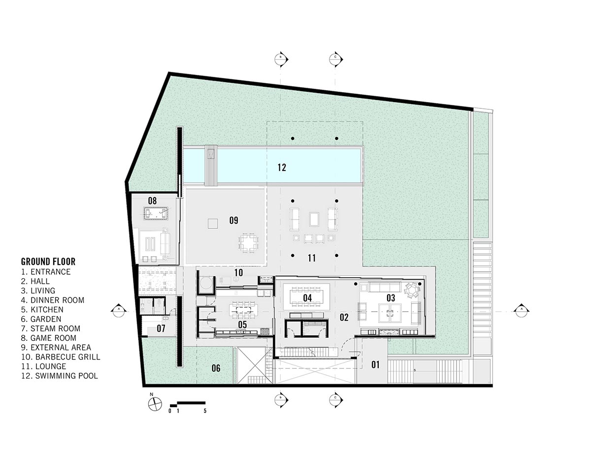
On the ground floor, the first volume includes common areas such as living room, kitchen, barbecue place, swimming pool and garden. Perched perpendicularly on the first, the second volume houses private areas such as bedrooms and suites.

The second volume's facade faces the east direction to receive the morning sunlight, vital for the residentes well-being and life quality.
"Characterizing this facade was also a primordial need in this project. The wood pannels that stand across it can be completely opened - enabling the connection with the exterior’s natural elements – or closed, privileging privacy," added the firm.

The architects were careful about "creating privacy" on this residence, which was actually a key point in the organization of the ground floor program.

The cars and guests entrances are located in the house’s underground, directly connected to the street. The ground floor is raised nine feet (2,74 meters) above the street level as a strategy to avoid from inconveniences like noise and pollution, or even the need for big security walls that would confine the space.

When users enter the house, they go up a staircase that leads to the main entrance in the ground floor, where they can find not only the guest receiving area, but also the staircase to the private pavement.

"The staircase by itself is one of the design’s highlights in this project, combining metalic structure with wooded steps alongside a concrete hollow brick wall that allows the entrance of natural light," continued the firm.

The architects used warm materials on the project such as wood, slatted concrete, plaster and soapstone to create a calm, pleasant environment without loosing the the sofisticated visual proposed by the volumes.

The landscape of the project was designed by Gil Fialho, the landscaping is comprised of an exuberant vegetation with local species, contributing directly to the main goal of the project. The architects aimed to create an urban residence with countryside traits.



Basement floor plan

Ground floor plan

First floor plan

Roof floor plan

Section-1

Section-2

Section-3
Project facts:
Architect: Perkins+Will
Project name: Cidade Jardim House
Location: Cidade Jardim, Brazil
Year: 2013
All images © Daniel Ducci
> via Perkins+Will
