Submitted by WA Contents
OMA opens Fondazione Prada’s Torre art tower in Milan
Italy Architecture News - Apr 20, 2018 - 03:23 26594 views

OMA's new art tower for Fondazione Prada has been opened in Milan - the new tower is the third new structure of OMA added to the former gin distillery on the southern edge of Milan, transforming the 19,000-square-metre industrial campus into a venue for art display and cultural events.
Named Torre, the 60-metre high tower is envisioned for the campus as a new typology for the exhibition of art. Reaching at nine levels, the white concrete tower features different spatial parameters in each floor, due to variations in plan dimensions, height and orientation, and with a facade that alternates between glass and concrete surfaces.

Image by Jacopo Milanesi © OMA
The height of the ceiling cumulatively increases with each floor from the bottom to the top of the tower. Six of the nine levels are exhibition spaces, while the remaining three floors host a restaurant and other visitors’ facilities. A 160-square-metre panoramic terrace completes the structure offering a spectacular view of the city.

Image by Jacopo Milanesi © OMA
"To extend the typologies offered by the Fondazione, a series of systematic variations is applied: each next floor is taller than the previous one, rectangular plans alternate with wedge shapes, the orientation of the rooms alternates between panoramic city views to the North, or narrower views in opposite directions, East and West," said Rem Koolhaas describing the project.
"With the completion of ‘Torre’, the only vertical gallery on the compound, Fondazione Prada can finally reveal its presence to the center of Milan, emphasizing the strong relation between Prada and the city of Milan," said Chris van Duijn, Partner at OMA.

Image by Jacopo Milanesi © OMA
OMA's earlier additions to the industrial complex were Podium, an exhibition pavilion at the center of the compound, consisting of a translucent gallery space on the ground floor and a second gallery space clad in aluminum foam on top, and Cinema, a multimedia auditorium with large bi-fold doors, which can be used in multiple spatial configurations in combination with the outdoor courtyard.

Image by Jacopo Milanesi © OMA
"Torre is the final section of a collection of different exhibition conditions that together define Fondazione Prada," added Koolhaas in a project statement.
"Its rectangular plan is constructed on a wedge-shaped site, on the North-West corner of the Fondazione; the tower consists of alternating blocks of wedge-shaped-plans and rectangular floors that are cantilevered over Milan’s public space. At the rear, a diagonal structure emerging from the vastness of the Deposito pulls the tower back."

Image by Jacopo Milanesi © OMA
"Together these variations produce a radical diversity within a simple volume – so that the interaction between the spaces and specific events or works of art offer an endless variety of conditions...At the base of the tower, a second entrance offers direct access to the tower, its restaurant and roof terrace, the experimental performance space of the Deposito, and to the other parts of the Fondazione."
"The staircase is the one element unifying all irregularities – its complexity lifts it beyond the typical pragmatic element, the staircase has become a highly charged architectural element," Koolhaas concluded.

Image © Bas Princen 2018, courtesy Fondazione Prada
Together, the renovated structures and the new buildings create a rich and spatially diverse setting for the visual and performing arts in Milan. The project was led by Rem Koolhaas, Chris van Duijn and project architect Federico Pompignoli.

Image © Bas Princen 2018, courtesy Fondazione Prada

Image © Bas Princen 2018, courtesy Fondazione Prada

Image © Bas Princen 2018, courtesy Fondazione Prada

Image © Bas Princen 2018, courtesy Fondazione Prada

Image © Delfino Sisto Legnani and Marco Cappelletti, courtesy Fondazione Prada

Image © Delfino Sisto Legnani and Marco Cappelletti, courtesy Fondazione Prada

Image © Delfino Sisto Legnani and Marco Cappelletti, courtesy Fondazione Prada

Image © Delfino Sisto Legnani and Marco Cappelletti, courtesy Fondazione Prada

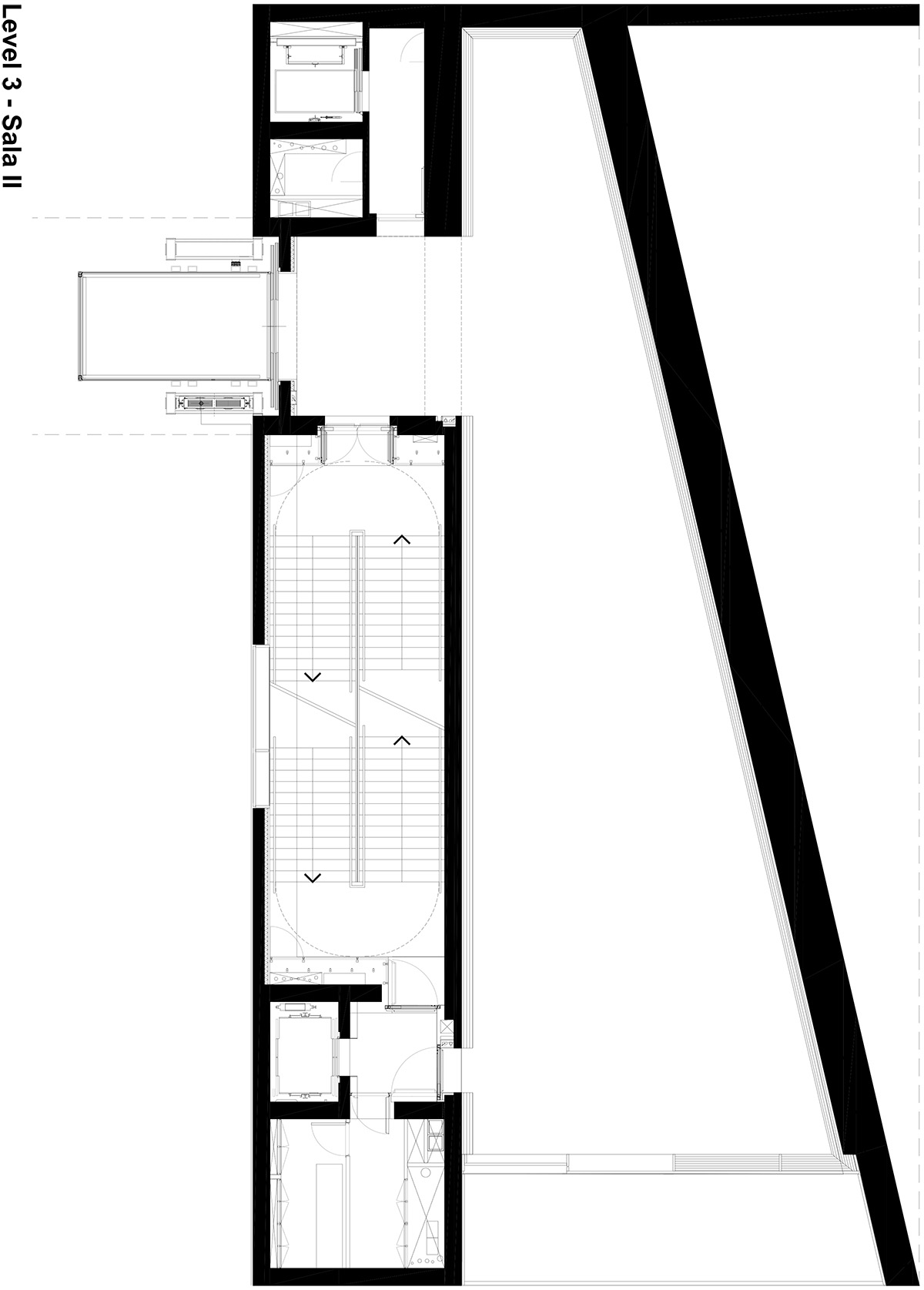
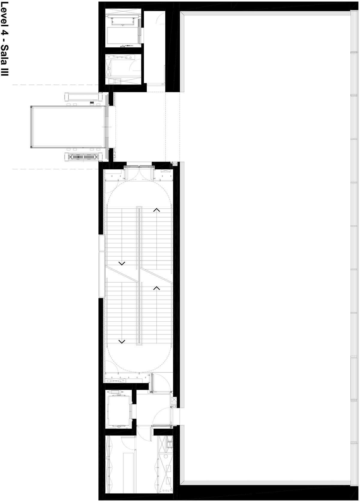
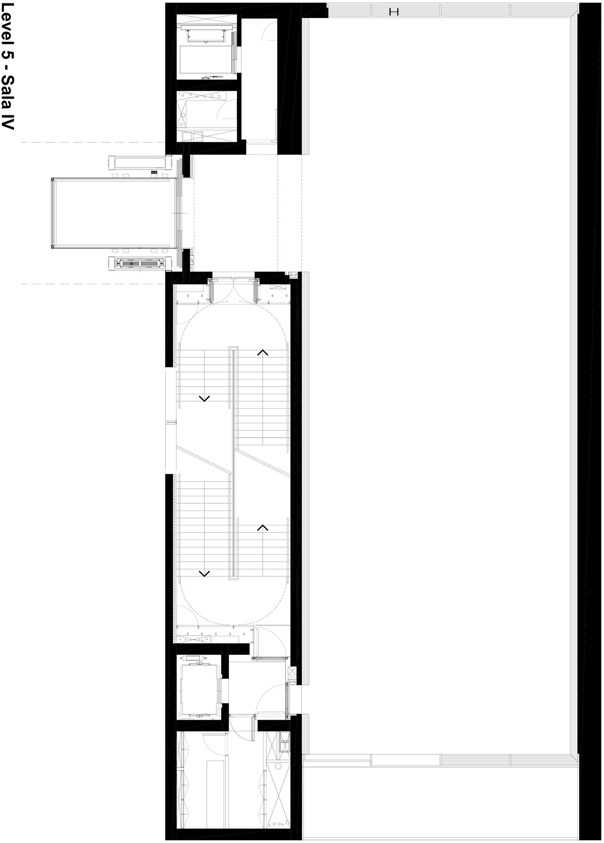
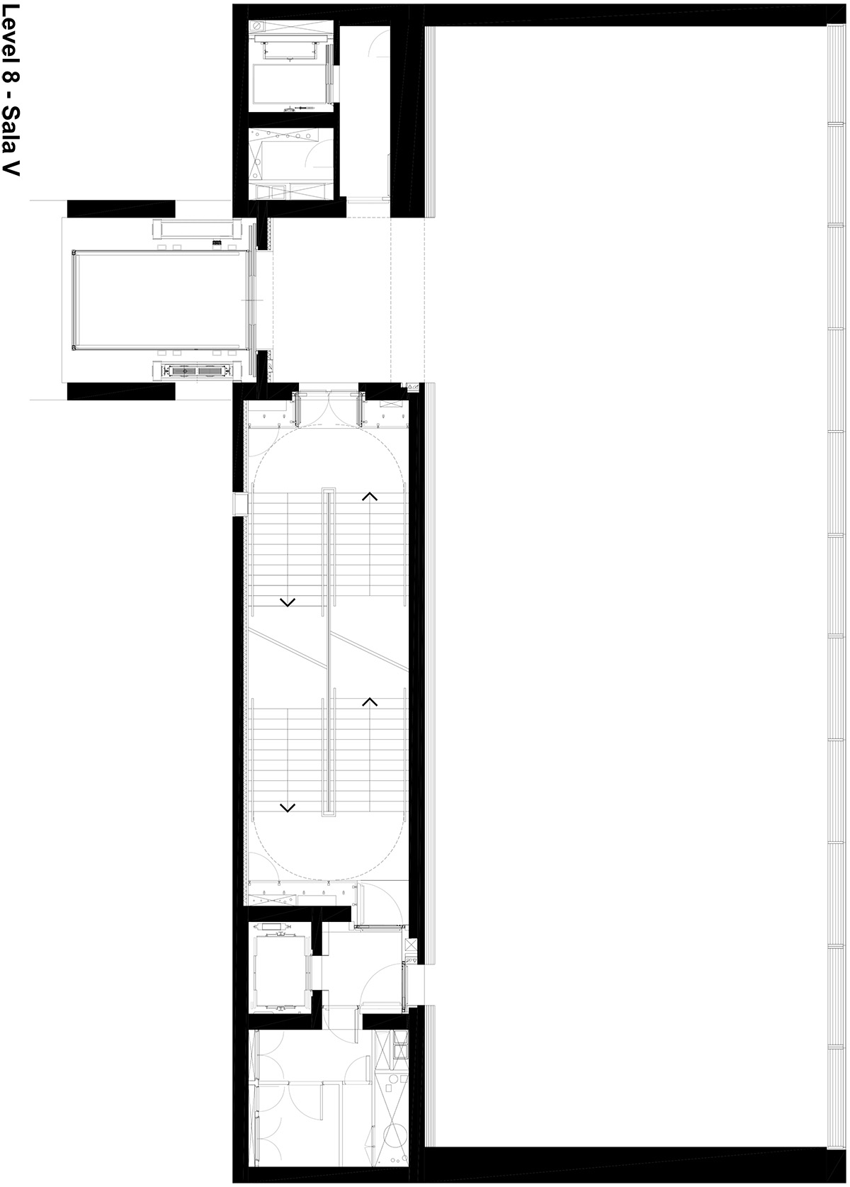
Level plan 00. Image © OMA

Image © OMA

Image © OMA

Image © OMA

Image © OMA

Image © OMA

Image © OMA

Image © OMA

Image © OMA

Image © OMA

Image © OMA

Image © OMA

East facade. Image © OMA

North facade. Image © OMA

South facade. Image © OMA

West facade. Image © OMA
OMA recently completed the Qatar National Library in Doha, the new library complex was designed as a single reading room that makes all books accessible from every point of the building.
Project facts
Status: Completed
Client: Fondazione Prada
Location: Milan, Italy
Site: Former distillery at Largo Isarco No.2, Milan, an industrial complex dating from 1910, comprising seven existing structures, including warehouses, laboratories, and brewing silos surrounding a large courtyard
Program: Total public area: 12,300 m2; total private area: 6,600 m2; total built area: 18,900 m2
OMA team
Partner in Charge: Rem Koolhaas, Chris van Duijn
Project leader: Federico Pompignoli
Schematic Design: Alexander Reichert, Sam Aitkenhead, Doug Allard, Andrea Bertassi, Aleksandr Bierig, Eva Dietrich, Paul-Emmanuel Lambert, Jonah Gamblin, Joshua Beck, Takuya Hosokai, Stephen Hodgson, Jan Kroman, Jedidiah Lau, Francesco Marullo, Vincent McIlduff, Alexander Menke, Aoibheann Ni Mhearain, Sophie van Noten, Jan Pawlik, Rocio Paz Chavez, Christopher Parlato, Ippolito Pestellini Laparelli, Dirk Peters, Andrea Sollazzo, Michaela Tonus, Jussi Vuori, Luca Vigliero, Mei-Lun Xue.
Design Development: Anna Dzierzon, Jonah Gamblin, Ross Harrison, Hans Hammink, Matthew Jull, Taiga Koponen, Vincent Konate, Andres Mendoza, Susanan Mondejar, Vincent McIlduff, Federico Pompignoli, Sasha Smolin, Michaela Tonus.
Construction documentation: Katarina Barunica, Marco Cimenti, Cecilia Del Pozo Rios, Anita Ernodi, Felix Fassbinder, Peter Feldmann, Siliang Fu, Romina Grillo, Jonah Gamblin, Clive Hennessey, Taiga Koponen, Roy Lin, Debora Mateo, Vincent Mc Ilduff, Andres Mendoza, Federico Pompignoli, Arminas Sadzevicius, Magdalena Stanescu, Lingxiao Zhang.
Construction Administration: Mariacristina Agnello, Katarina Barunica, Emilio Boiardi, Matteo Budel, Marco Cimenti, Chris van Duijn, Anita Ernődi, Felix Fassbinder, Peter Feldmann, Siliang Fu, Jonah Gamblin, Andrea Giovenzana, Romina Grillo, Clive Hennessey, Marianna Katenko, Taiga Koponen, Nicolas Lee, Roy Lin, Débora Mateo, Vincent McIlduff, Andres Mendoza, Enzo Nercolini, Pawel Panfiluk, Caterina Pedò, Marton Pinter, Cecilia del Pozo, Victor Pricop, Arminas Sadzevicius, Magdalena Stanescu, Davide Troiani, Michele Zambetti, Lingxiao Zhang.
Collaborators
Local Architects: Atelier Verticale
Structural Engineer: Favero&Milan
MEP Engineer: Favero & Milan, Prisma Engineering
Fire Engineer: GAE Engineering
Top image © Bas Princen 2018, courtesy Fondazione Prada
> via OMA
