Submitted by
Austin Maynard Architects Adds Glass Volume To The Original Dutch-Gabled Facade In Melbourne
teaserd-68-.jpg Architecture News - Feb 08, 2021 - 12:08 1959 views

Victoria-based architecture practice Austin Maynard Architects has extended a Dutch-gabled house with a glass volume that crowns the front of the building with contemporary look.
Named Union House, the house, located in a suburb of Brunswick, Melbourne, Australia was entirely retained, restored and extended the beloved original cottage facade with new, playful additions.
As the architects highlight, the Dutch-gabled façade is the only element that reminds the past of the building for future generations, so they intended to protect the remains of original façade.

"Union House is a place of memory, a home the family had lived in for years. Whilst it was a quaint cottage with a lovely facade, there was no stipulation to keep or protect it," said Austin Maynard Architects.
"Regardless, both the owners and ourselves wanted to retain a piece of the home’s former life."

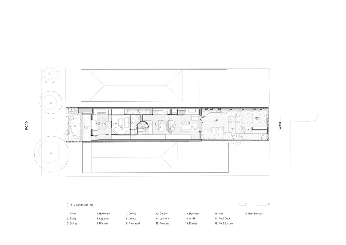
The house, covering a total of 285-square-metre area, is a multi-level home, situated on a narrow 5.5 metre wide block. The owners of this house is a couple who have three energetic teenage boys.
The client asked from the architects to design a robust family home where they could live in forever, while their needs changing in time.

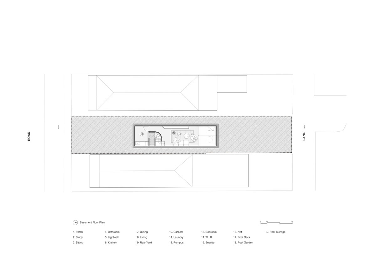
The two-storey house has four bedrooms, three bathrooms with a study, a basement rumpus room, a roof deck and a carport. However, upon visitors enter the house, they encounter with layered and surprising interiors.
"Union is an example of people literally living on top of each other, and making that part of the joy of the house, rather than a problem," said the architects.
"The house engages with the occupants in fun and dynamic ways."

Designed as a narrow and elongated floor plan, the house is divided into two with a black steel staircase in lateral way, it also cuts through four levels within a Cross Laminated Timber (CLT) volume that rises the height of the house.
"The home never feels cramped as spaces are designed to merge into others in various and sometimes surprising configurations," added the architects.

By adding playful layers, such as using height, sliding walls, voids, and openings, the house is enriched with surprising volumetric additions - the volume of the rooms is blurred, fluid, and flexible. Here, the standard house layout of cells and corridors has been subverted.
There are also split levels and ramps, hidden slopes, concealed steps, and bookcase walls that split apart.

The team preserved rough brickwork at the front entry - which are all that remain of the original house, slides behind the new Cross Laminated Timber (CLT) walls.
"A ramp leads past the study and guest bedroom/reading retreat, to a central perforated black steel staircase that cuts through four levels within a CLT volume that rises the height of the house," added the studio.
"Though intended to be covered up as a structural material, the CLT is exposed throughout, including walls, floors, stairs, ceilings, and doors, unifying the interior."

The house has been designed as an open plan containing a living & dining room with kitchen that are filled with secrets and surprises, including an outside escape route for the family’s two Siamese cats.
"Cupboard doors are constructed from Equitone, a material generally used as an external cladding," continued the team.
"It contrasts with the pale CLT timber and shock of camellia pink inside. Glass floor panels allow sunlight to stream directly into the basement rumpus below, one opens to allow the daring direct entry via a steep slide."

The boys’ bathroom upstairs is filled with a moulded fibreglass blue ‘cartoonish’ landscape - incorporating shower, bath, steps and hob.
A black steel winding staircase is situated at the center of the plan, the staircase is also a way to get from the basement all the way to the roof without needing to take the standard route.

According to the architects, a ramp, a glazed trap door, a series of climbing holds and nets enable this energetic family to clamber up walls without ever interacting with the stair.

Union is a vertical house, with stacked spaces and voids, unified through the use of exposed Cross Laminated Timber (CLT) walls and ceilings. Carbon sequestering CLT was used to reduce time on site, minimise trades and accumulated layering within the building process.

CLT offers a multitude of benefits in terms of performance and environmental sustainability. It comes from sustainably managed forests and is manufactured to exact measurements leading to very little waste and simpler construction. As a product is it not only durable but also entirely recyclable.

A water tank is buried the backyard, a green roof above the bedrooms improves thermal performance and a concrete slab adds thermal mass at ground level. At the rear, a concealed retractable awning provides shade, while external recycled brick paving, plinth and fences are a nod to the site’s history.

Where once there was a high, oppressive front fence there is now a concrete bench, providing a resting spot for pedestrians and neighbours.


Basement floor plan

Ground floor plan

First floor plan

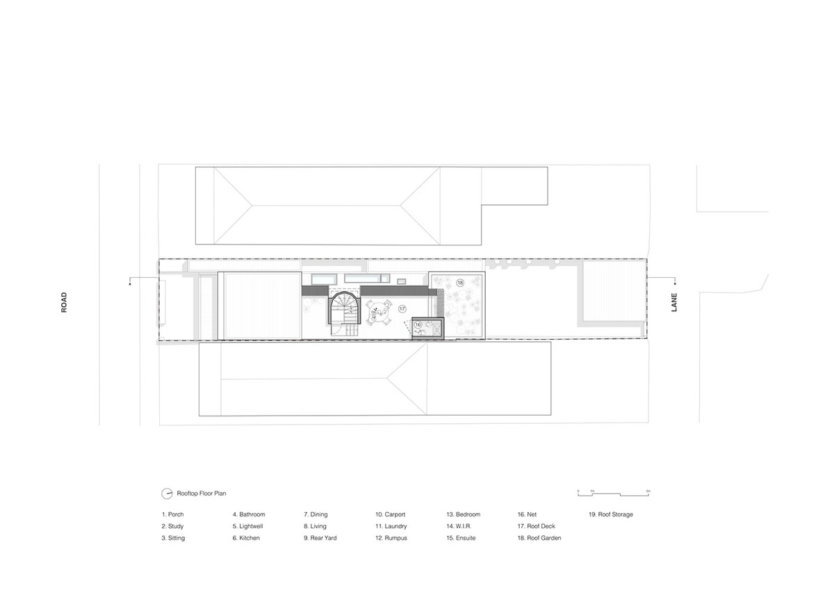
Rooftop floor plan

Section

North elevation

North elevation
Austin Maynard Architects previously extended existing post-war Canberra House with two shingle-clad pavilions in Canberra, Australia and completed an existing terraced home with corrugated steel pavilion in Melbourne, Australia.
Austin Maynard Architects was founded by Andrew Maynard and Mark Austin in 2002.
Project facts
Project name: Union House
Architects: Austin Maynard Architects
Team: Andrew Maynard, Mark Austin, Natalie Miles
Location: Brunswick, Melbourne, Australia
Size: 285m2
Date: 2020
All images © Derek Swalwell
All drawings © Austin Maynard Architects
